

920.000 €
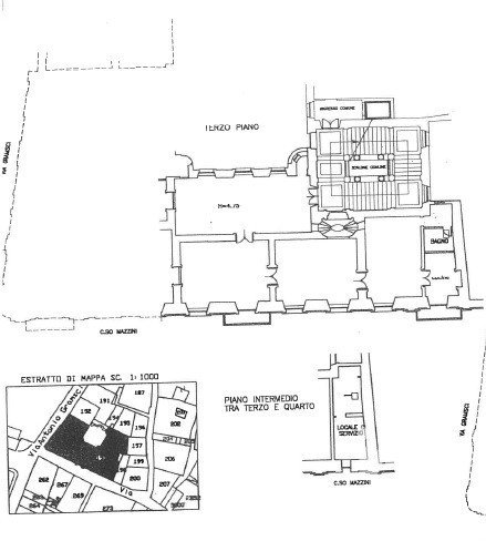
Nel cuore del centro storico di Ancona, a fianco del teatro delle Muse, si trova palazzo Jona. Ex palazzo Millo, successivamente Bourbon del Monte e sede degli uffici della Banca Nazionale Toscana. Appartamento nobile di 250mq con due balconi su corso Giuseppe Mazzini. Il palazzo venne riedificato in stile tardobarocco nel XVIII secolo. Il progetto è stato inizialmente attribuito a Luigi Vanvitelli (1700 - 1773), in città per la costruzione della Mole Vanvitelliana e la ristrutturazione di Palazzo Ferretti e della chiesa adiacente. Esistono però pensieri divergenti, tra i quali l'attribuzione al Vanvitelli del solo caratteristico balcone angolare che dà sulla piazza e la chiesa, mentre il disegno del palazzo sarebbe opera di Carlo Marchionni (1702 - 1786), direttore dei lavori portuali e autore del progetto di ricostruzione della Chiesa di San Domenico, e di Francesco Maria Ciaraffoni (1720 - 1802), che ricostruì completamente la Chiesa del Santissimo Sacramento a pochi passi. Palazzo Jona è stato interamente ristrutturato ad inizio anni 2000. L'appartamento nobile di circa 250mq totali si trova al 3' piano con ascensore. Ha subito un restauro conservativo che ha mantenuto le opere interne di Giuseppe Pallavicini (1736 - 1812), anch'esse in passato attribuite al Vanvitelli. L'intero appartamento è ricco di opere d'arte: affreschi, soffitti, quadri, la cappellina con l'acquasantiera, porte decorate con cornici a altri dettagli in marmo. I due balconi danno sul corso Giuseppe Mazzini.
Riferimento: 153674
Classe energetica
F
Immobili simili



