Appartamento 5 locali di 67 m² a Boissano (17054)
Caratteristiche
Su questo appartamento di 5 locali a Boissano (17054)
LA TUA LIBERTÀ IN VIA MORTEO: Villetta a Schiera Autonoma a Boissano (SV)
Stanco delle salate e imprevedibili spese condominiali? Ecco la soluzione che aspettavi! Proponiamo in vendita una splendida villetta a schiera a Boissano, situata nella tranquilla e ambita Via Morteo. Questa casa offre la perfetta combinazione tra il comfort di una zona residenziale e la totale indipendenza gestionale.
Un Vero Affare Economico:
Il principale punto di forza è l'eccezionale risparmio:
Spese Annuali Bassissime: Solo €100 all'anno di spese comuni! Dimentica i consuntivi pesanti e i fondi cassa.
Gestione Autonoma: Riscaldamento e utenze sono assolutamente indipendenti. Regoli tu i consumi, senza vincoli condominiali.
Descrizione dell'Immobile:
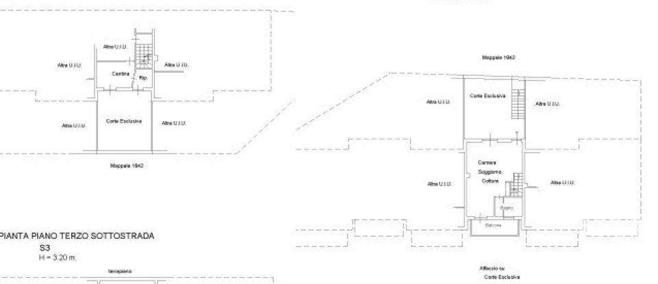
La villetta si presenta come un'abitazione ideale per chi cerca spazio e tranquillità.
Al piano terra troviamo un comodo ingresso e l'accesso ai locali di servizio, perfetti per sfruttare l'immobile al meglio
Il cuore della casa si sviluppa ai piani superiori con una zona giorno luminosa che include il soggiorno e la cucina open space, con accesso diretto a un balcone ed un giardino privato ideale per godersi il clima ligure e cene all'aperto.
La zona notte ospita la camera da letto matrimoniale, un bagno partronale ed una seconda corte esterna.
E all'ultimo piano si trova una taverna, perfetta per attività ricreative.
La posizione in Via Morteo garantisce silenzio e riservatezza, pur restando a breve distanza dai servizi e dalle principali arterie di collegamento con la costa.
3 OTTIMI MOTIVI PER ACQUISTARE QUESTO IMMOBILE
- Zona TRANQUILLA (goditi tutti i privilegi di una casa al mare, essendo anche circondato dal verde!)
- VICINANZA AL MARE (Meno di 5 minuti)
- STABILE COMPLETAMENTE RISTRUTTURATO (una costruzione di qualità di meno di dieci anni fa!)
Non farti scappare questa occasione di investimento sulla tua qualità di vita.
VUOI VENDERE CASA? AFFIDATI A NOI!!!
Cosa offriamo?
- pubblicità su TUTTI i portali immobiliari italiani ed esteri
- OPEN HOUSE a 5 stelle
- una rete con più di 18000 consulenti immobiliari a livello europeo
AFFIDATI A NOI PER UNA VALUTAZIONE GRATUITA DEL TUO IMMOBILE! NON PERDERE L' OCCASIONE DI VENDERE CON NOI IN TEMPI BREVISSIMI RISPETTO A TUTTA LA CONCORRENZA E AI MASSIMI PREZZI DI MERCATO!
LE NOSTRE CASE SONO TUTTE IN ESCLUSIVA, LE VEDI SOLO CON NOI!
Questa descrizione ha valore puramente indicativo e non costituisce elemento contrattuale.
Pertinenze
Esterno
Altro
Classificazione energetica
Efficienza Energetica:
Questo appartamento si trova a Boissano (17054).





