Appartamento 8 locali di 176 m² a Sarteano (53047)
Su questo appartamento di 8 locali a Sarteano (53047)
CH - "Casa Giove" Fascino d'epoca e confort moderno.
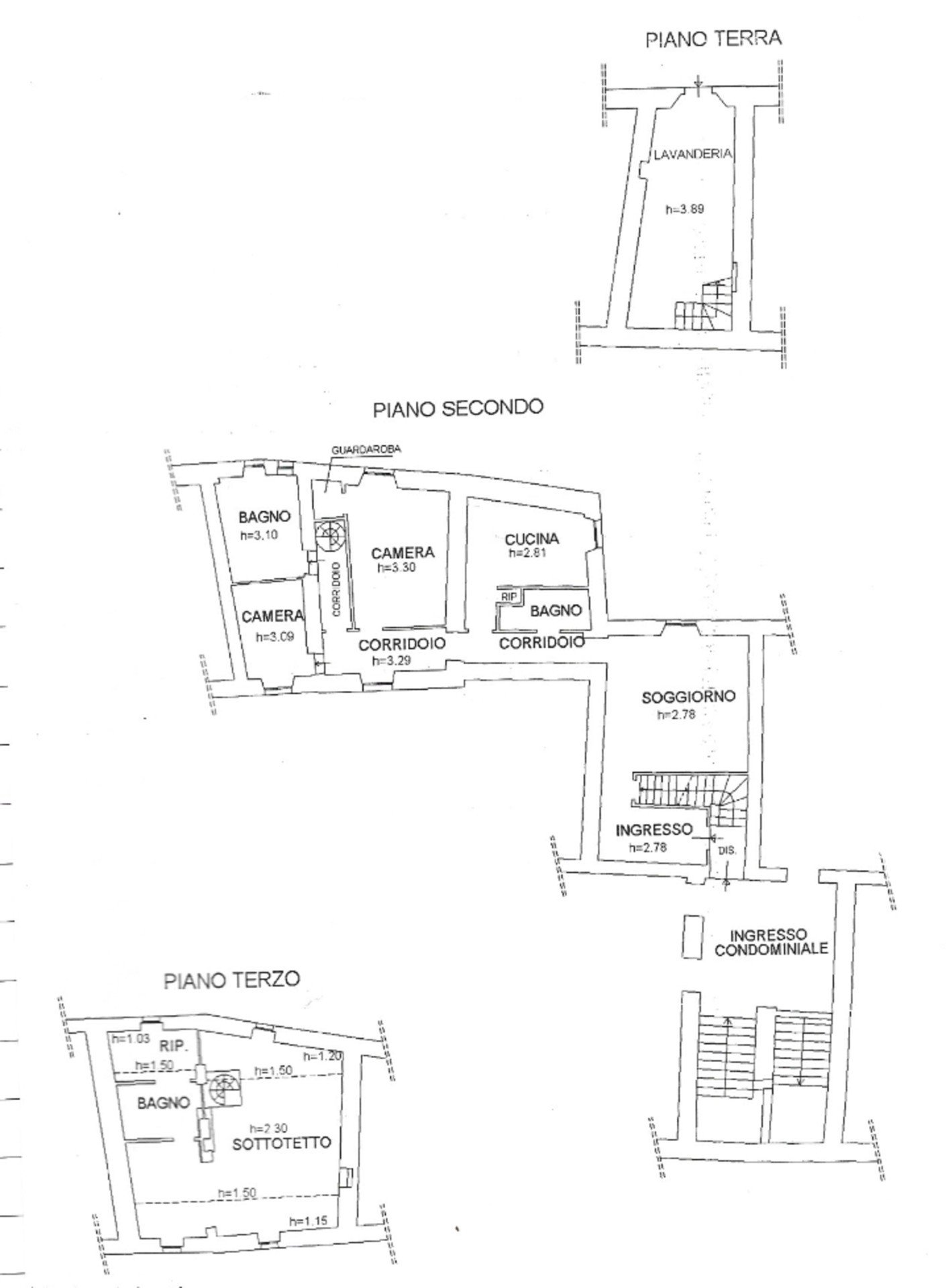
Nel pieno centro storico di Sarteano, lungo il suggestivo corso principale, proponiamo in vendita un elegante appartamento situato al secondo piano di un palazzo storico, caratterizzato da ambienti caldi e da un autentico fascino toscano.
L’abitazione si apre su un ampio ingresso che conduce alla zona giorno, composta da soggiorno e sala da pranzo. Proseguendo lungo il corridoio si trovano un bagno di servizio con doccia, una cucina arredata con mobili in legno su misura e un comodo ripostiglio.
La camera matrimoniale regala un’atmosfera d’altri tempi, con i classici soffitti a travi e tavelle in cotto, elementi che ritroviamo anche nella cameretta\studio e nel bagno padronale, completo di vasca, doccia e termoarredo scaldasalviette.
Una scala a chiocciola conduce alla mansarda sottotetto, oggi adibita a stanza dei giochi, dove è presente anche un terzo bagno con doccia. Uno spazio ampio ideale anche come suite per gli ospiti.
La vera sorpresa di questo immobile è però la scala interna che collega direttamente il soggiorno al piano terra, dove si trova la lavanderia e un secondo ingresso indipendente: un dettaglio raro e prezioso nel centro storico.
Perfetto come residenza principale o casa vacanza, si presta molto bene anche come investimento da mettere a reddito, grazie alla posizione centrale e al suo carattere autentico.
Per ulteriori informazioni o fissare una visita non esitare a contattarci.
Pertinenze
Interno
Altro
Classificazione energetica
Efficienza Energetica:
Questo appartamento si trova a Sarteano (53047).
