Appartamento 5 locali di 91 m² a Sarteano (53047)
Caratteristiche
Su questo appartamento di 5 locali a Sarteano (53047)
CH - "Casa focolare"
Nel cuore autentico del borgo medievale di Sarteano, all’interno delle antiche mura, si trova questo affascinante appartamento ricco di storia e carattere, situato al terzo piano di un palazzo storico perfettamente conservato.
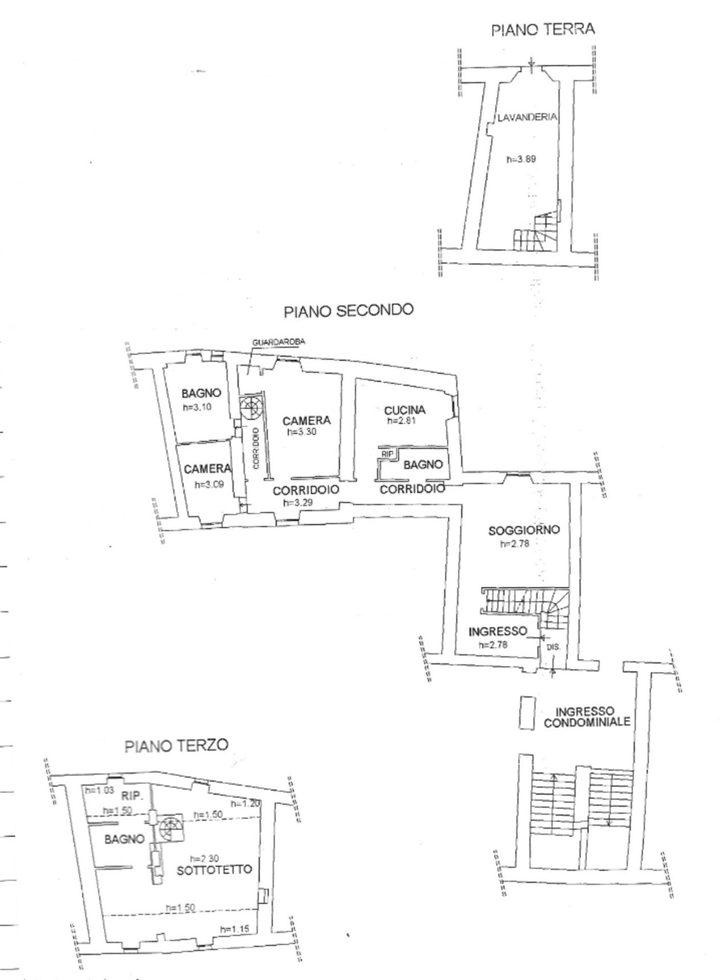
L'immobile misura 91mq commerciali, di cui 85mq l'appartamento e 12mq il sottotetto abitabile con lucernario, un ulteriore spazio che può essere collegato direttamente all'appartamento.
Varcata la soglia, si viene accolti da un ampio soggiorno con camino a legna, un angolo caldo e accogliente dove immaginare serate invernali trascorse davanti al fuoco, avvolti dal profumo del legno e da una tazza di cioccolata calda.
Alcuni scalini conducono al mezzo piano rialzato, dove si trova una deliziosa cucina con angolo cottura ben separato dalla zona pranzo, perfetta per ospitare fino a sei persone in un’atmosfera conviviale e familiare.
Proseguendo nel corridoio, si trovano:
una prima camera matrimoniale, spaziosa e ideale anche come studio o stanza per gli ospiti;
un bagno finestrato con doccia e vasca, curato nei dettagli;
una seconda camera matrimoniale, con il tipico soffitto toscano con travi a vista e tavelle in cotto, che regala calore e autenticità agli ambienti.
L’intero appartamento è un perfetto equilibrio tra antico e moderno: i materiali originali raccontano la storia del palazzo, mentre la scelta del bianco e delle tonalità chiare donano luce e una piacevole sensazione di freschezza.
📍 Perché scegliere Casa focolare:
✔ Posizione centrale, a pochi passi da tutti i servizi e dalle meraviglie del borgo
✔ Ampi spazi e ambienti luminosi
✔ Camino e dettagli d’epoca
✔ Ideale come prima casa per una giovane coppia
✔ Ottimo investimento come seconda casa o affitto turistico
👉 Possibilità di acquistare anche l’appartamento al piano inferiore, creando così una soluzione esclusiva e di grande fascino nel cuore del centro storico.
Per ulteriori informazioni o per fissare una visita non esitare a contattarci!
Pertinenze
Altro
Classificazione energetica
Efficienza Energetica:
Questo appartamento si trova a Sarteano (53047).

