Appartamento 5 locali di 150 m² a Cairo Montenotte (17014)
Caratteristiche
Su questo appartamento di 5 locali a Cairo Montenotte (17014)
Ampio e Versatile Appartamento con Mansarda a Cairo Montenotte: Una Soluzione Perfetta per la Tua Famiglia!
A pochi passi dalla piazza principale di Cairo Montenotte, immerso nella comodità di una posizione centrale vicina a negozi e bar, proponiamo un appartamento ideale per famiglie alla ricerca di spazi ampi e funzionali. Situato al secondo piano di un condominio ben tenuto, questa proprietà rappresenta un’opportunità unica per chi desidera creare la propria casa su misura, grazie agli ampi ambienti e alla possibilità di personalizzare gli interni.
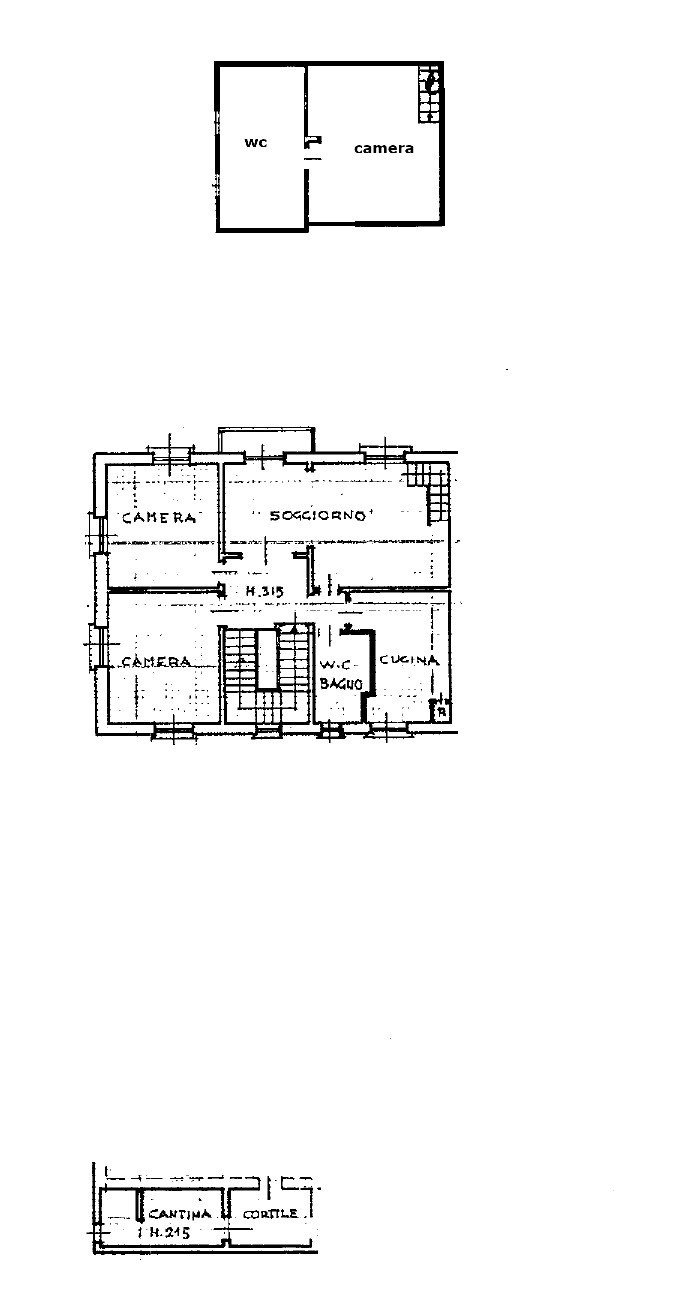
L’appartamento si estende su una superficie di 120 mq, progettata per offrire il massimo comfort e un’eccellente vivibilità. L’ingresso introduce in un ampio salone, perfetto per accogliere e condividere momenti in famiglia o con amici, mentre la cucina abitabile, spaziosa e luminosa, rappresenta il cuore pulsante della casa, dove cucinare e mangiare insieme diventa un piacere quotidiano.
La zona notte si compone di due camere da letto, ampie e ben illuminate, e di un bagno funzionale. A completare gli spazi principali, un balcone che aggiunge un piacevole affaccio all’aperto, perfetto per godersi un po’ di relax all’aria aperta. Ma la vera sorpresa è la mansarda abitabile, uno spazio aggiuntivo versatile che può essere utilizzato come zona ospiti, studio o area relax. Qui troverai una camera supplementare e un secondo bagno, garantendo comodità e riservatezza per chi necessita di uno spazio indipendente.
Un ulteriore valore aggiunto è rappresentato dal montascale per persone a mobilità ridotta e dalla cantina privata, un locale indispensabile per lo stoccaggio, dove riporre comodamente oggetti e attrezzature. Le spese condominiali, bassissime, rendono questa proprietà ancora più appetibile dal punto di vista economico, mentre il condominio ben curato garantisce un ambiente tranquillo e accogliente.
Punti di Forza dell’Immobile:
Ampi spazi abitativi da personalizzare
Mansarda abitabile con bagno, ideale come spazio aggiuntivo
Posizione centralissima e comoda ai servizi
Bassi costi di gestione condominiale
Cantina privata per una maggiore praticità
Non lasciarti sfuggire questa rara opportunità di vivere a Cairo Montenotte in una casa spaziosa, centrale e con un grande potenziale di personalizzazione. Contattaci oggi stesso per organizzare una visita e scoprire come questo appartamento possa diventare la casa dei tuoi sogni!
Pertinenze
Altro
Classificazione energetica
Efficienza Energetica:
Questo appartamento si trova a Cairo Montenotte (17014).





