Appartamento 7 locali di 211 m² a Cartoceto (61030)
Caratteristiche
Su questo appartamento di 7 locali a Cartoceto (61030)
Appartamento al primo piano in bifamiliare – Lucrezia
Nella tranquilla zona residenziale di Lucrezia, poco trafficata e ben servita, proponiamo in vendita appartamento al primo piano di una bifamiliare, con ingresso indipendente e giardino privato.
L’abitazione, in buone condizioni interne, è molto spaziosa e luminosa, con una superficie di circa 100 mq. L’edificio è stato recentemente ristrutturato esternamente e dotato di cappotto termico, migliorando l’efficienza energetica e l’estetica.
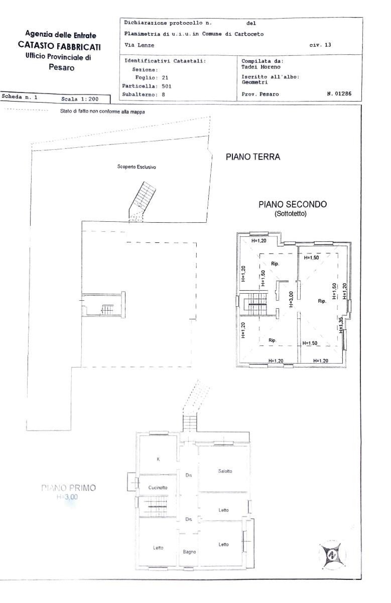
L’accesso all’appartamento avviene tramite scala privata che conduce direttamente all'abitazione ed al giardino di proprietà. All’interno, un lungo corridoio distribuisce gli ambienti: troviamo un accogliente salotto, una sala da pranzo con adiacente cucinotto e, nella zona notte, tre camere da letto matrimoniali ed un bagno.
Dal cucinotto si accede, tramite scala interna, a una mansarda allo stato grezzo di circa 100 mq, con ottime potenzialità di ampliamento o personalizzazione. Una seconda scala, sempre interna, conduce invece al piano terra, dove si trova il vano caldaia ed un secondo accesso diretto al giardino.
Questa configurazione offre l’interessante possibilità di realizzare un secondo appartamento indipendente, ideale per accogliere due nuclei familiari o per uso investimento.
Completa la proprietà la possibilità di costruzione di un box auto nella parte laterale del giardino.
📌 Caratteristiche principali:
-Zona residenziale tranquilla
-100 mq abitativi + 100 mq di mansarda grezza
-Ingresso indipendente su giardino di proprietà
-Possibilità di creare un secondo appartamento
-Possibilità di box auto
-Esterno ristrutturato con cappotto
Il prezzo è di 195.000 € trattabili.
Contattaci per maggiori informazioni e per fissare un appuntamento!
Pertinenze
Esterno
Altro
Questo appartamento si trova a Cartoceto (61030).








