Appartamento 8 locali di 85 m² a Ponsacco (56038)
Caratteristiche
Su questo appartamento di 8 locali a Ponsacco (56038)
Ponsacco Via Einaudi, 25
Rif: MIN Appartamento “La Taverna”
“Ogni casa ha un cuore. E il cuore è dove il fuoco arde e le voci si intrecciano.”
Antico proverbio
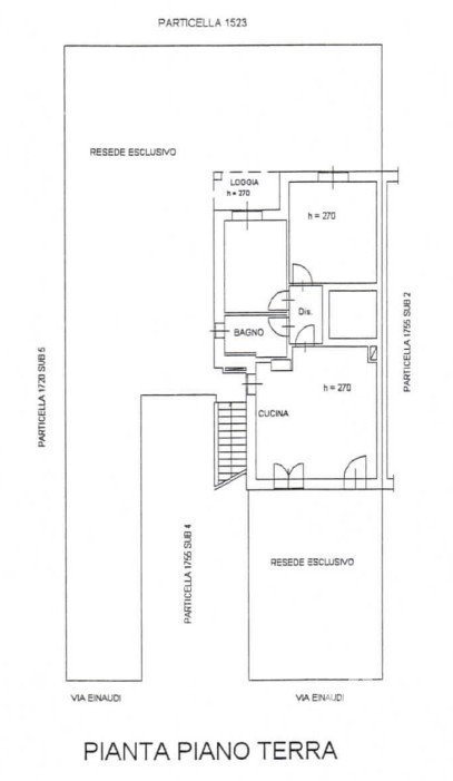
Ci sono case che non offrono solo spazi, ma rituali, profumi, ricordi, case in cui il fuoco diventa una voce, una compagnia, un invito. “La Taverna” è proprio questo: un rifugio caldo, accogliente, un luogo dove la vita profuma di pane, risate e serate condivise. La posizione è semplicemente straordinaria, inserita in un contesto di nuove costruzioni, lontano dal frastuono del traffico, in un’oasi di quiete a due passi dal lago,qui le passeggiate al tramonto diventano poesia: il cielo che si specchia sull’acqua, il silenzio dolce della natura, la sensazione che la giornata si chiuda nel modo più bello possibile. L’appartamento possiede ingresso indipendente ed è impreziosito da un giardino frontale che introduce alla luminosa zona giorno open space, fresca, moderna, curata in ogni dettaglio. Il disimpegno accompagna alla zona notte, composta da due camere, un utile ripostiglio e un bagno. All’esterno è presente un ulteriore grande giardino che si sviluppa lateralmente e sul retro dell’appartamento, perfetto per far correre i bambini, per far giocare i pelosi, per apparecchiare lunghe tavolate d’estate sotto il cielo limpido, qui inoltre, trova posto anche il posto auto privato, comodo e funzionale.
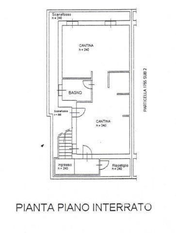
E poi lei…La Taverna, un ambiente immenso, autentico, suggestivo; il caminetto domina la scena pronto a sfornare prelibatezze, cuocere castagne, diventare il centro di cene conviviali, feste familiari, serate che si ricordano. La taverna è dotata di bagno e della possibilità di collegamento diretto con l’appartamento, trasformandosi in un vero spazio multifunzionale: area relax, studio, stanza degli hobby, ambiente per ospiti… ciò che desideri.
✨ Perché scegliere “La Taverna”
* Contesto nuovo, silenzioso, a due passi dal lago.
* Ingresso indipendente e doppio giardino.
* Zona living moderna e luminosa.
* Due camere, ripostiglio, bagno.
* Grande giardino con posto auto.
* Taverna immensa con caminetto e bagno, vero cuore della casa.
* Spazi perfetti per famiglie, amici, convivialità e relax.
“La Taverna” non è un semplice appartamento: è un modo di vivere, è una casa che invita a rallentare, a condividere, a godere delle cose semplici e vere.
Impianto solare termico, cappotto termico
Pertinenze
Esterno
Altro
Classificazione energetica
Efficienza Energetica:
Questo appartamento si trova a Ponsacco (56038).

