Appartamento 5 locali di 120 m² a Sant'Elpidio a Mare (63811)
Su questo appartamento di 5 locali a Sant'Elpidio a Mare (63811)
APPARTAMENTO DI AMPIE METRATURE – CLASSE ENERGETICA A+++
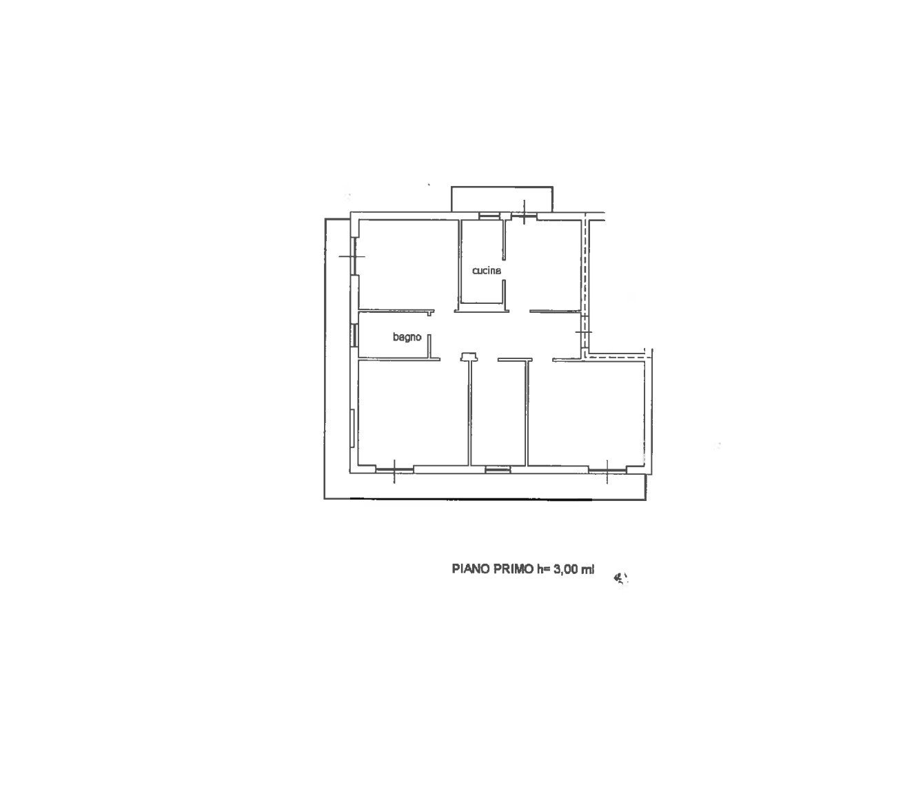
In zona tranquilla e ben servita, proponiamo in vendita un appartamento al primo piano di circa 109 mq più balconi, con ambienti spaziosi e ben distribuiti.
L’ingresso si apre su un corridoio centrale che conduce alla sala da pranzo con angolo cottura, un ampio soggiorno, una cameretta/studio, una camera da letto, un bagno ristrutturato nel 2012 e una camera matrimoniale di ampie dimensioni.
Sono presenti due balconi, a servizio della zona giorno e della zona notte, oltre a una comoda cantina di circa 10 mq al piano seminterrato.
L’appartamento è dotato di infissi in PVC con doppio vetro e zanzariere, serrande predisposte per la motorizzazione, porte interne originali con mostrine nuove e montacarichi recentemente installato.
Inoltre, l’immobile dispone di impianto fotovoltaico ad uso esclusivo dell’abitazione e di un impianto di riscaldamento con caldaia ibrida, soluzioni che garantiscono efficienza energetica e risparmio sui consumi.
L’edificio è stato completamente ristrutturato esternamente nel 2023.
Classe energetica A+++, garanzia di comfort abitativo, sostenibilità e bassi costi di gestione.
Per maggiori informazioni o per prenotare una visita, non esitare a contattarci.
Pertinenze
Interno
Altro
Classificazione energetica
Efficienza Energetica:
Questo appartamento si trova a Sant'Elpidio a Mare (63811).






