Appartamento 5 locali di 117 m² a Sesto Fiorentino (50019)
Caratteristiche
Su questo appartamento di 5 locali a Sesto Fiorentino (50019)
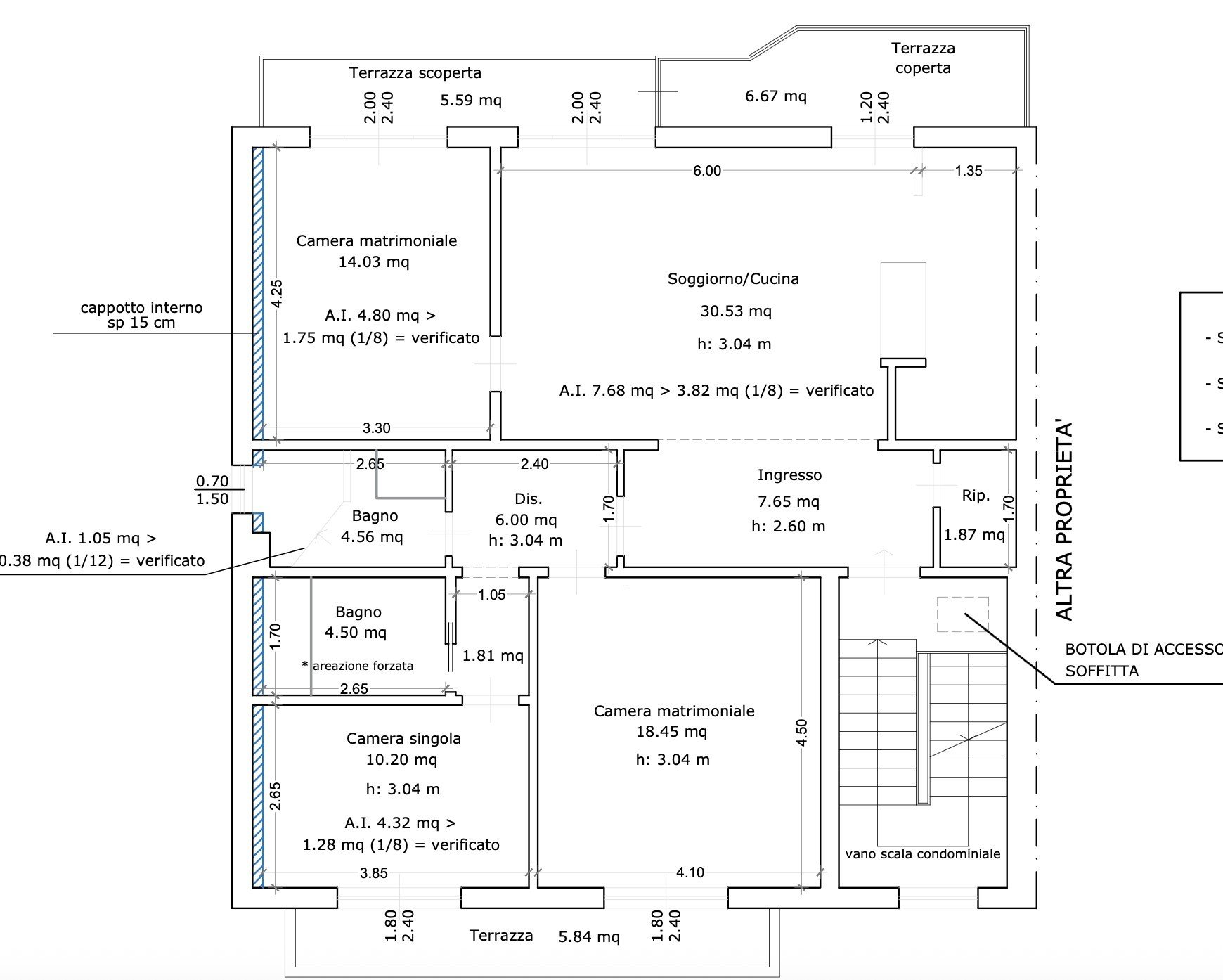
SESTO FIORENTINO – in OTTIMA ZONA residenziale e servita, proponiamo in VENDITA un appartamento LUMINOSO e di RECENTE RISTRUTTURAZIONE, ideale per chi cerca comfort, modernità e spazi ben distribuiti. Situato al SECONDO PIANO, questo immobile offre ambienti accoglienti e curati nei minimi dettagli.
L’abitazione è composta da 5 VANI: un ampio SALOTTO-CUCINA OPEN SPACE perfetto per la vita quotidiana e per momenti di convivialità, 3 CAMERE DA LETTO spaziose, 2 BAGNI moderni e funzionali. Completano la proprietà DUE TERRAZZE che donano luce naturale a tutti gli ambienti e rappresentano un valore aggiunto per chi desidera vivere anche gli spazi esterni.
L’appartamento è dotato di IMPIANTI COMPLETAMENTE ELETTRICI, una scelta sicura ed efficiente che sostituisce il tradizionale sistema a gas. A disposizione dell’acquirente anche un POSTO AUTO riservato e una COMODA CANTINA.
Un’occasione da non perdere per chi desidera vivere in una delle zone più richieste di Sesto Fiorentino, in un contesto tranquillo ma vicino a tutti i principali servizi.
AP
Pertinenze
Esterno
Altro
Questo appartamento si trova a Sesto Fiorentino (50019).

