Appartamento 5 locali di 99 m² a Tortoreto (64018)
Su questo appartamento di 5 locali a Tortoreto (64018)
APPARTAMENTO VISTA MARE
Appartamento in vendita a Tortoreto, una delle località più belle della costa abruzzese.
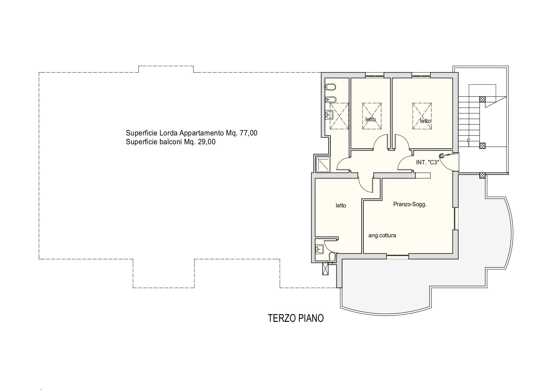
Si trova al terzo piano di una palazzina costruita nel 2006, senza ascensore e con una superficie totale di circa 99 metri quadrati.
L'appartamento è composto da 5 locali, tra cui 3 camere da letto e 2 bagni, appartamento circa 77 mq. terrazzo di circa 14 mq. posto auto di circa 15 mq..
L'appartamento si presenta in buono stato di conservazione, grazie alla cura dei proprietari e al fatto che è arredato con gusto e attenzione ai dettagli.
La cucina è a vista, perfetta per chi ama intrattenere ospiti mentre cucina, e offre un ambiente moderno e funzionale.
Dal terrazzo si può godere di una vista mozzafiato sul mare cristallino della costa adriatica, rendendo ogni momento trascorso in casa un vero e proprio piacere per gli occhi.
L'appartamento dispone di un posto auto scoperto, ideale per chi possiede un'auto e vuole avere sempre un posto dove parcheggiarla in sicurezza.
Il sistema di riscaldamento è autonomo e utilizza il combustibile a metano, garantendo un'ottima efficienza energetica e un notevole risparmio sulle bollette.
La palazzina si sviluppa su un totale di 4 piani, offrendo una buona privacy e tranquillità agli abitanti.
La posizione strategica dell'appartamento, con vista mare, lo rende ideale per chi desidera vivere in un ambiente sereno e allo stesso tempo vicino ai servizi e alle attrazioni del centro cittadino.
Non perdere l'opportunità di acquistare questo meraviglioso appartamento a Tortoreto, perfetto per chi sogna di vivere immerso nella bellezza del mare e della natura, senza rinunciare al comfort e alla comodità di una casa ben strutturata.
Contattaci per maggiori informazioni e per prenotare una visita.
Pertinenze
Altro
Classificazione energetica
Efficienza Energetica:
Emissioni di CO2
Questo appartamento si trova a Tortoreto (64018).









