Appartamento 7 locali di 170 m² a Savona (17100)
Su questo appartamento di 7 locali a Savona (17100)
Prestigioso appartamento di 170 m² in elegante palazzina con ascensore — Via Mongrifone , Savona
In palazzina signorile degli anni ’60 con ascensore, proponiamo in vendita un ampio e luminoso appartamento di 170 m², situato al 2° piano, caratterizzato da finiture di pregio, porte in noce massello e affreschi originali che donano unicità e charme all’immobile.
Caratteristiche principali
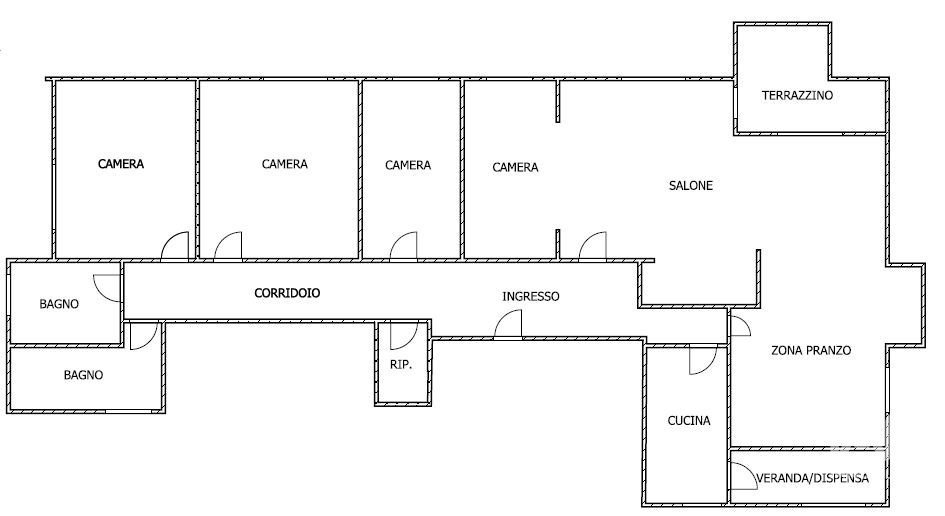
Grande ingresso di rappresentanza
Salone doppio ideale per living + zona pranzo
4 camere da letto di ampia metratura
2 bagni
Cucina abitabile
2 ripostigli
Terrazzino vivibile con affaccio aperto
Riscaldamento centralizzato
Ottima luminosità
Immobile in parte da riordinare, perfetto per personalizzazioni
Superficie totale: 170 m²
Possibilità di divisione in 2 unità abitative (ottimo anche per investimento)
Facilità di parcheggio in strada privata davanti al palazzo
Punti di forza:
Contesto elegante e ben abitato
Parti comuni curate
Ascensore comodo a tutti i piani
Spazi ampi e versatili, difficili da trovare sul mercato
Dettagli di pregio che conferiscono valore e identità
Ideale per famiglia numerosa, studio professionale o investimento con frazionamento
Posizione strategica
L’immobile si trova in una zona comoda e servita, a pochi minuti a piedi da:
Stazione ferroviaria (5–8 min)
Fermate autobus (2 min)
Scuole e servizi principali (8–10 min)
Centro città (10 min)
Mare e lungomare (10–15 min)
Perché sceglierlo:
Una casa di grande rappresentanza, con metrature introvabili e un fascino autentico. Perfetta per chi cerca spazi veri, comfort, comodità ai servizi e la possibilità di valorizzare un immobile già prestigioso
Pertinenze
Altro
Classificazione energetica
Efficienza Energetica:
Questo appartamento si trova a Savona (17100).






