Bilocale di 45 m² a Lonato del Garda (25017)
Su questo bilocale a Lonato del Garda (25017)
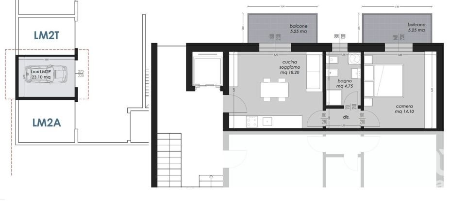
Lonato Del Garda – appartamento bilocale con terrazzini. In zona tranquilla e ben servita, con rapido accesso alla tangenziale, all’autostrada e alla stazione, proponiamo in vendita un luminoso bilocale in palazzina moderna servita da ascensore.
L’appartamento, di circa 45 mq, è arricchito da due balconi di circa 12 mq, totali perfetto per vivere momenti di relax. Completa la proprietà un box auto nell’interrato di circa 25 mq.
Composizione interna: ingresso dal vano scale condominiale, soggiorno con cucina a vista, camera matrimoniale, bagno finestrato e balconi. Gli appartamenti sono disponibili al primo o al secondo piano.
Il prezzo si intende per singolo appartamento comprensivo di box auto, con oneri di acquisto a parte. La vendita è diretta da impresa edile, garanzia di qualità e trasparenza. Classe Energetica A4 – 11,00 Kw/m²a
Un’opportunità ideale per chi sogna una casa moderna, efficiente nel cuore di Lonato del Garda.
Le informazioni riportate sono corrette ma non costituiscono vincolo contrattuale.
Contattateci senza impegno per ricevere ulteriori dettagli o per prenotare una visita.
Pertinenze
Altro
Classificazione energetica
Efficienza Energetica:
Questo appartamento si trova a Lonato del Garda (25017).


