Bilocale di 50 m² a Toirano (17055)
Caratteristiche
Su questo bilocale a Toirano (17055)
BILOCALE CON TERRAZZO, GIARDINO E BOX AUTO DOPPIO TOIRANO
In una zona residenziale tranquilla e curata di Toirano, proponiamo in vendita un bilocale al piano terra con giardino privato, terrazzo e box auto doppio, situato in un complesso di villette moderne composte da due unità immobiliari completamente indipendenti.
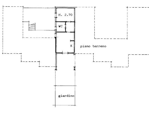
L’appartamento è composto da:
Zona giorno luminosa con cucina a vista e accesso tramite porta-finestra a un ampio spazio esterno di circa 40 mq, suddiviso tra terrazzo e giardino, ideale anche per creare un piccolo orto privato. L’area gode di un’ottima esposizione sud-est.
Disimpegno che conduce alla camera matrimoniale, con accesso al secondo terrazzo piastrellato sul retro.
Bagno finestrato con doccia.
L’immobile è dotato di porta blindata e infissi in doppio vetro, per un comfort termoacustico ottimale e una maggiore sicurezza.
Dal terrazzo posteriore si accede direttamente al box doppio (L 8,65 m – P 3,75 m – H 2,95 m).
È inoltre disponibile un secondo box adiacente di 16 mq (L 3,15 m – P 5 m – H 2,95 m) al prezzo di € 25.000.
Soluzione ideale come seconda casa o per chi cerca tranquillità, indipendenza e praticità a pochi minuti dal mare.
3 MOTIVI PER ACQUISTARE QUESTO IMMOBILE:
- AMPIO TERRAZZO
- GIARDINO PRIVATO
- BOX AUTO DOPPIO
VUOI VENDERE CASA? AFFIDATI A NOI!
Cosa offriamo?
- pubblicità su TUTTI i portali immobiliari italiani ed esteri
- OPEN HOUSE a 5 stelle
- una rete con più di 18000 consulenti immobiliari a livello europeo
AFFIDATI A NOI PER UNA VALUTAZIONE GRATUITA DEL TUO IMMOBILE! NON PERDERE L' OCCASIONE DI VENDERE CON NOI IN TEMPI BREVISSIMI RISPETTO A TUTTA LA CONCORRENZA E AI MASSIMI PREZZI DI MERCATO!
LE NOSTRE CASE SONO TUTTE IN ESCLUSIVA, LE VEDI SOLO CON NOI!
Questa descrizione ha valore puramente indicativo e non costituisce elemento contrattuale.
Pertinenze
Esterno
Altro
Classificazione energetica
Efficienza Energetica:
Questo appartamento si trova a Toirano (17055).







