In Esclusiva
Rustico 3 locali di 45 m² in Pontinvrea (17042)
20.000 €
444 €/m²
45 m²
3 locali
1 camera da letto
1 bagni
Su questa casa/villa di 3 locali a Pontinvrea (17042)
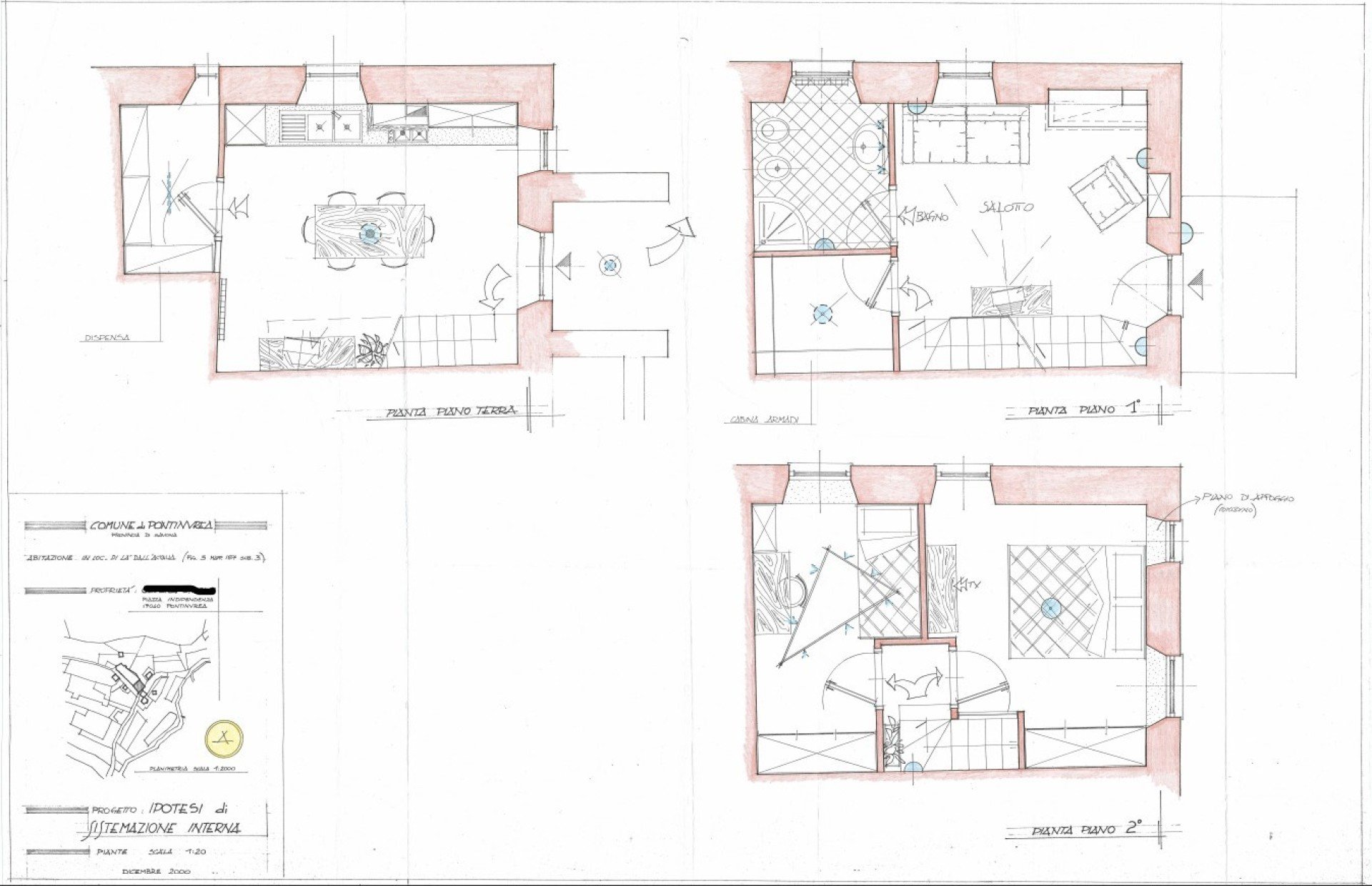
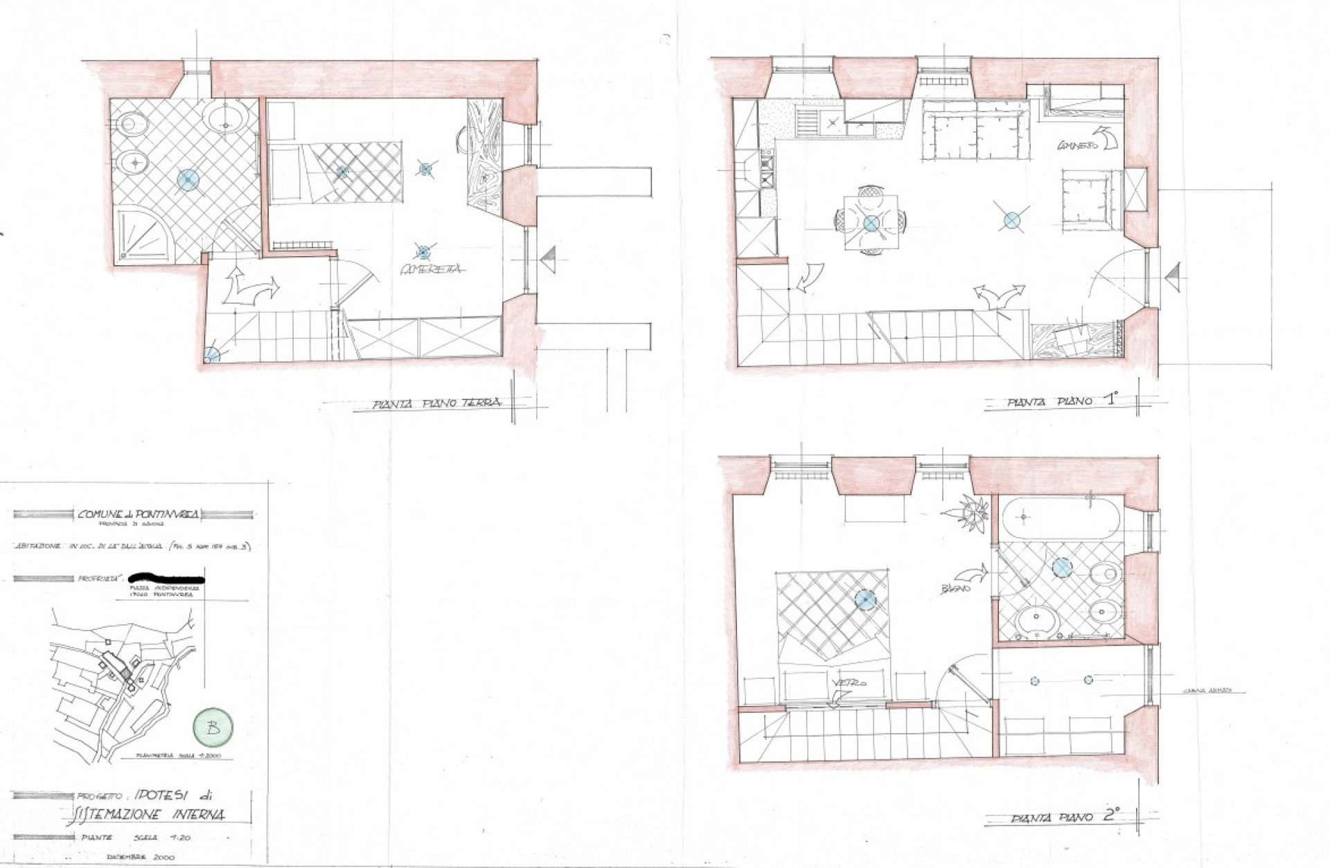
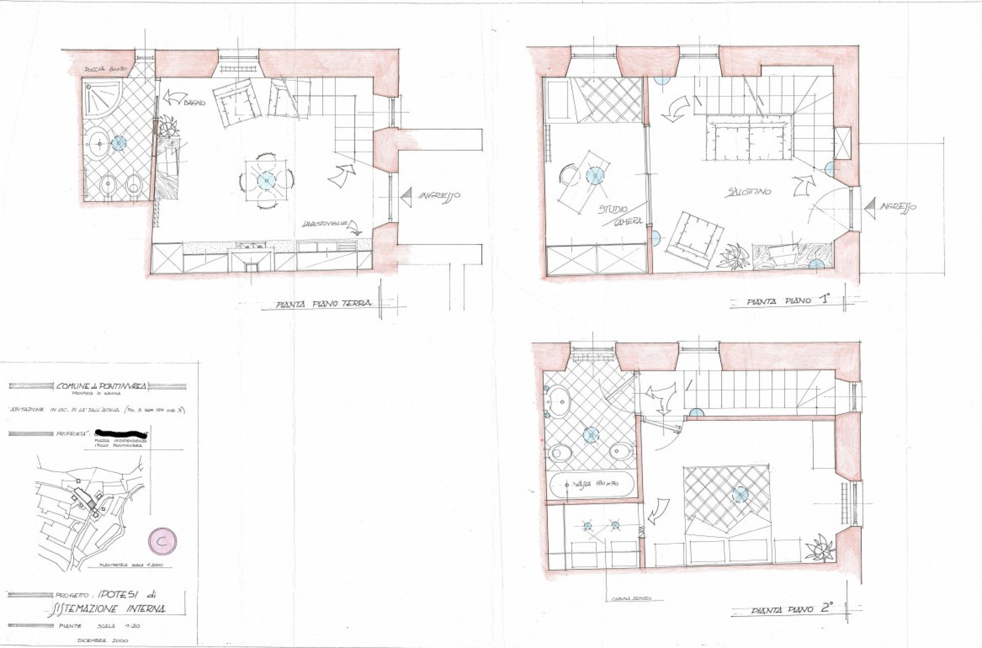
PONTINVREA - A due passi dal Paese proponiamo rustico semindipendente su tre livelli in pietra molto caratteristico, completamente da ristrutturare.
La parte abitativa è di circa 45 mq, al piano terra troviamo un magazzino e al secondo piano una soffitta.
Completa la proprietà un piccolo appezzamneto di terreno.
Molto comoda la posizione vicina al centro del Paese ed ai servizi.
Se hai intenzioone di acquistare una casetta in campagna, da crearti a tuo gusto, abbiamo già pronte alcune soluzioni di ristrutturazione che potranno aiutare la tua fantasia, non farti sfuggire questa occasione, contattami!
Riferimento: 102056
Pertinenze
Esterno
Superficie del terreno: 24 m²
Altro
Anno di costruzione: 1800
Classificazione energetica
Efficienza Energetica:
Proprietà ad alta efficienza energetica Proprietà a bassa efficienza energetica
Dove si trova l'immobile?
Questa casa/villa si trova a Pontinvrea (17042).
Immobili simili
Popover 1
Popover 2
Popover 3
Popover 4







