Rustico 35 locali di 1.006 m² in Osimo (60027)
Caratteristiche
Su questa casa/villa di 35 locali a Osimo (60027)
Antica Osteria Casenuove
Cerchi un'opportunità unica per investire in un immobile storico con un passato affascinante?
Ti presentiamo questa splendida osteria del 1700, situata nel cuore della frazione Casenuove di Osimo , che offre un'atmosfera unica e suggestiva.
L'immobile, che necessita di ristrutturazione, è caratterizzato da cantine con volte a crociera e grotte che erano antichi passaggi segreti per arrivare alla dimora del vescovo.
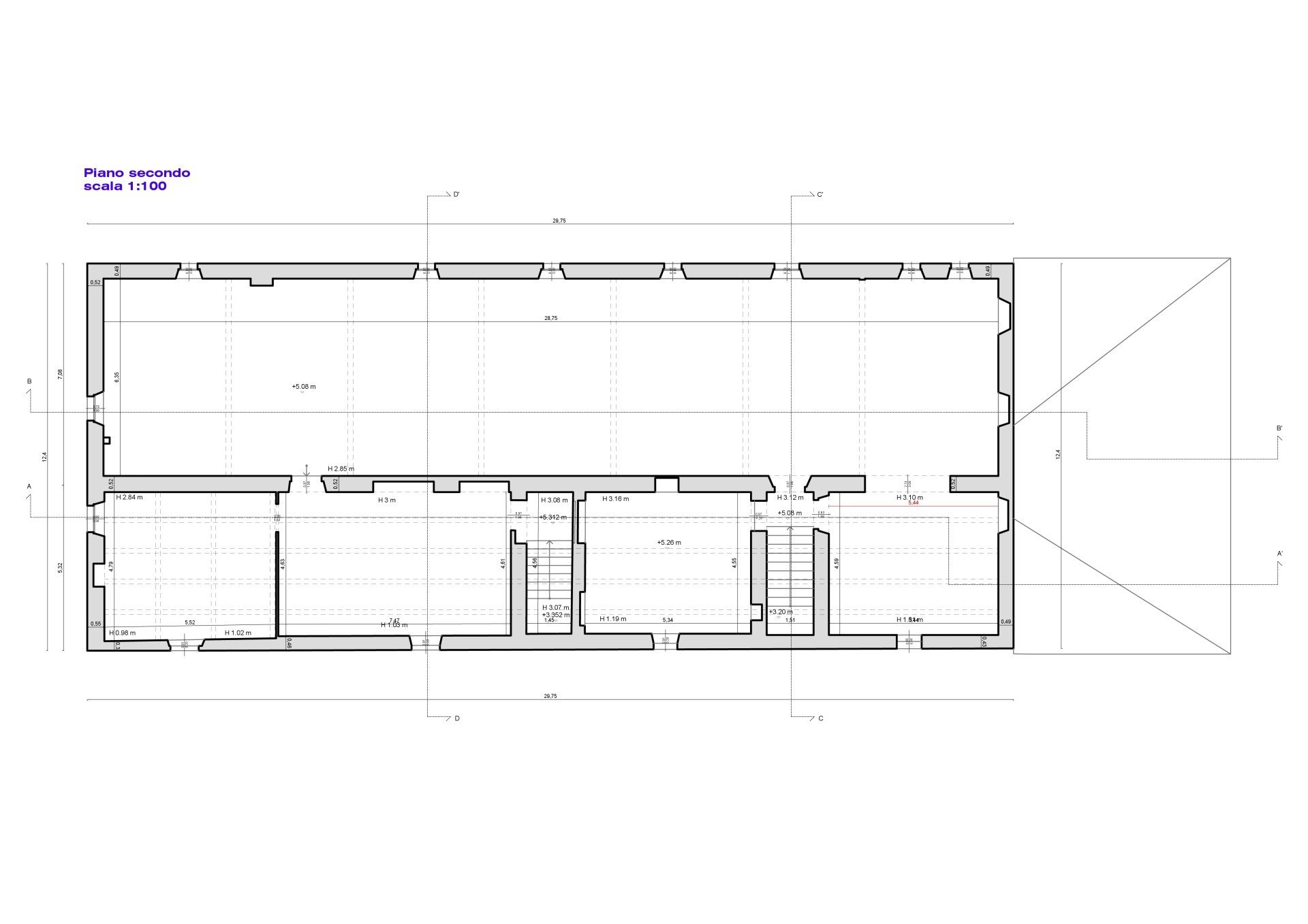
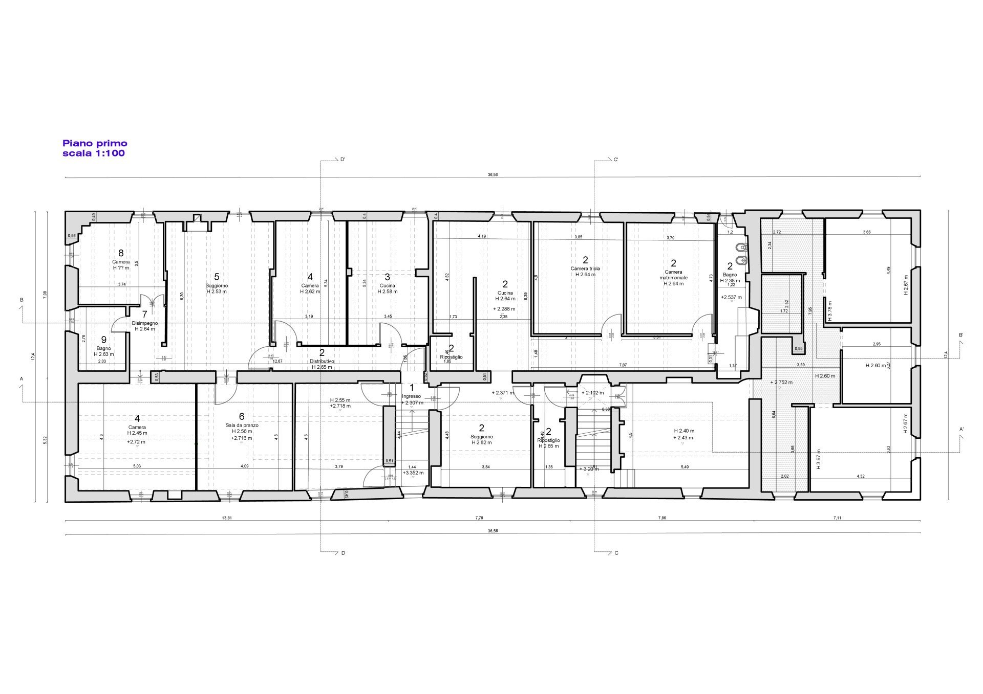
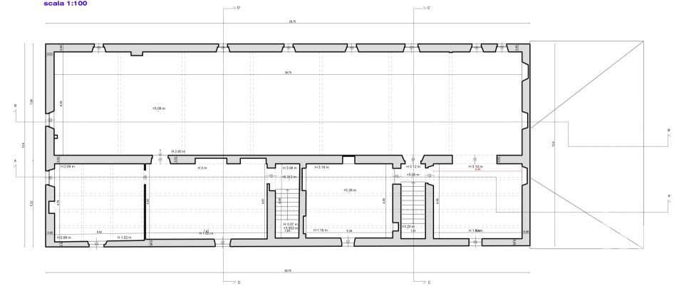
L'intera proprietà si compone da un corpo principale di circa 1.000 mq. oltre ad un accessorio ed un ampio giardino di circa 3.000mq.
Questa proprietà rappresenta un'opportunità unica per creare una residenza esclusiva o un'attività commerciale di successo.
Grazie alla sua posizione privilegiata e alla sua storia affascinante, questo immobile ha un enorme potenziale.
Inoltre, essendo un immobile tutelato dai beni architettonici, è possibile ottenere contributi dalla soprintendenza per la sua ristrutturazione.
Cogli questa occasione unica per investire in un immobile storico con un passato affascinante e un futuro promettente.
Contattaci oggi per maggiori informazioni e per prenotare una visita.
Pertinenze
Esterno
Altro
Classificazione energetica
Efficienza Energetica:
Questa casa/villa si trova a Osimo (60027).

