Casale 13 locali di 900 m² in Perugia (06132)
Caratteristiche
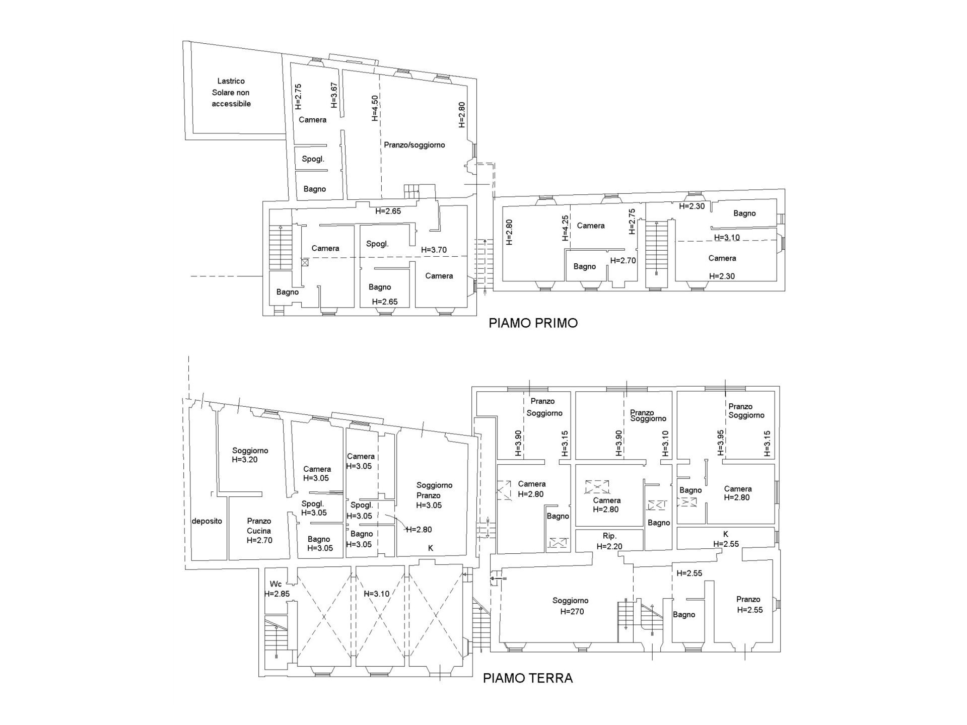
Su questa casa/villa di 13 locali a Perugia (06132)
Immerso in un paesaggio da sogno, il Residenze di Via della Frusta, 15-17 – Loc. S.Arcangelo – Magione, è un capolavoro di design e funzionalità. Recentemente ristrutturato e classificato in classe energetica B, questo progetto esclusivo si sviluppa su circa 900 mq di spazi abitativi, affiancati da un giardino privato di 800 mq completamente recintato che offre una vista ineguagliabile sul Lago Trasimeno.
Spazi abitativi pensati per il massimo confort
Le sette residenze sono state progettate nei minimi dettagli per rispondere alle esigenze più sofisticate.
Soluzioni abitative varie:
- Un appartamento con 3 stanze, bagno, soggiorno e cucina;
- Un'altra tipologia con cucina, lavaggio, soggiorno e 2 stanze con bagno;
- Tre appartamenti di circa 50 mq ciascuno, composti da un salottino, cucina e una camera con bagno;
- Due appartamenti di 75 mq circa, composti da salottino, cucina e una camera con bagno.
Tutti gli ambienti sono inondati di luce naturale e impreziositi da finiture di pregio, grazie anche a tecnologie all’avanguardia quali il riscaldamento a pavimento, la pompa di calore e il solare termico.
Un'oasi di pace e bellezza:
Il complesso è circondato da un giardino esclusivo di 800 mq, un vero e proprio angolo di paradiso dove la natura regna sovrana.
- Piscina vista lago: Un invito quotidiano al relax, con una vista diretta sul Lago Trasimeno che trasforma ogni momento in un’esperienza rigenerante.
- Dettagli di pregio: Ogni particolare è stato curato per creare un ambiente armonioso, dove l’ampiezza degli spazi si fonde con la tranquillità del paesaggio.
Una Spa per il benessere totale
All'interno del complesso, una piccola spa aggiunge un tocco esclusivo all’offerta. Questo spazio, concepito per offrire momenti di benessere e relax, si integra perfettamente nel contesto ricettivo, valorizzando ulteriormente l’esperienza abitativa.
Il connubio perfetto tra urbanità e natura
Posizionato in una zona che unisce l’urbanità e il fascino rurale, il complesso offre il meglio di entrambi i mondi:
- Vicino a tutti i servizi: Con tutti i servizi a portata di mano e il centro storico di Assisi a pochi chilometri, la posizione garantisce comodità senza rinunciare alla privacy.
- Vista panoramica incomparabile: Ogni finestra e ogni terrazzo si affacciano sul Lago Trasimeno, donando una luminosità e una serenità che rigenerano lo spirito.
Un'opportunità per famiglie, investitori e turisti
Questa struttura ricettiva, già avviata e piena di dettagli di pregio, rappresenta un investimento d’eccellenza. Ideale per famiglie in cerca di un’abitazione esclusiva, per investitori desiderosi di un progetto dal forte potenziale e per turisti che cercano un’esperienza autentica e raffinata.
Contattaci per scoprire come questo complesso, dove ogni dettaglio è pensato per ispirare e accogliere, possa diventare il tuo nuovo modo di vivere in perfetta armonia con la bellezza del paesaggio umbro.
Pertinenze
Esterno
Altro
Classificazione energetica
Efficienza Energetica:
Questa casa/villa si trova a Perugia (06132).

