Casa indipendente 3 locali di 61 m² in Anzio (00042)
Caratteristiche
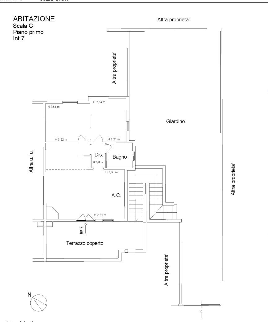
Su questa casa/villa di 3 locali a Anzio (00042)
Appartamento indipendente ,primo piano con giardino ad Anzio
In zona tranquilla e ben servita di Anzio, precisamente in Via delle Kenzie, proponiamo in vendita un appartamento indipendente con giardino privato di circa 90 mq, ideale per chi cerca riservatezza e comfort a pochi passi dal mare.
L'appartamento e', situato al primo piano ed ha ingresso indipendente . E' composto da
un luminoso soggiorno con camino , cucina a vista, camera,cameretta, bagno finestrato una
veranda vivibile, perfetta per momenti di relax o pranzi all'aperto.
Contesto tranquillo e residenziale
Poca distanza dal mare
Vicinanza a tutti i principali servizi (negozi, scuole, mezzi pubblici)
Ottima soluzione sia come abitazione principale che come casa vacanze.
Contattami per maggiori informazioni o per fissare una visita!
Pertinenze
Esterno
Altro
Classificazione energetica
Efficienza Energetica:
Questa casa/villa si trova a Anzio (00042).


