Casale 4 locali di 210 m² in Bettona (06084)
Su questa casa/villa di 4 locali a Bettona (06084)
Bettona Via Cinque Cerri, 30
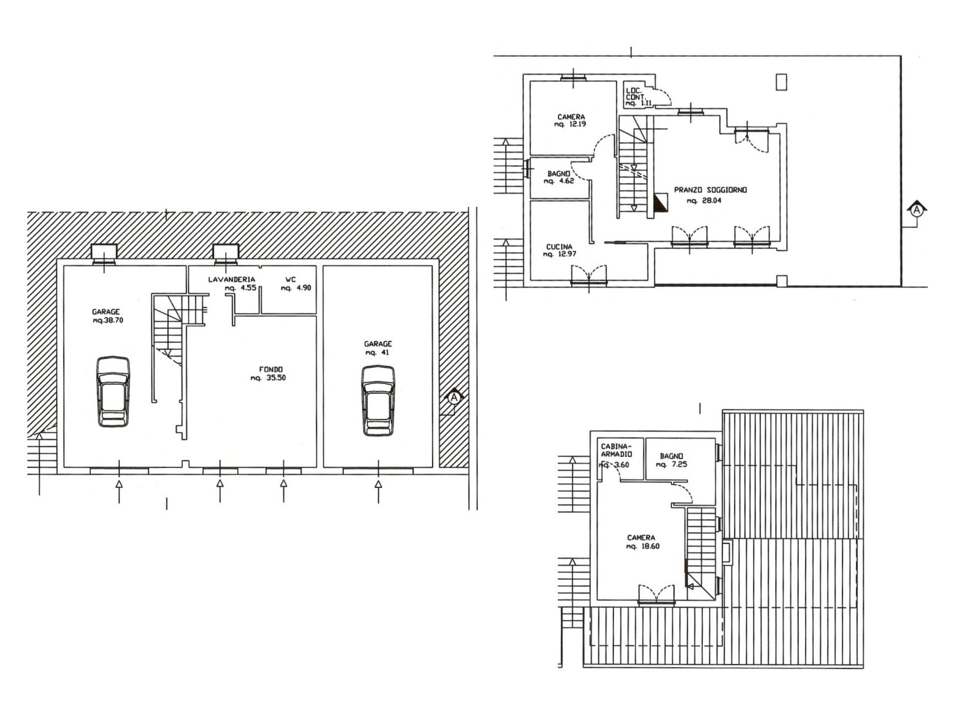
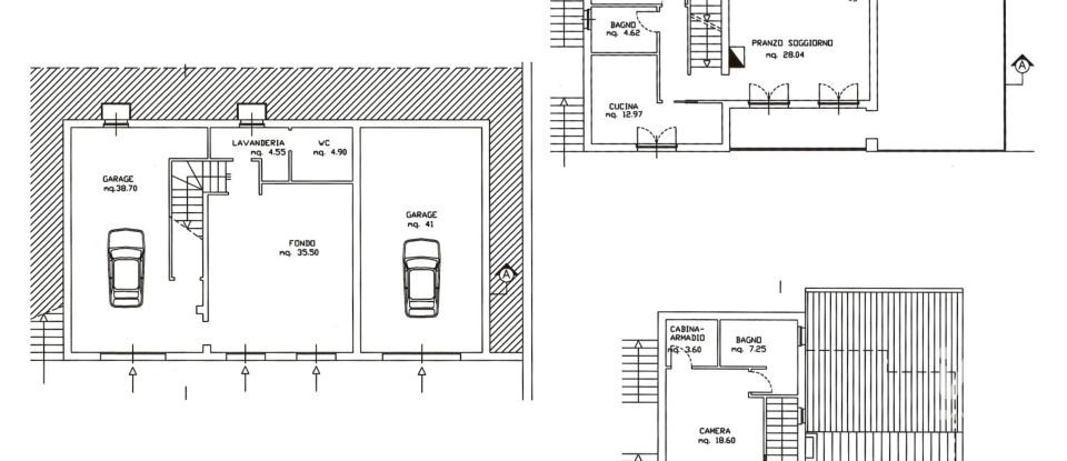
Descrizione: Situate in una posizione collinare, questo progetto immobiliare offre tre villette monofamiliari di ampia metratura e con buone finiture. Le proprietà sono articolate su tre livelli, misurano 210 mq ognuna, offrendo così uno spazio abitativo generoso e ben distribuito.
Caratteristiche principali:
Posizione Collinare: La proprietà si trova in una zona collinare, regalando non solo una splendida vista panoramica ma anche un ambiente tranquillo e rilassante.
Villette: Si tratta di costruzioni mai abitate, il che significa che gli acquirenti avranno la possibilità di godere di un'abitazione di concezione moderna con tutte le comodità.
Ampia Metratura: Le villette offrono ampi spazi abitativi, fornendo comfort e flessibilità per soddisfare le esigenze di una famiglia.
Tre Livelli: La disposizione su tre livelli permette di separare le aree giorno e notte, garantendo privacy e una migliore organizzazione degli spazi.
Giardino di Pertinenza: Ogni villetta è corredata da un giardino di pertinenza, un luogo ideale per trascorrere momenti all'aria aperta, organizzare cene o coltivare un piccolo giardino.
Ben Rifinite: Le villette sono caratterizzate da finiture di buona qualità, garantendo un'abitazione elegante e confortevole.
Questo annuncio suggerisce un'opportunità interessante per chi cerca una residenza spaziosa in una zona tranquilla e panoramica. Se interessati, potreste voler contattare il responsabile alle vendite per ottenere ulteriori dettagli o pianificare una visita alle proprietà, in tal caso contattare Luca Lancetti cell. 335.56.17.822
Pertinenze
Esterno
Altro
Classificazione energetica
Efficienza Energetica:
Questa casa/villa si trova a Bettona (06084).

