Casa indipendente / Villa 6 locali di 103 m² in Casciana Terme (56034)
Su questa casa/villa di 6 locali a Casciana Terme (56034)
Villetta L'ASTRATTISMO
La vita è una sorta di dipinto. Uno di quelli astratti, molto stravaganti. A prima vista può sembrare solo una macchia confusa. Ma se si guarda bene e ci si concentra usando un po’ d’immaginazione, la vita può diventare molto di più. Quel quadro potrebbe rappresentare il mare, il cielo, delle persone, degli edifici, una farfalla su un fiore o qualunque altra cosa tranne la macchia confusa che prima si era convinti che fosse. (Cecelia Ahern)
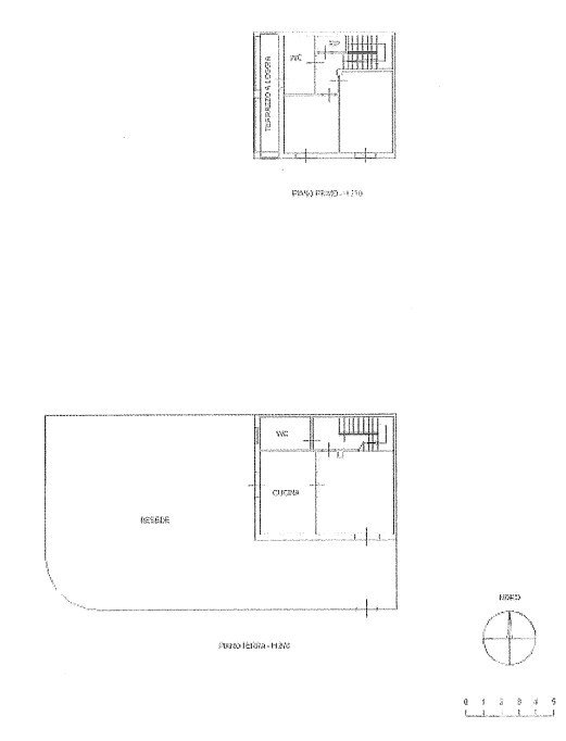
L'astrattismo si distingue per l'assenza di riferimenti diretti al mondo naturale, gli artisti si concentrano su elementi come forma, colore, linea e texture per creare composizioni che possono evocare emozioni, idee o stati d'animo. I pittori Astrattisti coltivavano un’originale concezione del bello che, come detto, non faceva alcun riferimento alla realtà. La loro pittura era fatta di luce, colori puri, di forme elementari che non erano riconducibili a figure e composizioni tradizionali. In due parole il bello senza riferimento al vero…..in questa dimora il bello invece è tangibile, reale oggettivo ! Si perché questa perla di villetta racchiude in se il bello, la quiete, la riservatezza l’amore.”L’astratticmo” è una villetta in quadrifamiliare inserita in un contesto di recenti costruzioni poste in un borgo tranquillo e immerso in un parco privato. L’acceso all’immobile percorso lo spazio a comune è da pedonale e da qui al generoso e curato giardino dove piccole canaglie insieme ai loro animali pelosi potranno giocare e schiamazzare in tutta tranquillità e serenità. Fantastico il pergolato in legno sotto il quale poter organizzare con gli amici festose cene conviviali o rilassarsi durante le calde sere estive ammirando il fantastico cielo stellato che qui vi assicuro essere fantastico ! Potrete decidere se accedere dalla grande zona relax oppure dall’ampia cucina abitabile; i due ambienti sono ben distinti tra loro ma la grande apertura ideata dai proprietari, creano un effetto open space invidiabile, comodo e funzionale il bagno a servizio della zona giorno. Comode scale ci accompagnano alla zona notte composta da una camera matrimoniale dotata di terrazza coperta e da una camera doppia, il bagno e un ripostiglio. Comodo il posto auto esterno. Ottime le condizioni di manutenzione e finiture di livello
Pertinenze
Interno
Esterno
Altro
Classificazione energetica
Efficienza Energetica:
Questa casa/villa si trova a Casciana Terme (56034).

