Casa indipendente 3 locali di 88 m² in Cisternino (72014)
55.000 €
625 €/m²
88 m²
3 locali
2 camere da letto
Caratteristiche
Piano terra
Su questa casa/villa di 3 locali a Cisternino (72014)
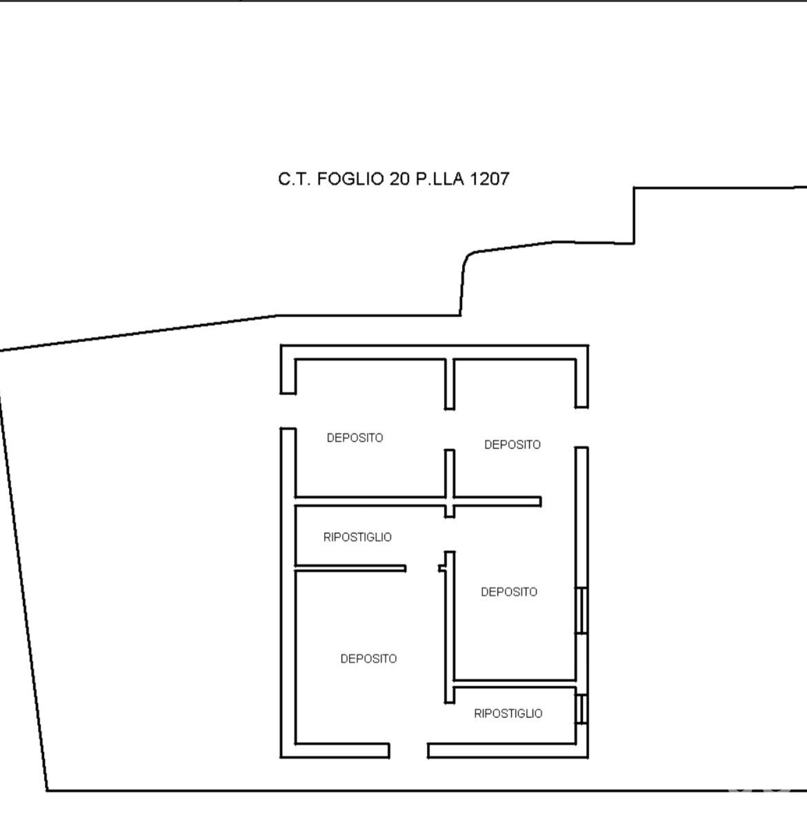
Proponiamo in vendita, nel cuore della splendida Valle d’Itria e a pochi passi dal centro abitato, una struttura attualmente accatastata come deposito (categoria catastale C/2).
L’immobile si compone di quattro vani oltre accessori, ed è immerso in un suggestivo terreno panoramico di circa 3.500 mq, ideale per chi cerca tranquillità e contatto con la natura.
Nota Importante: Adiacente alla proprietà è disponibile all’acquisto un trullo con progetto approvato per la realizzazione di un ampliamento e di una piscina, offrendo così la possibilità di creare un’abitazione principale con dependance, ideale per accogliere ospiti o per una soluzione ricettiva.
Riferimento: 144298
Pertinenze
Esterno
Superficie del terreno: 3.570 m²
Altro
Anno di costruzione: 1970
Piano terra
Dove si trova l'immobile?
Questa casa/villa si trova a Cisternino (72014).
Immobili simili
Popover 1
Popover 2
Popover 3
Popover 4






