Casa indipendente 3 locali di 98 m² in Finale Emilia (41035)
80.000 €
816 €/m²
98 m²
3 locali
2 camere da letto
2 bagni
Su questa casa/villa di 3 locali a Finale Emilia (41035)
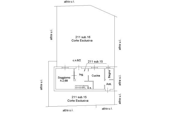
Porzione di casa di testa con cortile privato
L'Agenzia Immobiliare Risiko propone in vendita a Massa Finalese, porzione di casa di testa, di ampie metrature, con piccolo cortile privato. Internamente la soluzione è così composta: A Piano terra troviamo il soggiorno, la cucina abitabile con accesso al cortile sul retro della casa ed il bagno. Salendo al piano superiore troviamo due camere da letto matrimoniali ed un ulteriore bagno L'immobile non dispone di garage. Il riscaldamento è autonomo e la caldaia è a condensazione. PERCHE' ACQUISTARE L'IMMOBILE: -Ampie metrature -Ingresso indipendente
Riferimento: 150752
Pertinenze
Altro
Anno di costruzione: 1980
Classificazione energetica
Efficienza Energetica:
Proprietà ad alta efficienza energetica Proprietà a bassa efficienza energetica
Dove si trova l'immobile?
Questa casa/villa si trova a Finale Emilia (41035).
Immobili simili
Popover 1
Popover 2
Popover 3
Popover 4


