Casale 4 locali di 120 m² in Castiglione delle Stiviere (46043)
Caratteristiche
Su questa casa/villa di 4 locali a Castiglione delle Stiviere (46043)
Villa indipendente in vendita a Castiglione delle Stiviere, posizionata in zona tranquilla comoda ai servizi.
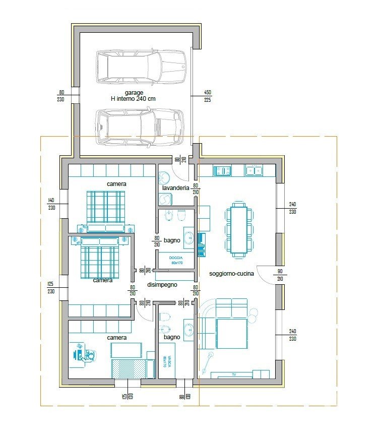
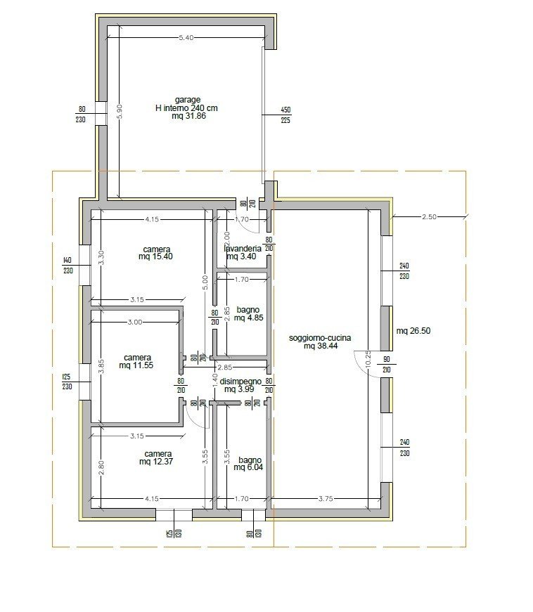
La casa è di circa 120 mq, con un box auto di circa 32 mq., calpestabili, su un terreno di 550,00 mq., per un commerciale di mq 166,00.
La sua composizione è con ingresso indipendente, soggiorno con zona cucina a vista, 2 bagni, 3 camere letto di cui 2 matrimoniali e 1 singola .
Alla villa su richiesta si può aggiungere la piscina, un impianto di domotica avanzata, il giardino piantumato ed altri accessori.
Classe Energetica A4 11,00 Kw2a
Le informazioni presentate sono corrette ma non costituiscono presupposto contrattuale
Potete contattarci senza impegno per ottenere maggiori informazioni o per prenotare una visione per questa villa a Castiglione delle Stiviere
Pertinenze
Esterno
Altro
Classificazione energetica
Efficienza Energetica:
Emissioni di CO2
Questa casa/villa si trova a Castiglione delle Stiviere (46043).













