Villa Bifamiliare 9 locali di 514 m² in Castiglione Torinese (10090)
Caratteristiche
Su questa casa/villa di 9 locali a Castiglione Torinese (10090)
Un'opportunità unica per chi cerca spazio, indipendenza e un profondo legame con la natura. Questa villa bifamiliare, edificata nel 1982, è la risposta ideale per due nuclei familiari o per un'unica famiglia allargata che desidera vivere insieme senza rinunciare alla propria privacy.
Situata a Castiglione Torinese, in Strada Cordova 42, l'immobile si distingue per il suo ampio giardino di 2521 metri quadri, un vero polmone verde che offre innumerevoli benefici. Potrai goderti un'oasi di tranquillità, creare un'area giochi sicura per i bambini o per i tuoi animali domestici, organizzare cene e barbecue con gli amici o coltivare il tuo orto personale. Vivere a contatto con la natura migliora il benessere psicofisico e riduce lo stress quotidiano.
La villa è composta da due unità abitative speculari, garantendo a ciascuna famiglia la massima indipendenza, pur potendo contare sulla vicinanza dell'altra.
Composizione dell'immobile
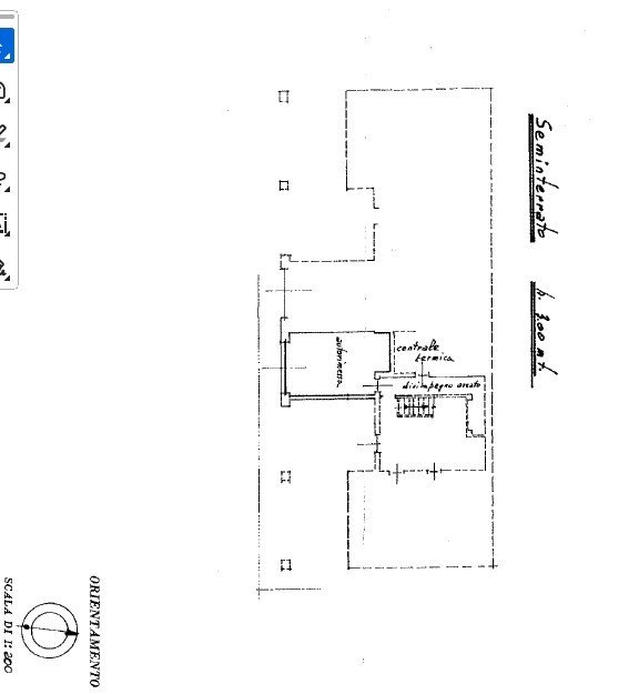
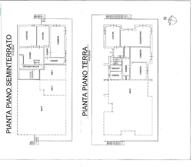
Unità Abitativa 1: Si sviluppa su due piani. Al piano terra si trovano un ingresso, un ampio soggiorno, una cucina abitabile, tre camere da letto, un bagno, un disimpegno e un ripostiglio. Il piano seminterrato è dotato di una cantina, una seconda cucina, un bagno, un disimpegno e un locale caldaia.
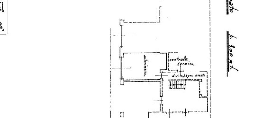
Unità Abitativa 2: Il piano seminterrato include una spaziosa autorimessa, una centrale termica e un disimpegno.
Questa soluzione abitativa offre la flessibilità di personalizzare gli spazi in base alle proprie esigenze, senza i vincoli di un condominio tradizionale. Le due unità catastalmente separate offrono inoltre la possibilità di mettere a reddito una delle due porzioni, affittandola a terzi.
Un'occasione imperdibile per chi cerca una vita serena, circondata dal verde, con ampi spazi e la libertà di creare la casa dei propri sogni.
Ecco tre ottimi motivi per acquistare questa villa bifamiliare a Castiglione Torinese:
1. Ampi spazi interni ed esterni per il massimo comfort
Questa villa non solo offre ampie superfici interne, ma è anche circondata da un vasto giardino privato di 2.521 metri quadrati. Vivere qui significa avere a disposizione un'oasi di tranquillità dove potrai goderti la natura, organizzare cene all'aperto con amici e famiglia e creare uno spazio sicuro per far giocare i tuoi figli e i tuoi animali domestici.
2. Indipendenza e flessibilità per due nuclei familiari
L'immobile è composto da due unità abitative speculari, ciascuna con ingressi indipendenti, il che lo rende ideale per chi desidera vivere vicino a un'altra famiglia, come genitori o fratelli, mantenendo al tempo stesso la propria privacy. La struttura permette anche di utilizzare una delle due unità per generare un reddito extra, affittandola o trasformandola in una dependance per gli ospiti.
3. Vantaggi unici che solo una villa del 1982 può offrire
Essendo un'abitazione singola costruita nel 1982, la villa garantisce la totale assenza di costi e vincoli condominiali. Le due unità abitative, inoltre, sono catastalmente separate, offrendo una grande flessibilità in termini di gestione e proprietà.
Pertinenze
Interno
Esterno
Altro
Questa casa/villa si trova a Castiglione Torinese (10090).



