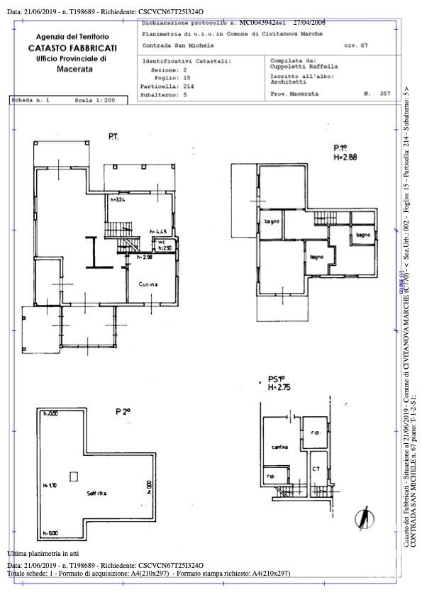
Casale 4 locali di 355 m² in Civitanova Marche (62012)
Caratteristiche
Su questa casa/villa di 4 locali a Civitanova Marche (62012)
Eleganza e comfort con vista mozzafiato – Villa con piscina in vendita a Civitanova Alta
In posizione esclusiva e panoramica, immersa nella tranquillità delle colline marchigiane, proponiamo in vendita una splendida villa di 355 mq con garage di 56 mq, situata a pochi minuti dal centro storico di Civitanova Alta.
Questa proprietà unica, sviluppata su due livelli, conquista al primo sguardo grazie al suo giardino curato con vista aperta sul borgo antico e sulla maestosità degli Appennini, offrendo ogni giorno uno spettacolo naturale senza eguali.
Al piano terra, l'ingresso si apre su un ampio e luminoso salone doppio, perfetto per accogliere famiglia e amici, affiancato da una spaziosa sala da pranzo e da una cucina abitabile, ideale per chi ama vivere la casa con gusto e convivialità. Un comodo bagno di servizio completa la zona giorno.
Dalla zona living si accede a una raffinata veranda con vetrate panoramiche, che affaccia direttamente sulla piscina privata, creando un connubio perfetto tra spazi interni ed esterni, per momenti di relax o convivialità in ogni stagione.
Al secondo piano, la zona notte offre tre camere da letto ampie e luminose, ciascuna dotata di bagno privato, per garantire comfort e privacy a ogni membro della famiglia o ai propri ospiti.
Questa villa rappresenta una perfetta combinazione tra eleganza, funzionalità e posizione strategica, in un contesto riservato ma ben collegato sia al mare che ai servizi principali.
Un’occasione rara per chi cerca una residenza prestigiosa, immersa nel verde e con una vista che lascia senza fiato.
Contattaci per una visita e lasciati incantare dal fascino unico di questa proprietà.
Pertinenze
Interno
Esterno
Altro
Classificazione energetica
Efficienza Energetica:
Questa casa/villa si trova a Civitanova Marche (62012).





