Casale 8 locali di 300 m² in Loreto (60025)
Caratteristiche
Su questa casa/villa di 8 locali a Loreto (60025)
"CASABLANCA"
Imponente, accogliente... sorprendente!
Questo bellissimo immobile di oltre 220mq abitativi (oltre garage e corti), ristrutturato ed ampliato nel 1994 (con tutte le regolari licenze di costruzione), si presenta fin da subito come una costruzione dalle forme movimentate per quanto voluminosa.
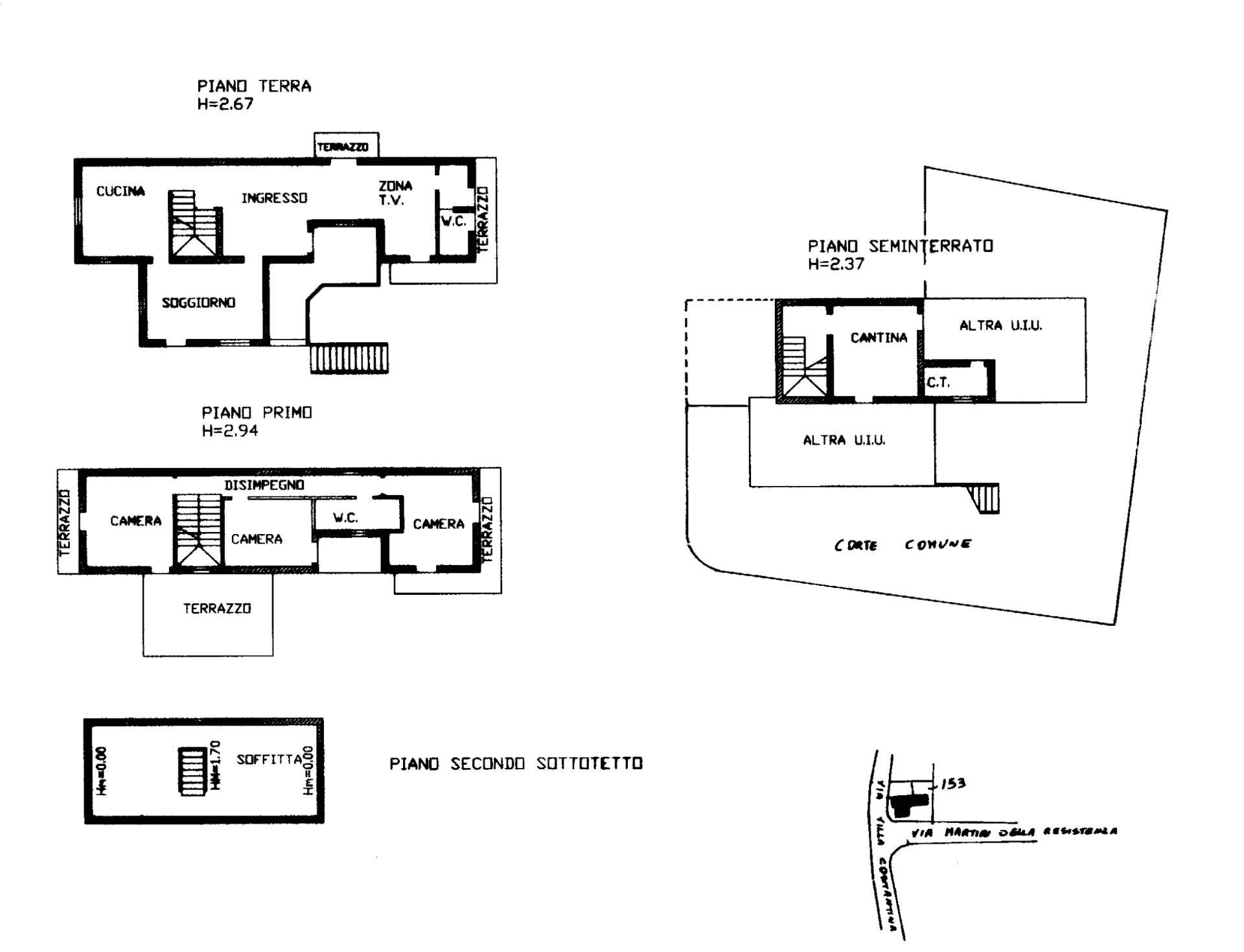
CASABLANCA è inizialmente un immobile di circa 100mq costituito da 4 stanze principali. Nasce infatti nel 1956, costruita sul terreno su cui si erge. La struttura è stata nel tempo ampliata per poi essere, come già anticipato, interamente ristrutturata e ridistribuita internamente, acquisendo l'attuale colore dominante, il bianco, su tutta la casa.
Ci accoglie al suo ingresso con il soggiorno, da cui si accede sia al disimpegno con tavolo da tè (che a sua ci rivela lo studio, l'ampio locale lavanderia e il primo bagno), che alla comoda sala da pranzo e alla grande e spaziosissima cucina abitabile, dotata di due porte vetrate a soffietto. Il colore caldo del legno negli arredi, unito alle varie tappezzerie di pregio e all'oggettistica asiatica scalda tutti gli ambienti, di per sé a tinteggiatura neutra.
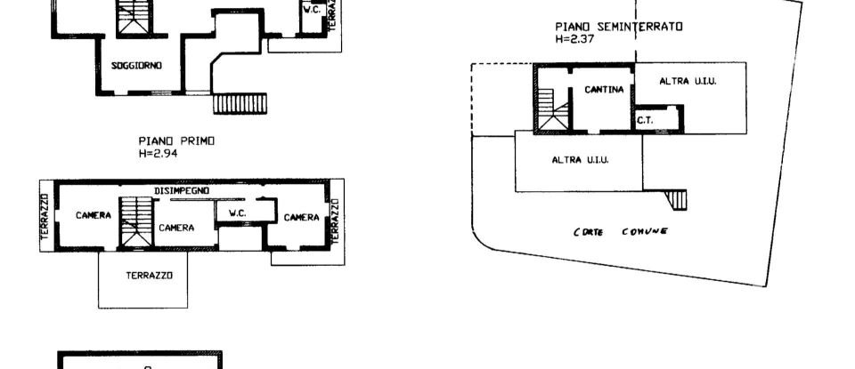
La zona giorno di CASABLANCA, ovvero tutto il piano terra, regala la giusta riservatezza in ogni suo ambiente... e ogni stanza gode di un comodissimo affaccio esterno, o sulla corte pavimentata o sui balconi. La stessa privacy viene mantenuta, salendo, anche al primo piano dove troviamo la zona notte con le sue tre ampie camere e il secondo bagno, spazioso e dotato di vasca ad idromassaggio. La camera matrimoniale ci regala due affacci bellissimi, sia sul balcone da cui riusciamo a scorgere il meraviglioso mare e il Monte Conero che sul gran terrazzo da cui scorgiamo la meravigliosa Basilica della Santa Casa di Loreto.
Anche la cameretta con il suo balconcino, vera chicca per godersi un sano relax, ci fa scorgere la splendida Cupola recentemente rimessa a nuovo. La terza camera alla fine del corridoio è anch'essa sinonimo di spazio e di comodità...!
Ciliegina sulla torta di CASABLANCA oltre all'enorme spazio contenitivo in soffitta, sono i suoi due garage, altrettanto grandi e il locale di sgombero (cantina), da cui si accede internamente tramite le scale! Anche da qui si giunge alla corte, interamente pavimentata, con la possibilità di godersi anche un dolce spazio verde con barbecue e capanna porta attrezzi.
CASABLANCA è già pronta per accogliere i suoi nuovi proprietari: poche sono le cose da spiegare... per cui se il tuo desiderio è una casa indipendente a Loreto su cui vivere serenamente, disponendo di spazio a volontà, di incentivi per l'efficientamento energetico, di affacci e di corte esterna chiama ora, chiedici ogni informazione e... prenota subito la tua visita!!
Pertinenze
Esterno
Altro
Classificazione energetica
Efficienza Energetica:
Questa casa/villa si trova a Loreto (60025).














