Casa indipendente 6 locali di 193 m² in Mariano Comense (22066)
Su questa casa/villa di 6 locali a Mariano Comense (22066)
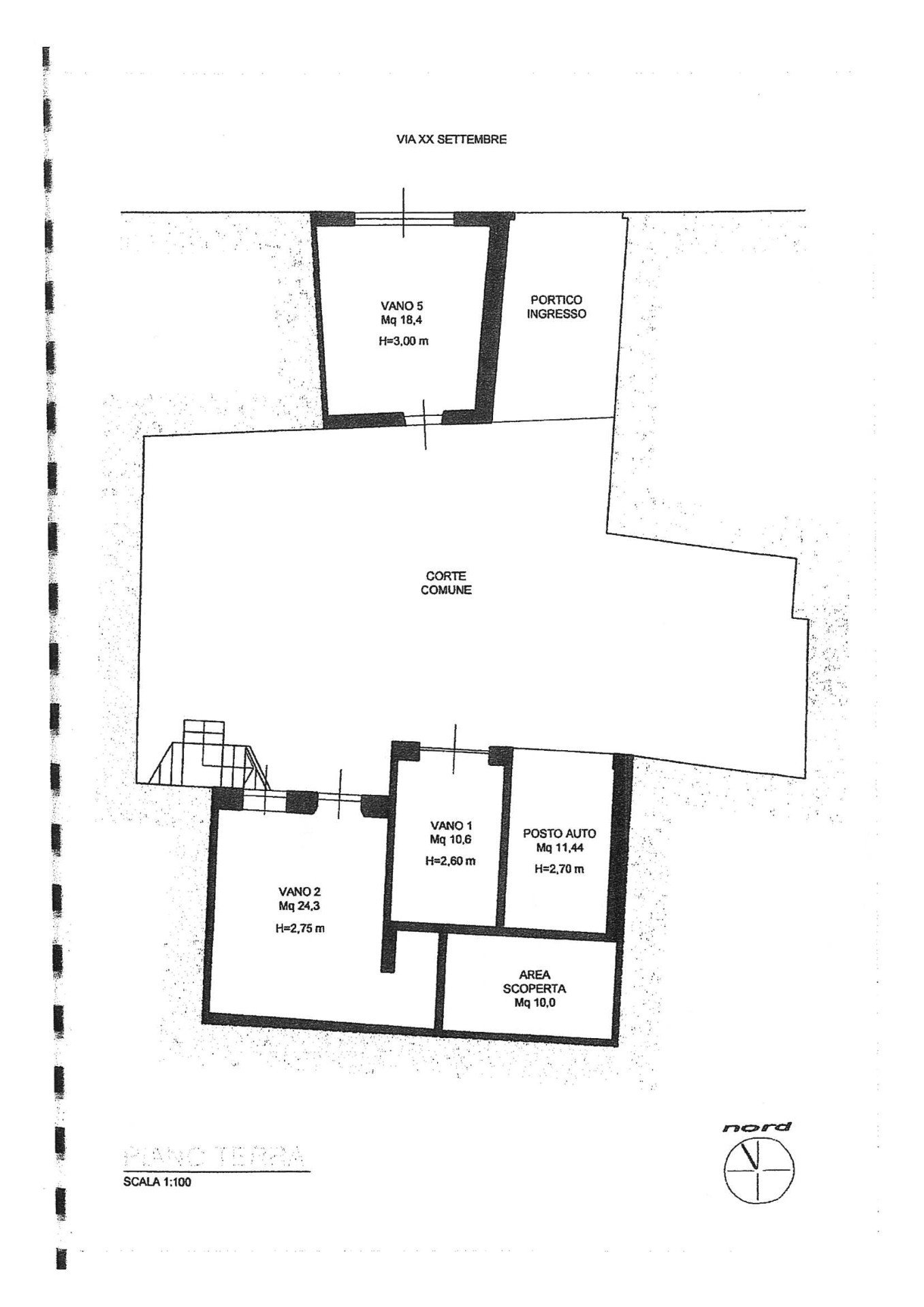
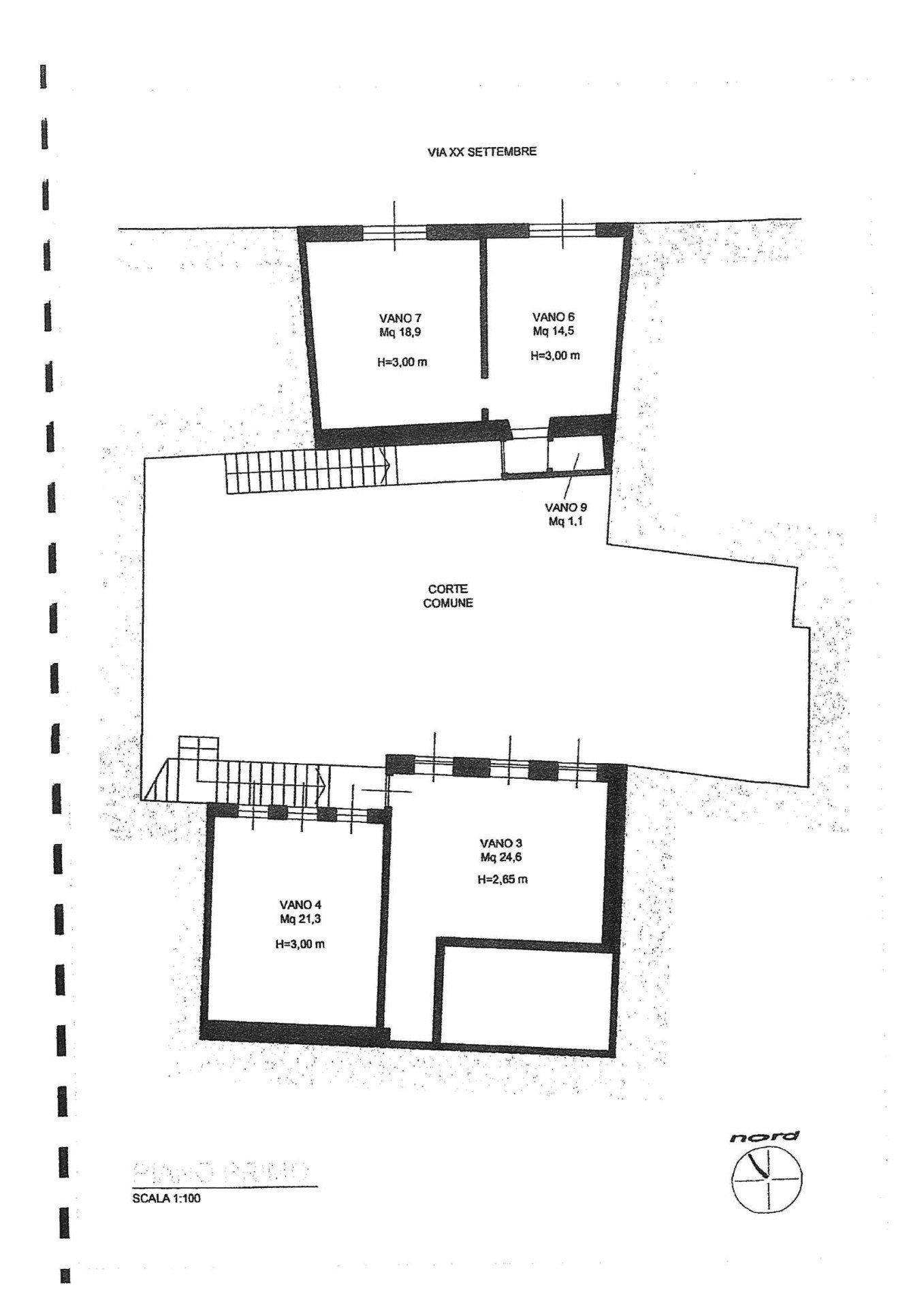
A Mariano Comense in zona centrale, in un piccolo contesto di corte chiusa "tramite portone", proponiamo 2 immobili ad uso abitativo terra cielo semindipendenti, senza spese condominiali.
GLI IMMOBILI SONO COMPLETAMENTE DA RISTRUTTURARE AD OGGI SONO RUDERI.
Possibilità di creare un 3 locali su 2 livelli con piccola area esterna, oltre alla possibilità di creare anche un altro appartamento di 2 locali su 2 livelli, oppure un monolocale al piano primo e un piccolo negozio/ufficio al piano terra con vetrina fronte strada "alta visibilità" da aggiungere al prezzo posto auto coperto del valore di € 7.000,00 da aggiungere alla cifra indicata (NON C'E' POSSIBILITA' DI ACQUISTO DIFFERITO).
La stazione, i mezzi pubblici, la posta e i vari negozi e centri commerciali sono nelle strette vicinanze.
Per Info contattateci!!
Pertinenze
Esterno
Altro
Questa casa/villa si trova a Mariano Comense (22066).









