Casa indipendente / Villa 7 locali di 218 m² in Montalto delle Marche (63068)
Su questa casa/villa di 7 locali a Montalto delle Marche (63068)
SLPLENDIDA VILLETTA IN CAMPAGNA
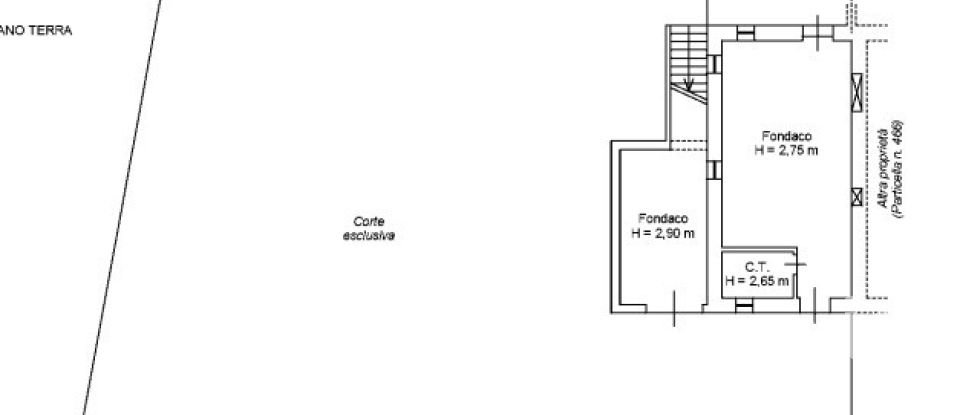
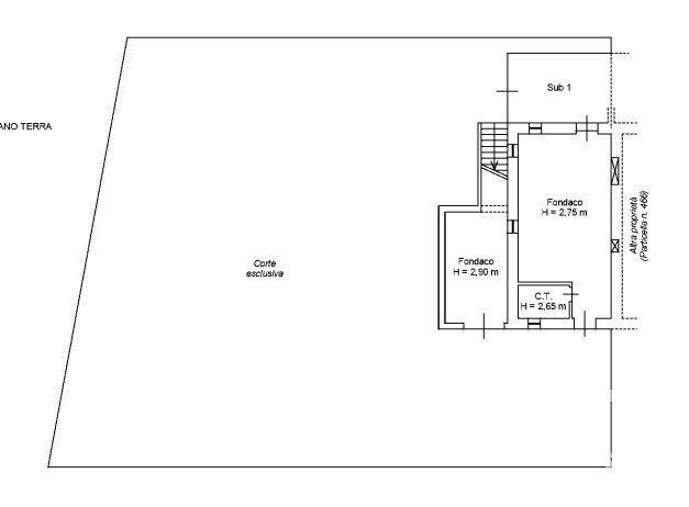
Con un vasto giardino e vista collinare. La casa comunica con la una strada che porta sulla via principale , tuttavia la zona è tranquilla avvolto da un grande giardino e una splendida vista dei tipici colli marchigiani. La villetta è composta di un piano terra, un primo piano e il secondo con un grande terrazzo dove poter ammirare la pace e la tranquillità che la zona offre. Al piano terra vi è una cantina e un garage per le macchine; al primo piano una cucina dove si affaccia un terrazzo dove è possibile mangiare nei periodi più caldi; inoltre vi è un bagno e una camera da letto. Al secondo piano troviamo una zona notte con due camere da letto e un ampio terrazzo. La villetta presenta un giardino e un terreno agricolo.
*Le presenti informazioni e planimetrie sono meramente indicative e non costituiscono elementi contrattuali.
Questa casa/villa si trova a Montalto delle Marche (63068).







