Casale 7 locali di 218 m² in Padenghe sul Garda (25080)
Su questa casa/villa di 7 locali a Padenghe sul Garda (25080)
VILLA di generose dimensioni, libera 4 lati, in vendita a Padenghe sul Garda, in zona residenziale di ottimo contesto con una vista lago dal piano primo, comoda per il raggiungimento al lago.
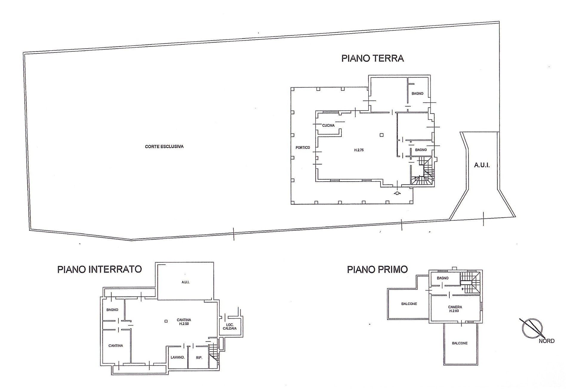
La Villa, è disposta su tre livelli abitativi, con l’ interrato, libera su 4 lati e area di pertinenza di circa mq 2.770, di cui mq 1.600 di giardino, con ampio portico, così composta: ingresso su grande soggiorno con cucina separata, camera matrimoniale con bagno privato, camera e bagno zona giorno, al piano primo camera matrimoniale con bagno, con due terrazze, nell’ interrato uso taverna con bagno, lavanderia, ripostiglio, posto auto coperto doppio.
Vedi Progetto per terza camera al piano terra (totale 4)
Certificazione energetica F IPE 321,11 kwh/m2.
Le informazioni presentate sono corrette ma non costituiscono presupposto contrattuale.
SI COLLABORA CON TUTTE LE AGENZIE
Potete contattarci senza impegno per ottenere maggiori informazioni o per prenotare una visione per questa villa in vendita a Padenghe sul Garda.
Pertinenze
Esterno
Altro
Classificazione energetica
Efficienza Energetica:
Questa casa/villa si trova a Padenghe sul Garda (25080).





