Casale 8 locali di 260 m² in Polpenazze del Garda (25080)
Caratteristiche
Su questa casa/villa di 8 locali a Polpenazze del Garda (25080)
Polpenazze Del Garda – villa vista lago. In una delle zone più panoramiche e residenziali di Polpenazze del Garda proponiamo in vendita un’elegante villa singola arredata, con splendida vista lago. In classe ottima classe energetica, è arricchita da piscina privata e da un giardino finemente piantumato con impianto di irrigazione automatica.
La villa, di ampia metratura, si sviluppa su due piani più interrato e offre ambienti luminosi e raffinati:
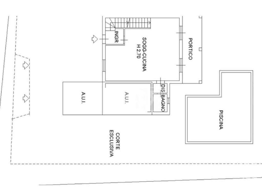
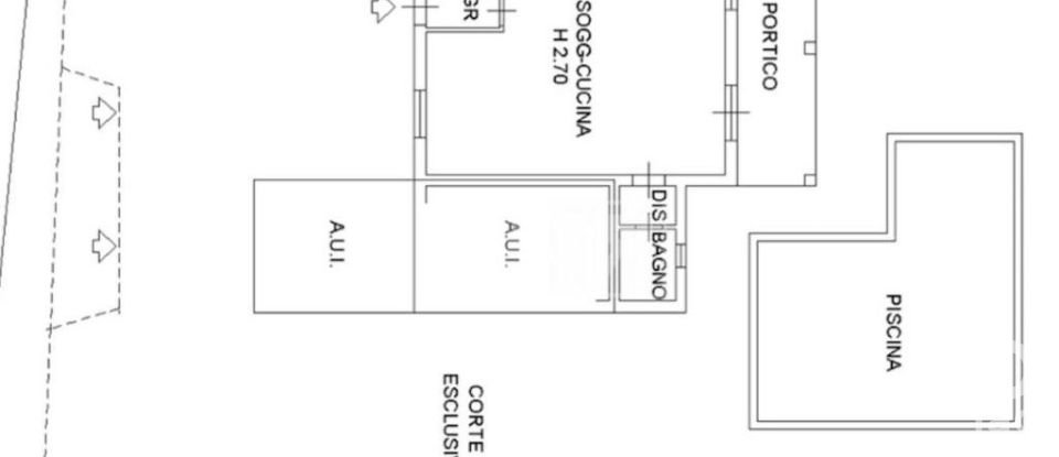
•Piano terra: accogliente soggiorno con camino, cucina a vista, bagno finestrato e portico coperto con vista lago.
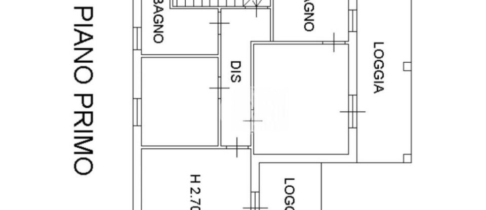
•Piano primo: camera padronale con bagno privato e vasca idromassaggio, loggia panoramica, seconda camera matrimoniale con terrazzo vista lago, camera singola e ulteriore bagno finestrato con doccia.
•Piano interrato: ampia taverna con cucina attrezzata e camino, camera matrimoniale con bagno di generose dimensioni e lavanderia.
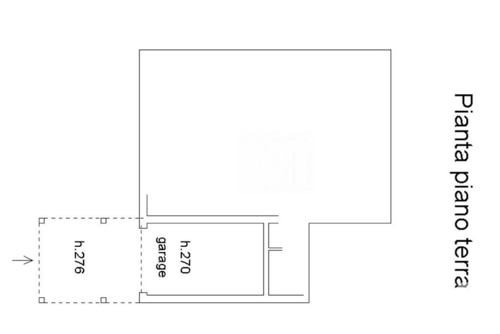
Completa la proprietà un comodo garage doppio al piano terra con basculante elettrica.
L’arredamento completo è incluso nel prezzo, rendendo questa residenza pronta per essere abitata e vissuta. Un rifugio ideale per chi desidera unire comfort, panorama mozzafiato e prestigio sulle sponde del Lago di Garda.
Classe Energetica C – 137,65 Kw/m²a
Le informazioni riportate sono corrette ma non costituiscono vincolo contrattuale.
Contattateci senza impegno per ulteriori dettagli o per prenotare una visita a questa villa da sogno a Polpenazze del Garda.
Pertinenze
Esterno
Altro
Classificazione energetica
Efficienza Energetica:
Questa casa/villa si trova a Polpenazze del Garda (25080).














