Casa indipendente / Villa 5 locali di 140 m² in Pontinvrea (17042)
Caratteristiche
Su questa casa/villa di 5 locali a Pontinvrea (17042)
Pontinvrea, Località La Pineta
Casa "La Pineta"
"Le giovani pinete nel mattino si svegliano a cantare. Quel canto è così lento che i cuori assopiti fa tutti sognare di un sogno portato dal vento che viene dal mare." Romano Battaglia
Non hai bisogno di rinunciare a niente per trovare l’amore per le cose belle, e nelle cose belle vivere l’amore.
‘La Pineta” e’ una stupenda dimora indipendente, posta in una zona estremamente tranquilla, lontana dal caos e dal traffico ma allo stesso tempo comoda e vivibile. Nello stile richiama il rustico e i particolari costruttivi sono stati scelti e selezionati in modo attento, essendo il costruttore un artigiano che per l’immensa passione ha dedicato tutto l’amore possibile nel costruire i propri immobili.
L’accesso e’ indipendente, il giardino fa da cornice a questa perla e li potrai serenamente vedere i tuoi figli giocare in tutta sicurezza e tranquillità magari con i loro amici pelosi.
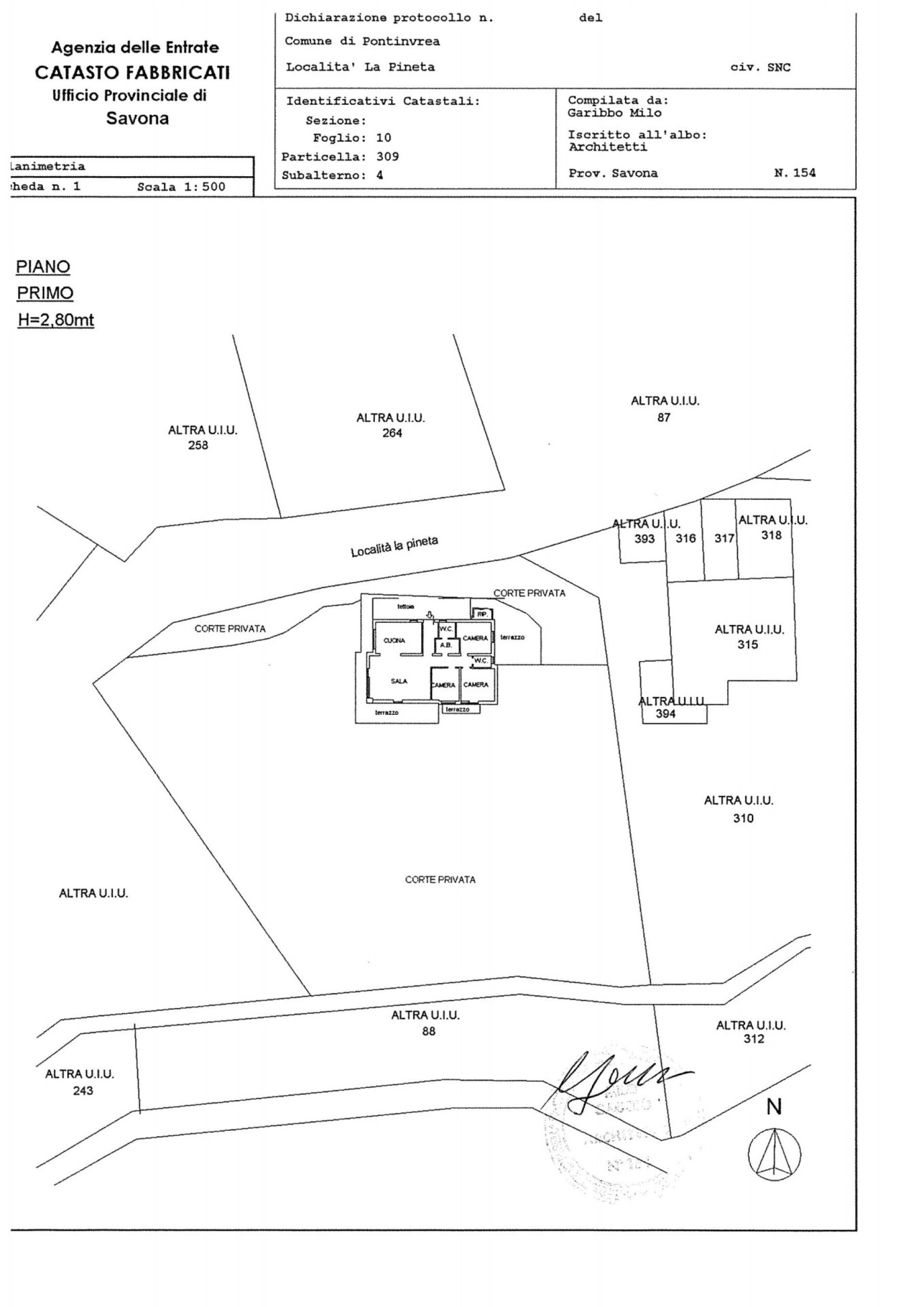
Una loggia affaccia sull’ingresso, dove ad attenderci c'è un enorme zona living, sulla destra invece la comoda cucina abitabile con camino, da questo lato si può accedere ad uno spazioso terrazzo angolare. Sulla sinistra troviamo la zona notte, composta da tre camere da letto, due delle quali con sfogo sul balcone e due bagni finestrati.
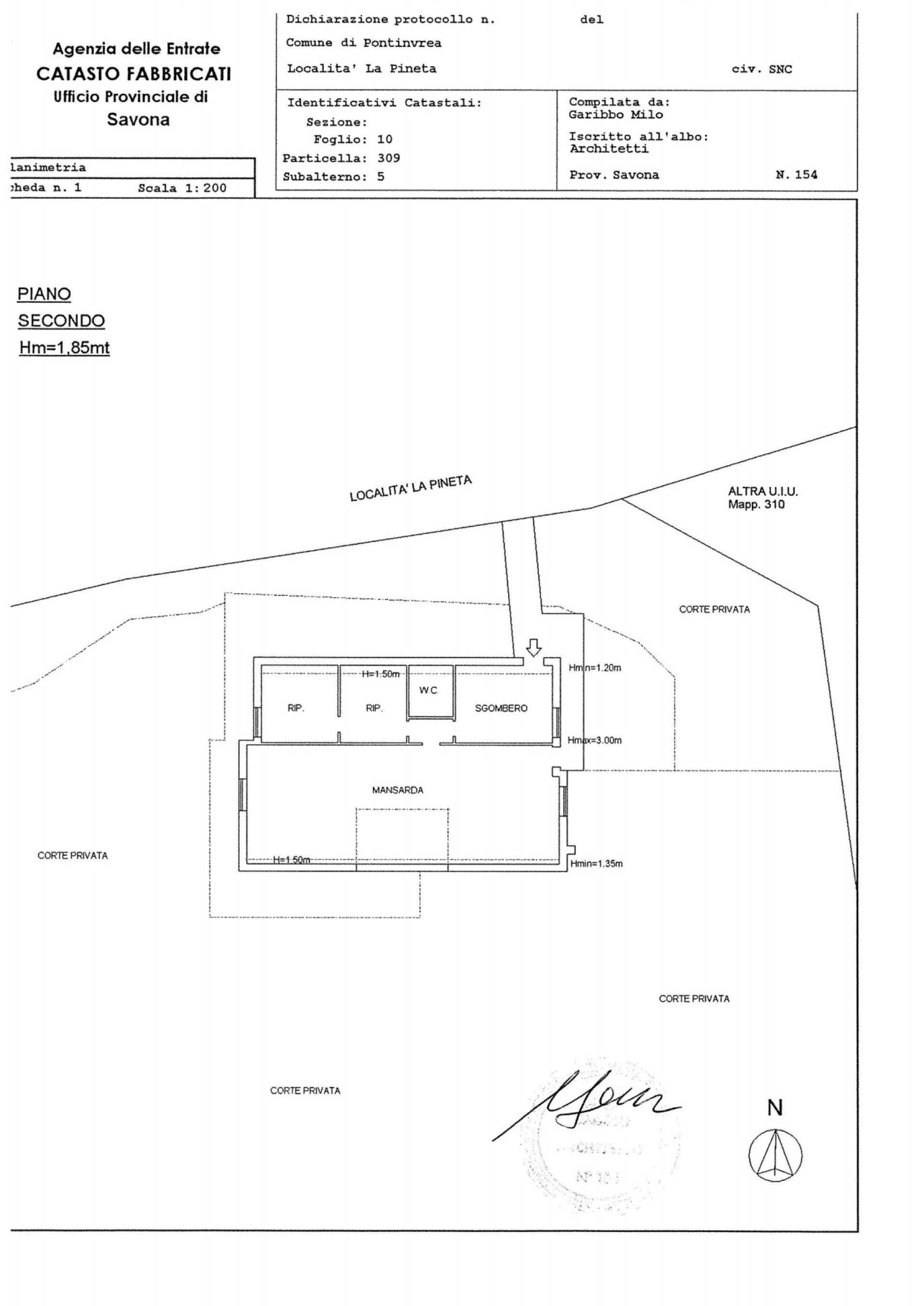
Tramite una scala esterna si può raggiungere il piano superiore, dove troviamo un ampia mansarda al grezzo, un locale di sgombero, due ripostigli e un bagno di servizio. In futuro i due piani potranno essere collegati tramite a una scala interna.
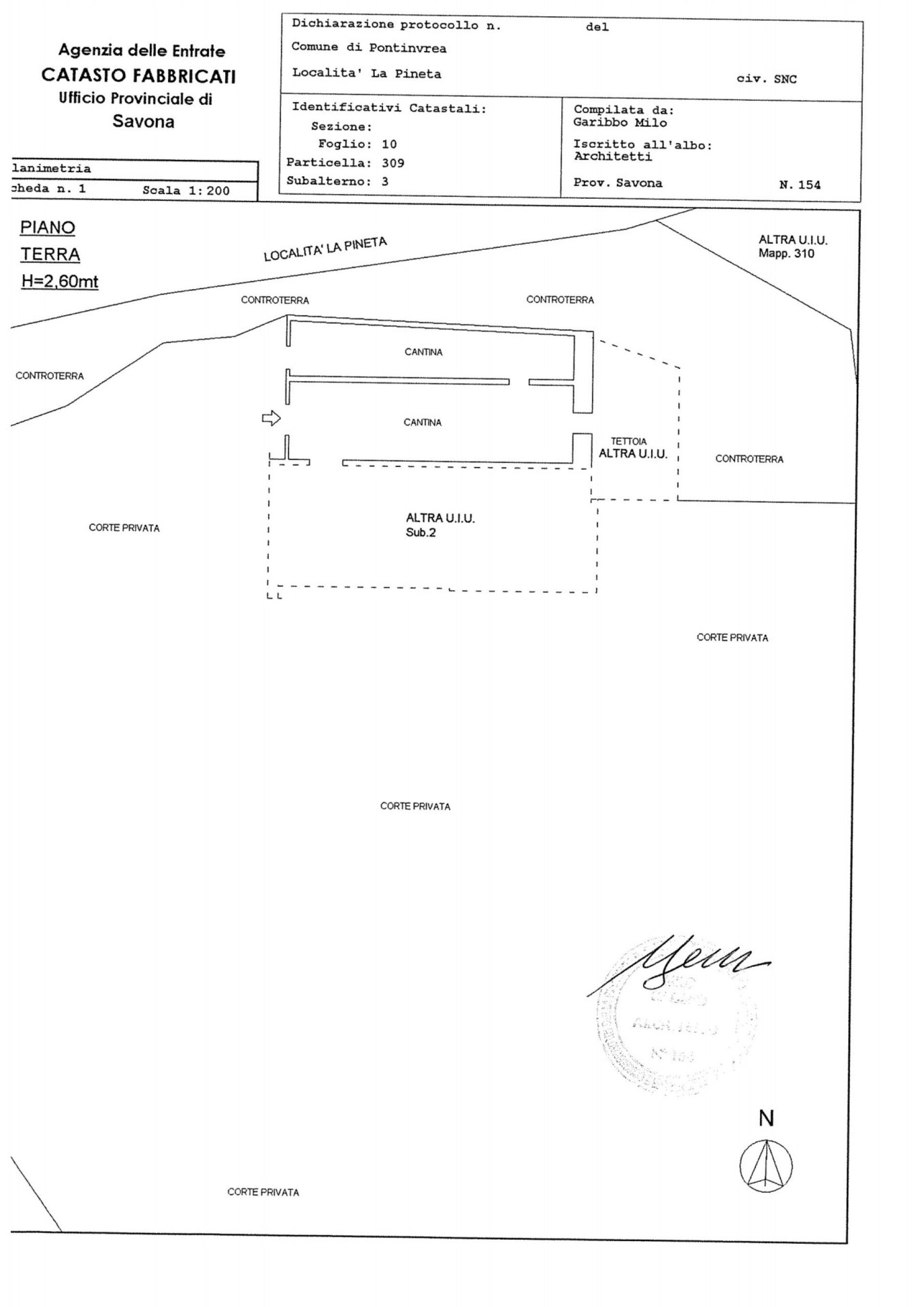
Al piano terra troviamo due ampie cantine e un box auto.
Il terreno che circonda la casa si estende per 2.000 mq ed eventualmente la proprietà può cederne altri lotti.
Fantastica la possibilità di scegliere le finiture per personalizzare al massimo la vostra casa dei sogni!
Classe Energetica G IPE 295,75 kWh/m2 anno
Il mio consiglio è di venire a visitare l'immobile con tutte le persone che decidono con voi per l'acquisto e muniti di libretto degli assegni, perchè immobili del genere non restano sul mercato per molto tempo.
Pertinenze
Esterno
Altro
Classificazione energetica
Efficienza Energetica:
Questa casa/villa si trova a Pontinvrea (17042).















