Casa indipendente / Villa 8 locali di 220 m² in Villanova Marchesana (45030)
Caratteristiche
Su questa casa/villa di 8 locali a Villanova Marchesana (45030)
Un rifugio incantato a Villanova Marchesana
Immersa nel verde e nella quiete della campagna polesana, questa casa completamente ricostruita dalle fondamenta unisce il fascino dei materiali rurali locali a comfort e tecniche moderne. Si trova a Villanova Marchesana, a 20 km da Rovigo, 15 da Adria, 40 dal Delta del Po e circa 50 dal mare Adriatico, in una posizione strategica che combina natura, tranquillità e accessibilità.
La casa viene venduta arredata, pronta per essere abitata. Gli ambienti sono caldi, luminosi e accoglienti, pensati per chi desidera vivere a contatto con la natura senza rinunciare alla praticità.
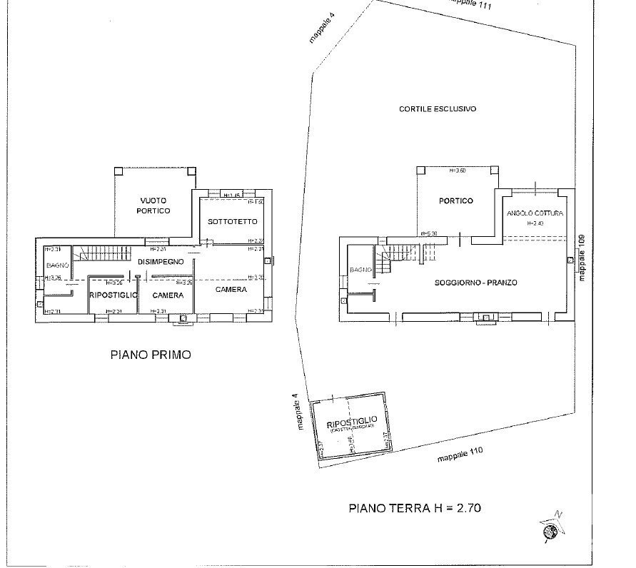
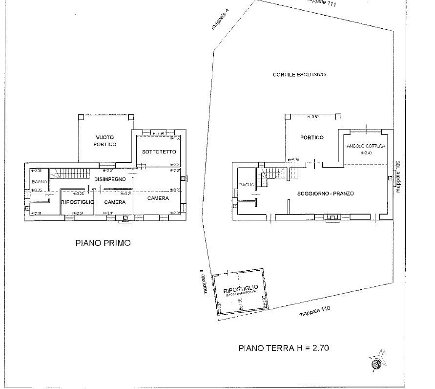
Al piano terra si trovano un ingresso accogliente, una spaziosa zona living con cucina a vista perfetta per momenti conviviali, un bagno completo e una tettoia esterna ideale per rilassarsi. Al primo piano ci sono tre camere da letto e due bagni ancora da completare, offrendo la possibilità di personalizzazione. Completano la proprietà una dependance con bagno, ideale come studio o spazio per ospiti, e un terreno di circa 2000 mq, di cui 1000 mq ospitano un bosco di robinia utile per la legna da ardere, mentre il resto si presta alla creazione di una piscina o di spazi relax immersi nella natura.
Gli impianti elettrici e idraulici sono nuovi, il riscaldamento avviene tramite stufe a legna, e sono da ultimare solo alcune finiture, come parte delle scale e alcune porte interne.
Villanova Marchesana è un piccolo centro immerso nel paesaggio fluviale del Po, con un’atmosfera tranquilla e autentica. Il paese offre servizi essenziali come farmacia, ambulatorio medico, posta, minimarket, scuole, bar e ristoranti, ed è attraversato dalla ciclovia VenTo, che collega Venezia e Torino, rendendolo perfetto per gli amanti del turismo lento, del birdwatching e delle escursioni nel vicino Parco del Delta del Po, uno dei più importanti d’Europa.
Pertinenze
Esterno
Altro
Classificazione energetica
Efficienza Energetica:
Questa casa/villa si trova a Villanova Marchesana (45030).





