Casale 10 locali di 480 m² in Campi Bisenzio (50013)
Caratteristiche
Su questa casa/villa di 10 locali a Campi Bisenzio (50013)
RIF: MPG-TRAM
Proponiamo in vendita a Campi Bisenzio una splendida villa libera su quattro lati, circondata da un ampio giardino curato nei minimi dettagli. Ideale per chi desidera tranquillità e privacy, senza rinunciare al comfort e alla vicinanza a tutti i principali servizi.
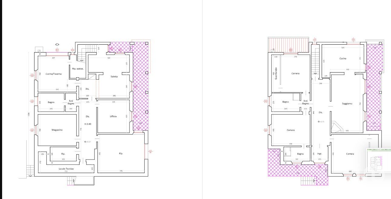
La proprietà ci accoglie con un elegante ingresso su strada attraverso il giardino. Una scala esterna conduce al piano rialzato, dove si apre un ampio ingresso che introduce alla zona giorno. Qui troviamo un doppio salone molto luminoso con camino, collegato in open space alla cucina abitabile. Entrambi gli ambienti hanno accesso diretto al terrazzo abitabile, che si affaccia sul giardino interno.
L’intera abitazione principale si sviluppa su un unico livello, dal corridoio si accede alla zona notte, composta da tre camere matrimoniali, di cui due dotate di cabina armadio. Una delle camere dispone anche di bagno privato. Completa la zona notte un secondo bagno, molto spazioso, con vasca.
Dal piano una scala interna conduce al seminterrato, attualmente adibito a taverna. Questo ambiente, grazie alla sua ottima luminosità e alla razionale distribuzione degli spazi, può essere trasformato in una seconda unità abitativa con ingresso indipendente dal giardino interno.
Esternamente, oltre al giardino, è presente una resede con posti auto, accessibile tramite cancello carrabile su strada.
La villa si presenta in buono stato abitabile, con possibilità di personalizzazione e ristrutturazione per diventare la casa dei vostri sogni. È inoltre facilmente divisibile in due unità immobiliari indipendenti.
Pertinenze
Esterno
Altro
Classificazione energetica
Efficienza Energetica:
Emissioni di CO2
Questa casa/villa si trova a Campi Bisenzio (50013).




