Casa indipendente 8 locali di 146 m² in Filottrano (60024)
Caratteristiche
Su questa casa/villa di 8 locali a Filottrano (60024)
"LA PROMESSA"
È una incredibile opportunità!
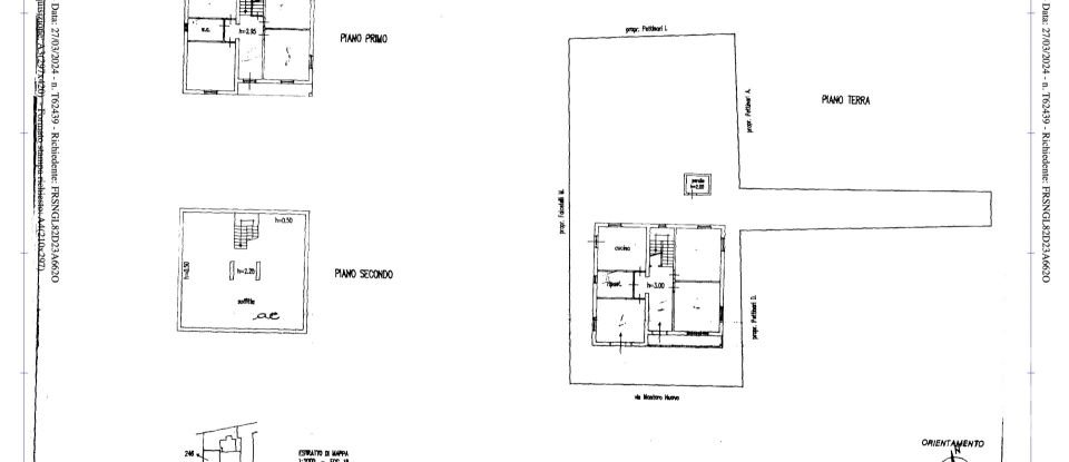
Villa in corso di realizzazione con ampi spazi ed una imponente e raffinata scala a chiocciola.
Se stai cercando una dimora da plasmare secondo i tuoi gusti LA PROMESSA è la tela bianca su cui realizzare i tuoi sogni, situata in una zona tranquilla a Montoro di Filottrano, circondato da un panorama collinare dai verdi colori e i rossi tramonti.
Al momento, la villa si trova nella fase finale di costruzione ma ancora al grezzo, offrendoti quindi l'opportunità unica di personalizzare ogni dettaglio, comprese le finiture, che saranno da scegliere in base ai tuoi gusti ed esigenze.
L'architettura è maestosa, con spazi ampi e la scala a chiocciola interna, fulcro dell'abitazione, che lascia senza fiato e la rende particolare!
Gli ambienti sono progettati per il massimo comfort e per garantire uno stile di vita raffinato. Le aree comuni sono spaziose e luminose, ideali per intrattenere gli ospiti o rilassarsi in famiglia.
Il piano superiore ospiterà le quattro camere da letto, con vista panoramica sulla campagna circostante ed un comodo bagno a servizio del piano. Immagina di svegliarti ogni mattina circondato dal verde e dalla tranquillità! Da questo piano si accede anche alla soffitta, dove poter ricreare un tuo angolo intimo per leggere un buon libro o rilassarti con un bicchiere di vino!
Il giardino circostante offre uno spazio all'aperto a decoro della villa stessa.
Parlando proprio di spazi esterni, LA PROMESSA possiede un grande lastrico accessibile dalle portefinestre della zona giorno, ideale per pranzi e cene all'aria aperta e per i momenti di relax! Sottostante al lastrico, troviamo un grande garage, che può contenere più auto ed essere anche contenitivo.
Non perdere l'opportunità di trasformare LA PROMESSA in una residenza di prestigio, riflettendo il tuo stile unico e il tuo gusto personale.
Contattaci oggi stesso per saperne di più e per pianificare una visita guidata. Questa è la tua occasione per realizzare la casa dei tuoi sogni!
Pertinenze
Esterno
Altro
Classificazione energetica
Efficienza Energetica:
Questa casa/villa si trova a Filottrano (60024).










