
- Nuovo
335.000 €
Casa / Villa indipendente in Lonato del Garda
- 6 locali
- 2 bagni
- 190 m²
- 3500 m² de terreno


100.000 €
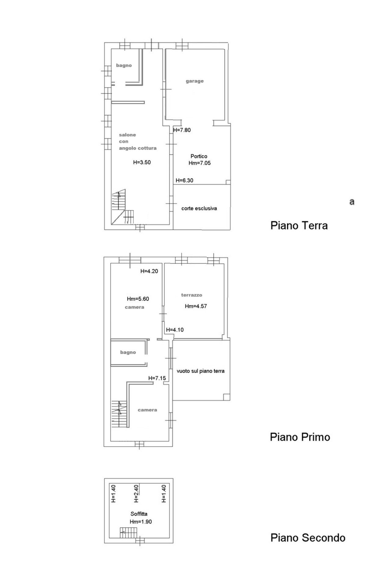
Lonato del Garda, vendesi in zona Esenta, Casale da ristrutturare con il tetto già sistemato, composta da due livelli. La volumetria presente di circa mq 300, con i dovuti permessi è totalmente recuperabile, in aggiunta un terreno ad uso giardino di circa mq 150. Cortile privato con posti auto Classe energetica esente Le informazioni presentate sono corrette ma non costituiscono presupposto contrattuale SI COLLABORA CON TUTTE LE AGENZIE Potete contattarci senza impegno per ottenere maggiori informazioni o per prenotare una visione dell’immobile a Lonato del Garda.
Riferimento: 142843
Immobili simili

335.000 €



1.950.000 €


1.850.000 €
