Casa indipendente 14 locali di 400 m² in Notaresco (64024)
Caratteristiche
Su questa casa/villa di 14 locali a Notaresco (64024)
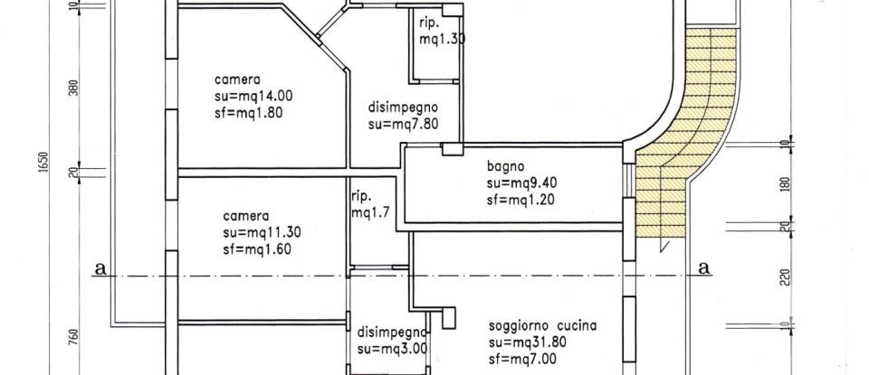
Nella bella frazione di Guardia Vomano, la IAD-ITALIA propone in vendita un immobile da ultimare. L'unità immobiliare residenziale di circa 400 MQ commerciali si trova allo stato avanzato nella costruzione, con impianti e finiture da completare. Analizziamo i dettagli. Nel piano primo, progettato per ospitare due appartamenti, troviamo: due soggiorni/cucina, quattro camere da letto, disimpegno, due ripostigli, due bagni.
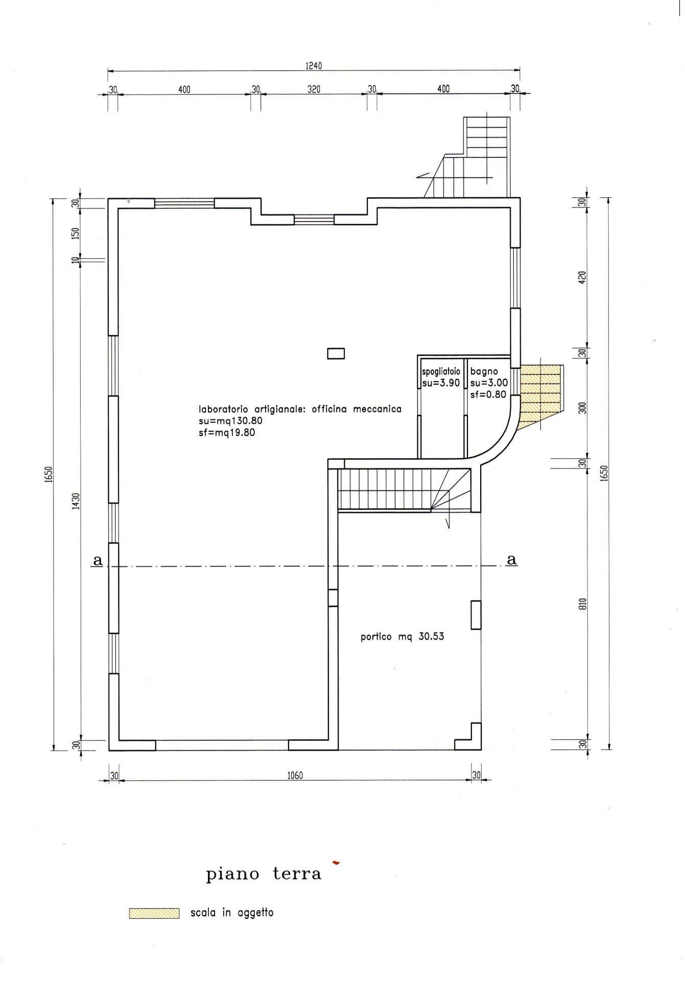
Piano terra: rimessa di circa 160 mq, un spogliatoio, un bagno e un portico.
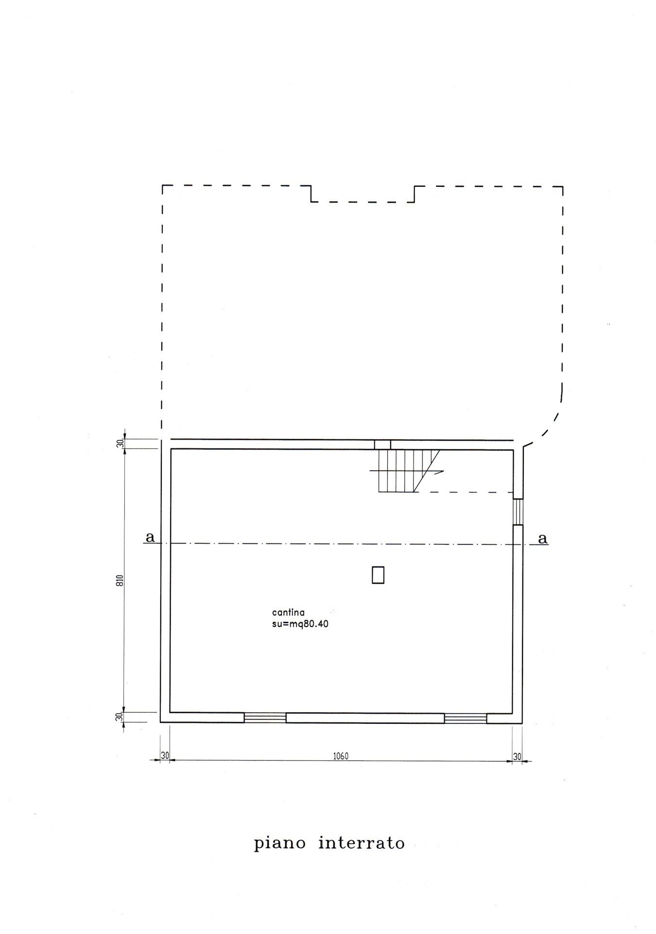
Piano interrato: cantina di circa 80 mq.
Inoltre, l’immobile è circondato da un terreno di circa 4000 mq.
Guardia Vomano fa parte del comune di Notaresco, in provincia di Teramo, nella regione Abruzzo. L'immobile si trova in una zona tranquilla, immersa nel verde, particolarmente apprezzata per la sua vicinanza a tutti i principali servizi (Teramo, autostrada nord/sud, mare, scuola, …)
CONTATTACI PER UN APPUNTAMENTO, SAREMO A TUA DISPOSIZIONE!
Agente di riferimento: Giulio Serafini
Cell. 339 8953843
Email: serafini.giulio@iad-italia.it
Pertinenze
Esterno
Altro
Questa casa/villa si trova a Notaresco (64024).







