

93.000 €
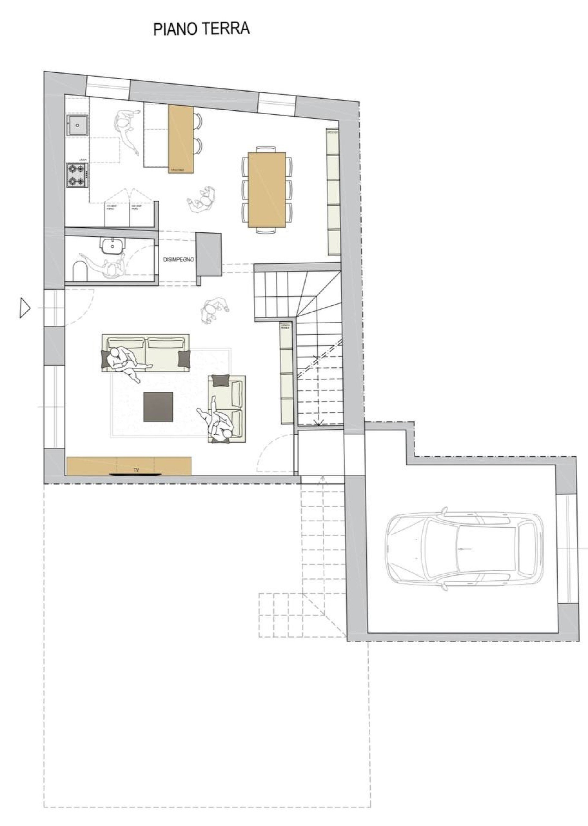
Nel suggestivo contesto della corte privata dell'ex palazzo Politi di Recanati, proponiamo un'opportunità unica: una casa dei primi del '900 completamente da ristrutturare. Con una superficie complessiva di 217 mq su tre livelli e un garage di 25 mq con accesso diretto, questa dimora offre il fascino intramontabile delle antiche residenze, pronta a rivivere con un'attenta ristrutturazione. Accedendo tramite l'ampio arco d'ingresso della corte privata, la casa si sviluppa su tre livelli, offrendo un'area abitativa di grande potenziale. Il progetto di ristrutturazione, come illustrato nei rendering fotografici, prevede al piano terra una comoda cucina abitabile, una sala accogliente e un bagno, ideali per una vita quotidiana pratica e funzionale. Il primo piano si compone di tre spaziose camere da letto e due bagni, garantendo spazi privati ben distribuiti per tutta la famiglia. Al piano seminterrato primo, due cantine offrono spazio per la conservazione, mentre una comoda taverna rappresenta il luogo ideale per ritrovarsi in compagnia. Un'opportunità unica di plasmare la vostra dimora su misura, trasformando un pezzo di storia dei primi del '900 in una residenza moderna e confortevole. Euro 93.000,00 Per ulteriori dettagli o per organizzare una visita, contattateci senza esitazioni.
Riferimento: 110979
Classe energetica
G
Immobili simili


670.000 €


499.500 €

