Casa indipendente / Villa 11 locali di 420 m² in Rovolon (35030)
Caratteristiche
Su questa casa/villa di 11 locali a Rovolon (35030)
Immersa nella natura, con vista panoramica sui Colli Euganei – Ideale per chi cerca privacy, spazio e indipendenza
Se sogni una casa circondata dal verde, con ampi spazi sia interni che esterni, e una vista incantevole sulla campagna veneta, questa proprietà è quello che fa per te.
Situata a pochi chilometri dallo svincolo autostradale di Barbarano, proponiamo una grande abitazione in stile anni '80 di oltre 215 mq, ristrutturata negli impianti nel 2019 e oggetto di accurati lavori di manutenzione, che oggi la rendono pronta da vivere, accogliente e funzionale.
L’ingresso si apre su un ampio porticato coperto, perfetto per rilassarsi o accogliere gli ospiti. All’interno troviamo un comodo corridoio che distribuisce gli spazi del piano terra: una cucina abitabile già arredata, un luminoso salone, un’ulteriore grande stanza utilizzabile come studio o camera matrimoniale e due bagni. Direttamente collegato anche il garage di 21 mq, pratico e funzionale.
Salendo al primo piano, attraverso una comoda scala, si accede alla zona notte composta da ben 4 camere matrimoniali, un bagno finestrato, un ampio corridoio e un pratico ripostiglio. La camera padronale dispone anche di poggiolo angolare con affaccio panoramico.
Completano la proprietà:
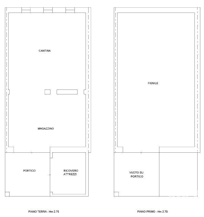
Un annesso/magazzino su due livelli di circa 352 mq, ideale per attività artigianali, deposito o da trasformare in dependance;
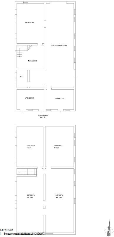
Un ulteriore fabbricato adiacente, attualmente magazzino, trasformabile in una villetta a schiera su due piani fuori terra, con proprio portico d’ingresso e giardino esclusivo di oltre 1.000 mq, già compreso nel prezzo!!
Il tutto circondato da un parco privato completamente recintato, con ampio cancello elettrico carrabile, che garantisce massima privacy, tranquillità e sicurezza.
- Posizione strategica: immersa nel verde ma comoda alle principali vie di comunicazione.
- Perfetta per famiglie numerose, liberi professionisti, o per chi desidera un’abitazione principale con spazi per attività secondarie.
Contattaci per fissare una visita e lasciati ispirare da questo angolo di quiete con vista sui Colli.
Pertinenze
Esterno
Altro
Classificazione energetica
Efficienza Energetica:
Questa casa/villa si trova a Rovolon (35030).





