Casa indipendente 6 locali di 280 m² in San Miniato (56028)
Caratteristiche
Su questa casa/villa di 6 locali a San Miniato (56028)
Villa indipendente da personalizzare in zona strategica – San Miniato Basso viale Guglielmo Marconi 144
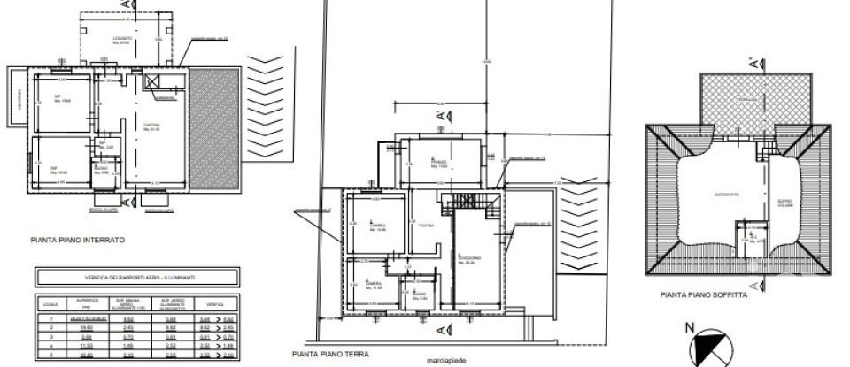
San Miniato Basso – tra Coop e stazione, disponibile in vendita una villa indipendente di 260 m² distribuiti su tre livelli, completa di giardino privato di circa 250 m². L’immobile, proposto al prezzo di €480.000, si trova in stato grezzo avanzato ed è pensato per essere ultimato secondo gusti ed esigenze personali. Classe energetica prevista: A3–A4.
Caratteristiche principali:
– Edificio libero su quattro lati con ingresso carrabile
– Tre livelli: seminterrato, piano terra e mansarda
– Possibilità di realizzare due unità abitative indipendenti
– Terrazze e balconi abitabili, ampie vetrate e grande luminosità
– Predisposizione per impianti di riscaldamento a pavimento, fotovoltaico e pompe di calore
– Garage incluso e quattro posti auto esterni
Soluzione ideale per molteplici esigenze:
Famiglie in cerca della prima casa: grande superficie personalizzabile, zona giorno open space, camere ben separate e giardino perfetto per bambini. Tutti i servizi (scuole, Coop, stazione, strutture sanitarie e sportive) sono a due passi. Accesso facilitato a mutui agevolati per abitazioni di nuova costruzione in classe A.
Coppie in pensione: zona tranquilla e pianeggiante con servizi nei dintorni. Possibilità di vivere su un solo piano e affittare il seminterrato come mini-appartamento. Rendimento della locazione breve stimato fino al 10–12% annuo, grazie alla crescente domanda turistica.
Stranieri o residenti in cerca di una seconda casa: ideale come dimora vacanziera in Toscana, a soli 45 minuti da Pisa, 50 da Firenze e a un’ora dal mare. Ottima soluzione anche per periodi di smart working o soggiorni prolungati.
Investitori in locazione breve: possibilità di creare due unità con accessi separati, in una zona in rapida crescita e riqualificazione urbanistica. Alto potenziale di rivalutazione immobiliare (stimato +20–30% nei prossimi 3–5 anni).
Per i lavori di ristrutturazione è possibile usufruire delle detrazioni fiscali secondo la normativa in vigore (Legge di Bilancio 2025, art. 1 comma 238 e seguenti), che prevede agevolazioni per interventi di efficientamento energetico e ristrutturazione edilizia.
È anche disponibile la possibilità di pagamento dilazionato fino a due anni, alle condizioni da concordare.
Contattaci per invio di planimetrie, render e valutazione personalizzata. Su richiesta possiamo fornire un video dettagliato dell’immobile.
Chiamare direttamente la referente: Irina – 351 799 8287 (parlo italiano, inglese, francese e russo).
Pertinenze
Esterno
Altro
Classificazione energetica
Efficienza Energetica:
Questa casa/villa si trova a San Miniato (56028).




