Casale 12 locali di 197 m² in Trabia (90019)
Caratteristiche
Su questa casa/villa di 12 locali a Trabia (90019)
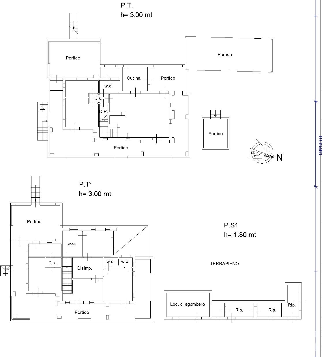
Proponiamo in vendita una villa panoramica di circa 200 mq, situata in Contrada Sant’Onofrio, tra Altavilla Milicia e Trabia, in posizione tranquilla e ben esposta, con vista mare.
Distribuita su due piani:
Piano Terra: ampio salone, cucina, 2 camere e 1 bagno
Primo Piano: Soggiorno, 3 camere da letto, 3 bagni
Completano la proprietà ampi porticati esterni e giardino privato. Ottima esposizione e tranquillità.
Questa proprietà è ideale per famiglie numerose, e grazie alla posizione strategica in zona turistica, è adatto anche per chi desidera avviare un’attività di Bed & Breakfast. E’ un immobile versatile, con ampi spazi interni ed esterni da personalizzare in base alle proprie esigenze.
Contatta l’agenzia per una visita:
IAD Team Simoncini Marina 📞 091 6850433 - 📱 347 5886948 (orari ufficio).
✉ marina.simoncini@iad-italia.it
Non perdere l’opportunità di vivere o investire in una delle zone più richieste della costa siciliana!
Pertinenze
Esterno
Altro
Classificazione energetica
Efficienza Energetica:
Questa casa/villa si trova a Trabia (90019).

