Casa indipendente / Villa 18 locali di 635 m² in Gambassi Terme (50050)
Su questa casa/villa di 18 locali a Gambassi Terme (50050)
Rif. HC-600
Toscana – Tenuta di 20 ettari con due fabbricati da ristrutturare, vista spettacolare sulla campagna e su Volterra
Nel cuore della campagna toscana, nel comune di Gambassi Terme, proponiamo in vendita una tenuta agricola di grande fascino e potenziale, composta da circa 20 ettari di terreno e due fabbricati rurali completamente da ristrutturare.
La proprietà include:
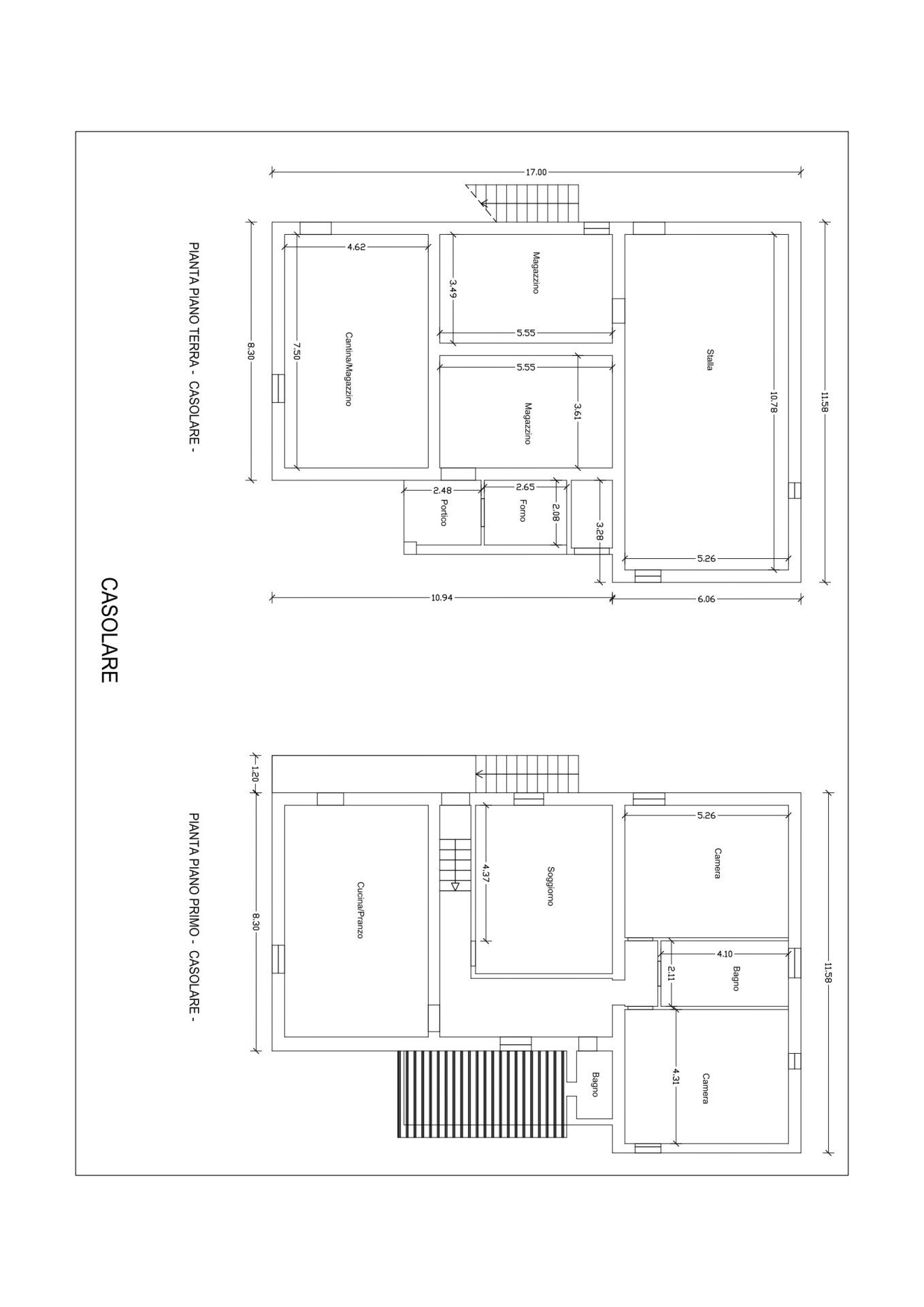
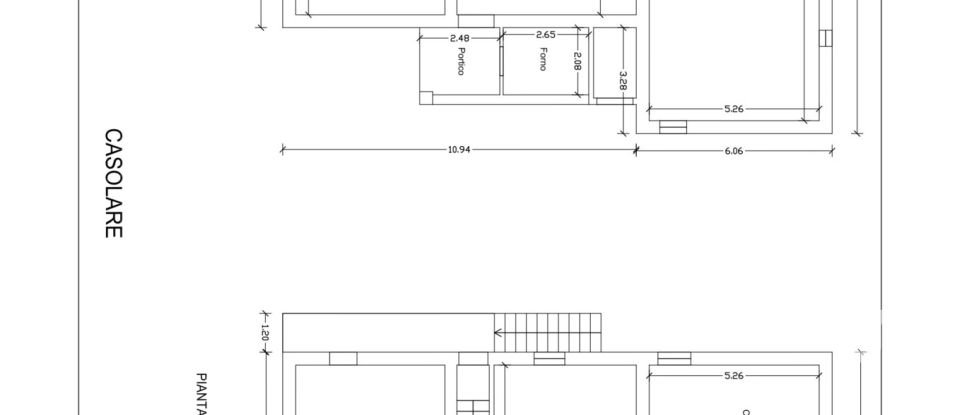
•Un casolare principale di circa 340 mq, disposto su due livelli, ideale per essere trasformato in una residenza privata di pregio, agriturismo o struttura ricettiva.
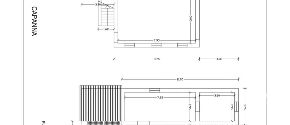
•Un fienile indipendente di circa 295 mq, con ottime potenzialità per la creazione di unità abitative aggiuntive, spazi per eventi o servizi accessori.
La proprietà gode di una meravigliosa vista aperta sulla campagna toscana, con uno spettacolare skyline su Volterra, che rende ogni tramonto un’esperienza unica.
I terreni – che si estendono per circa 20 ettari – sono adatti a molteplici utilizzi: oliveto, coltivazioni biologiche, allevamento, o per la creazione di un parco naturalistico con sentieri, orti e aree relax.
Posizione strategica:
Situata in una delle zone più suggestive della Toscana, la tenuta si trova:
•a pochi minuti dalle città d’arte di San Gimignano e Volterra
•a circa 50 minuti di auto dall’aeroporto internazionale di Pisa
•in posizione tranquilla, panoramica e facilmente accessibile
Un luogo di rara bellezza e un progetto da sogno per chi desidera realizzare una residenza o una struttura ricettiva immersa nella natura, con tutto il fascino della Toscana autentica.
Pertinenze
Esterno
Altro
Questa casa/villa si trova a Gambassi Terme (50050).
