Casale 8 locali di 350 m² in Assisi (06081)
Caratteristiche
Su questa casa/villa di 8 locali a Assisi (06081)
Villa “Il Belvedere di Spello” – Eleganza Contemporanea tra Collina e Storia
Un Accesso Privato tra Ulivi e Colli
Varcando il cancello elettrico, un viale alberato conduce a un’area recintata di 3.500 mq dominata dalla villa, costruita nel 2004 e realizzata in cemento armato. Qui, tra gli ulivi e il profilo arrotondato delle colline di Spello, si avverte subito la forza della modernità unita al fascino senza tempo del paesaggio umbro.
Spazi Interni: Design e Raffinatezza
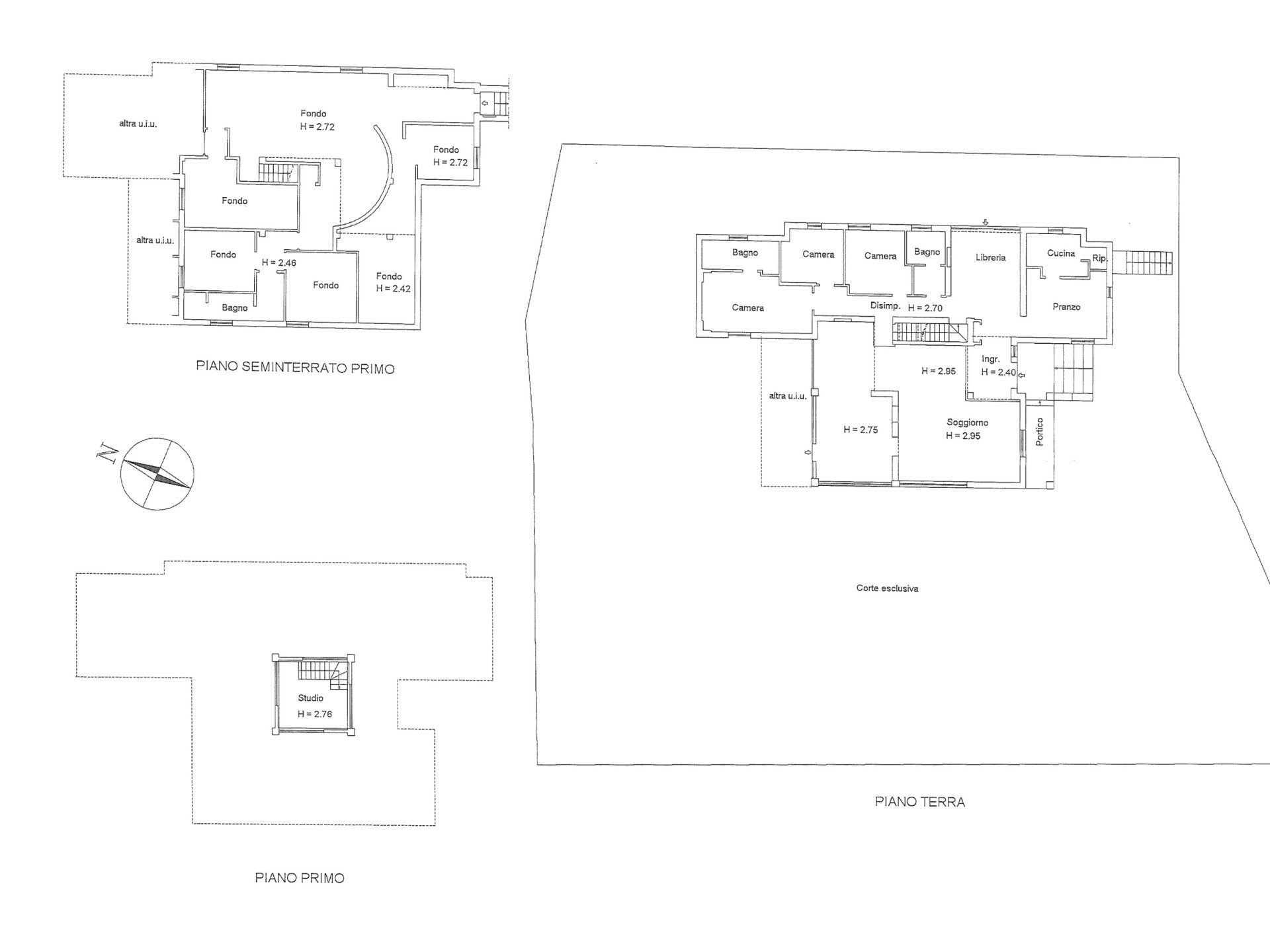
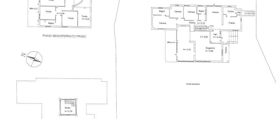
Distribuita su tre livelli, la villa offre 350 mq di superfici impeccabili:
- Seminterrato nascosto: ingresso riservato, ampio garage doppio con accesso interno e diretto, una taverna rustica rivestita in pietra serena, cucina di servizio, tre camere e tre bagni, tutti caratterizzati da giochi di luce calda realizzati con faretti incassati e controsoffitti.
- Piano terra: un ampio salone con doppio camino frontale e vetrate a tutt’altezza che inquadrano la piscina e la vallata; una sala da pranzo affiancata alla cucina separata da porte scorrevoli; tre camere, di cui una con bagno en-suite, più un servizio ospiti.
- Roof Room panoramica: al primo piano, una “torretta” con vetrate su quattro lati regala un punto di osservazione esclusivo su Villa Fidelia, sul Monte Subasio e sull’antico borgo di Spello, patrimonio dei “Borghi più belli d’Italia”.
Esterni che Esaltano la Vita All’Aperto
Il giardino di un ettaro, perfettamente mantenuto, si apre attorno alla villa con:
- Piscina a sfioro in travertino, rivolta verso la vallata, dove l’acqua si confonde visivamente con le colline circostanti;
- Lastricato in pietra locale per il passaggio privato delle auto e aree lounge;
- Terrazzi coperti e zone relax pensate per colazioni all’aperto o cene al tramonto, in un contesto di totale riservatezza.
Tecnologia e Comfort Senza Compromessi
Ogni dettaglio è studiato per sostenere un’esperienza di vita moderna e raffinata:
- Domotica integrata per il controllo luci e clima;
- Riscaldamento a pavimento e pompa di calore per un’efficienza energetica ottimale;
- Portone blindato e sistema di allarme per la massima sicurezza;
- Illuminazione scenografica nei controsoffitti e faretti incassati che disegnano gli spazi.
Vivere Ogni Giorno tra Relax e Ispirazione
Immagina di iniziare la giornata con il profumo del caffè su uno dei terrazzi, mentre il sole sorge dietro le antiche mura di Spello. Nel pomeriggio, concediti un tuffo nella piscina a sfioro, sentendo l’acqua accarezzare la pelle e lo sguardo perdersi all’orizzonte. La sera, il doppio camino in salone restituisce un’atmosfera calda e avvolgente, perfetta per momenti di condivisione o semplici istanti di contemplazione.
Un Investimento di Valore e Stile
Questa villa si rivolge a chi cerca:
- Abitazione di pregio, capace di unire privacy e vicinanza al centro storico di Spello (a pochi minuti da Assisi e Foligno);
- Struttura ricettiva di charme, grazie alla taverna ampia, ai numerosi bagni e alla Roof Room panoramica;
- Investimento a lungo termine, in un contesto che valorizza l’ospitalità di qualità e la bellezza paesaggistica.
Contattaci per scoprire come Villa “Il Belvedere di Spello” possa diventare la cornice perfetta per il tuo progetto di vita o di business
Pertinenze
Esterno
Altro
Classificazione energetica
Efficienza Energetica:
Questa casa/villa si trova a Assisi (06081).


