Casa indipendente 15 locali di 400 m² in Boves (12012)
Su questa casa/villa di 15 locali a Boves (12012)
PROPRIETA' TERRA/CIELO NEL CENTRO STORICO DI BOVES
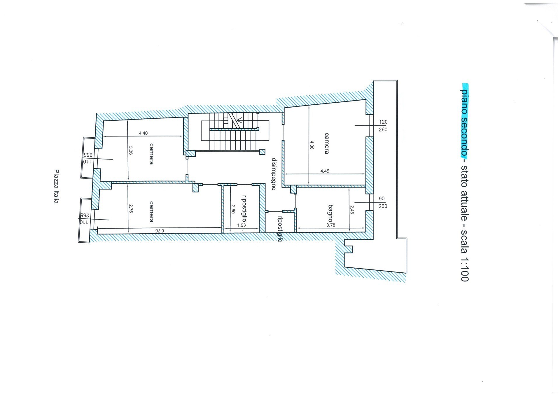
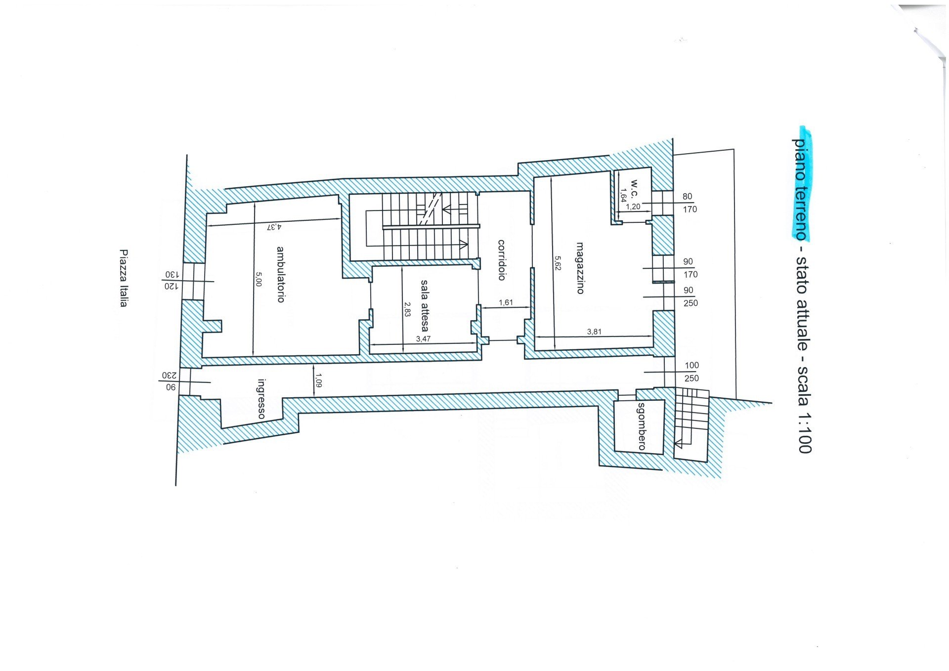
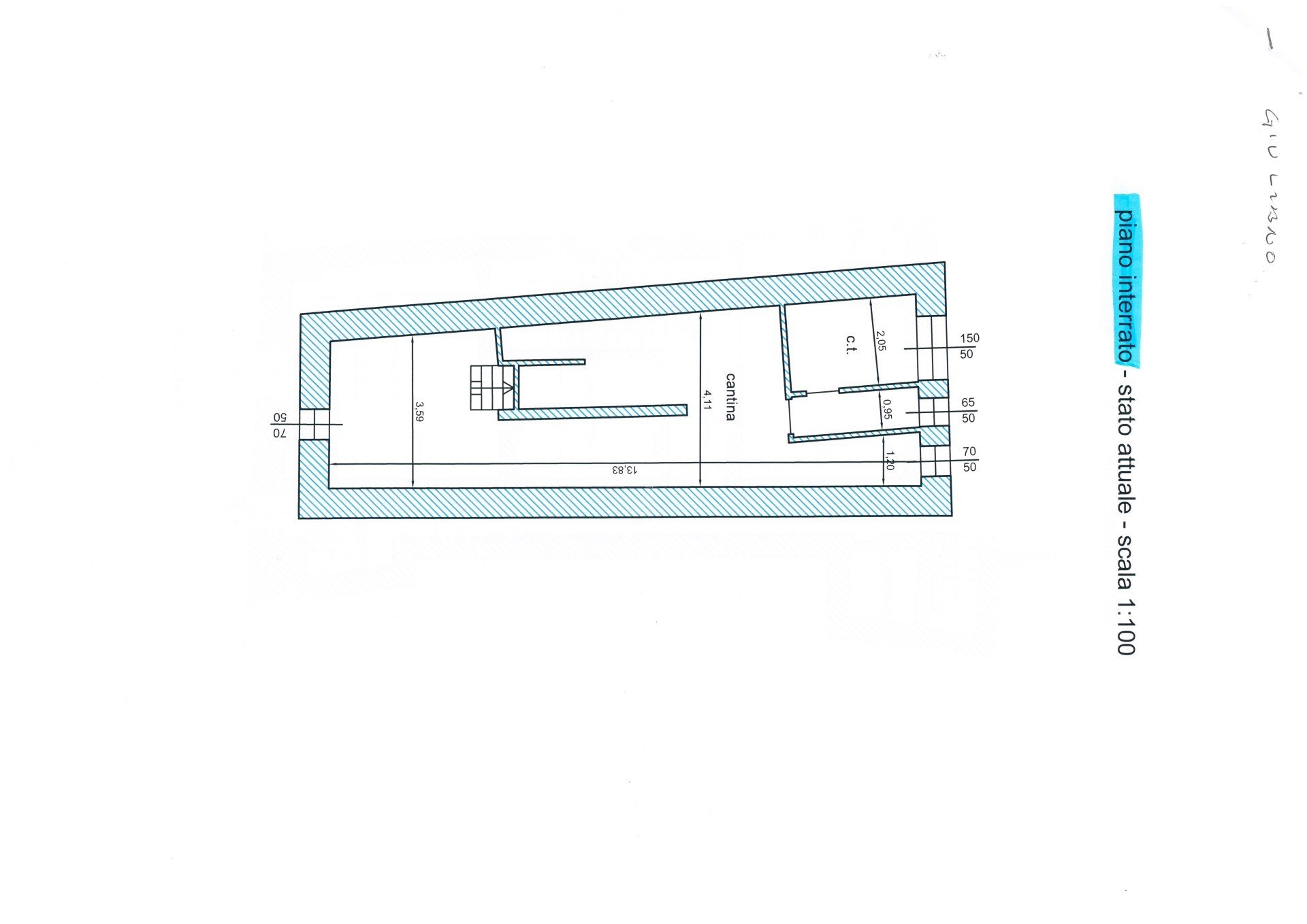
Proponiamo in vendita immobile composto di un edificio principale e un edificio annesso adibito ad autorimessa. L'edificio principale, sviluppato su 5 livelli ( dall'interrato alla mansarda) offre: PIANO TERRA - Ambiente abitabile storicamente utilizzato ad uso ufficio (destinazione mantenibile), con zona posteriore affacciata su cortile. PRIMO E SECONDO PIANO - Residenza privata esclusiva con vista su Piazza Italia (Fronte) e sulla collina di Boves (retro) Esposizione Sud molto soleggiata. MANSARDA - Spazio multifunzionale suddiviso in ambienti, ideale per ospiti o attività ricreative. AUTORIMESSA - Di comodo accesso l'autorimessa/tavernetta di 50 mq., dotata di due accessi può ospitare sino a tre autovetture. Ideale per chi cerca una dimora nel cuore di Boves, combinando residenza e spazi professionali oppure Hobbystici, oppure due unità immobiliari. Un'opportunità unica per vivere le comodità della città con stile e privacy.
Classificazione energetica
Efficienza Energetica:
Questa casa/villa si trova a Boves (12012).

