Casa indipendente 12 locali di 1.000 m² in Teramo (64100)
Su questa casa/villa di 12 locali a Teramo (64100)
MAESTOSA VILLA AVVOLTA NELLE COLLINE ABRUZZESI
Avvolta da dolci colline e vicina al mare, vendiamo un grezzo di una villa di design del 2006.
Situata nella verdeggiante frazione di Chiareto di Teramo, ideale per tutti coloro che cercano una soluzione di pregio, con particolare attenzione al design, caratterizzata dalla tendenza al vivere green.
La villa è stata progettata per valorizzare al massimo l'abitabilità, l'importanza della luce e la comodità del vivere, elemento caratterizzante è la struttura antisismica che garantisce la massima sicurezza e stabilità.
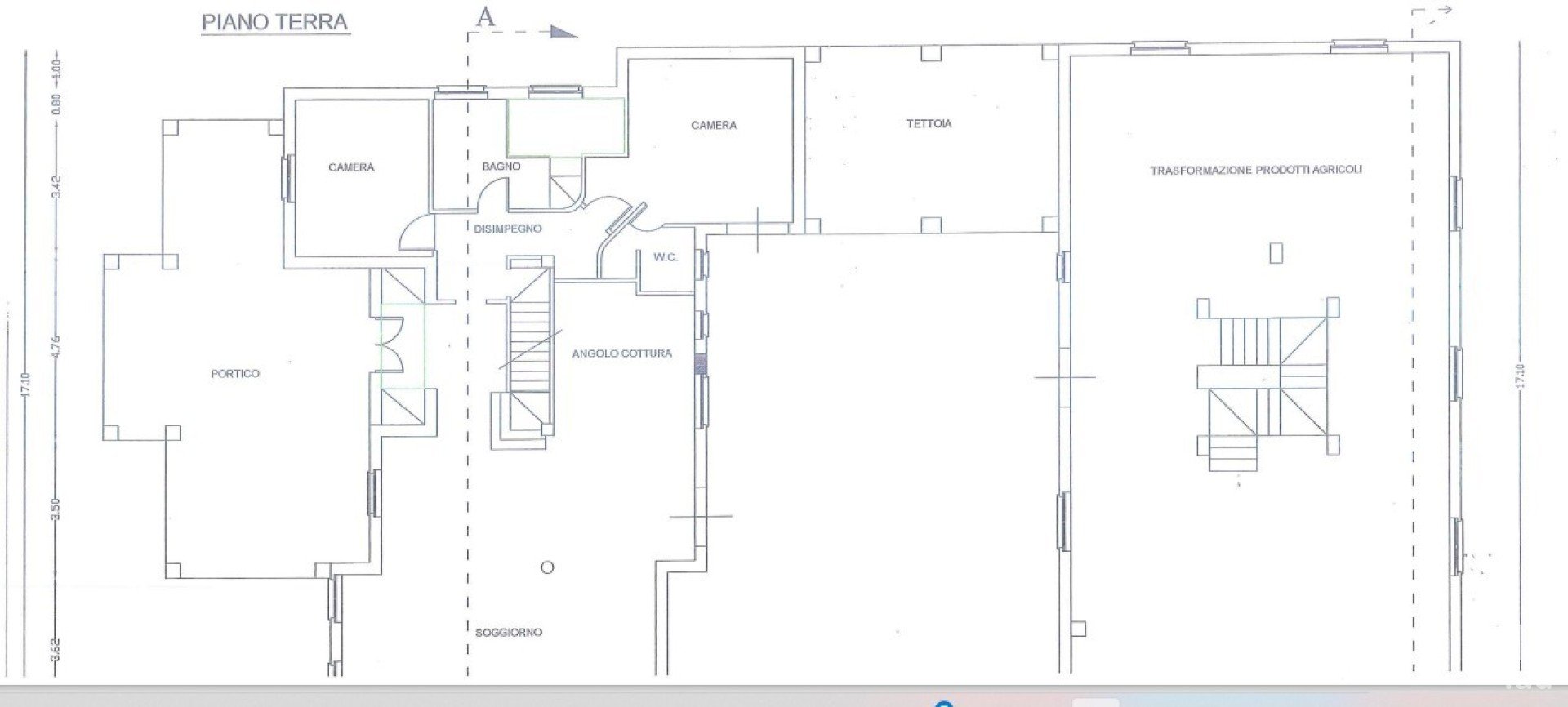
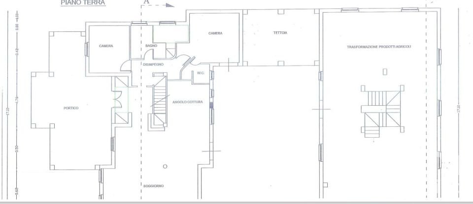
Concepita per esser divisa in due unità abitative indipendenti per uno stile di vita moderno e familiare, questa proprietà si struttura su tre piani.
Al piano terra è prevista la zona giorno, molto ampia e luminosa, con accesso diretto nel giardino privato tramite le vetrate che danno sul portico. Una cucina abitabile dalla generosa metratura permetterà l'assoluta comodità di gestione familiare.
Al piano superiore troviamo ampi locali e terrazzi.
A completare le proprietà, un piano seminterrato che lascia spazio alla taverna, cantina, lavanderia, locali tecnici e al box doppio.
La superficie costruita allo stato di grezzo è di circa mq. 1000. completa la proprietà circa 15.000 mq. diterreno agricolo irriguo.
Questa maestosa villa è la soluzione ideale per chi cerca un immobile unico nel suo genere, abbastanza vicino al mare, immerso nella natura incontaminata, dove ritirarsi per dimenticare stress e frenesia della vita quotidiana.
Le dimensioni della proprietà consentono di ospitare diversi amici, parenti o colleghi che vogliono cogliere l’opportunità di visitare luoghi incantevoli della costa e dell’entroterra Abruzzese.
Luogo ideale, oltre che per abitazione privata esclusiva per la tranquillità e la privacy o per una attività ricettiva.
Il territorio abruzzese è caratterizzato dalle spiagge sabbiose del mare Adriatico borghi storici, da città d'arte e da un importante patrimonio naturalistico ricco di parchi, Monti Sibillini, Gran Sasso-Monti della Laga, e di riserve naturali,
La proprietà é ben collegata:
Teramo - 10 km
Golf Club Miglianico - 72 km
Giulianova Porto Turistico - 20km
Prati di Tivo - 51 km
Ancona aeroporto - 127 km
Pescara aeroporto - 60 km
Roma aeroporto - 210 km
*Le presenti informazioni e planimetrie sono meramente indicative e non costituiscono elementi contrattuali.
Pertinenze
Esterno
Altro
Classificazione energetica
Efficienza Energetica:
Emissioni di CO2
Questa casa/villa si trova a Teramo (64100).











