

999.000 €
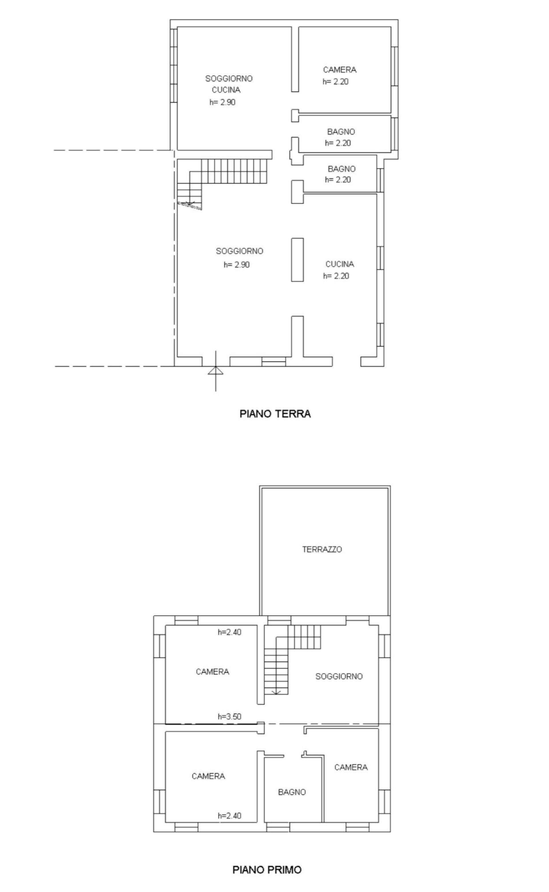
FERMO - CONTRADA SAN BIAGIO 22 - Immerso nelle fantastiche colline fermane e sulla panoramica strada SP69 che porta a Ponzano di Fermo, si propone in vendita "CASANNONA". Questa struttura è un'oasi di pace e tranquillità a pochi chilometri dal mare e dai monti Sibillini. La struttura è stata creata attraverso il restauro di un vecchio casale rurale ed è situata in una zona esposta completamente a sud, che permette di godere del sole dall'alba al tramonto in qualsiasi stagione. "CASANNONA" è composta da diverse unità abitative indipendenti che possono ospitare fino a un massimo di 12 persone. All'esterno della casa, sono presenti un parcheggio, un ampio pergolato con vista sul bellissimo giardino, dove è possibile rilassarsi e trascorrere momenti di pace e tranquillità oltre ad una meravigliosa pineta ombreggiata dalla quale è possibile scorgere il mare e godere di una fresca brezza durante le calde giornate estive . La piscina biodesign, realizzata con pietra naturale, offre un'esperienza di balneazione unica grazie alla composizione dell'acqua ai sali dell'Hymalaya, la spiaggia, l'idromassaggio, l'aeroterapia, la cascata e il nuoto contro corrente. Questo ambiente riservato e appartato si trova immerso in un'oasi verde, ideale per rilassarsi e rinfrescarsi. A contribuire al mantenimento e allo splendore di "CASANNONA" è la stessa famiglia proprietaria che con grande entusiasmo da anni abbina dedizione e tradizione accogliendo i propri ospiti e condividendo con essi l'amore per il territorio, le sue tradizioni, la storia e la gastronomia. Ogni membro della famiglia è coinvolto nell'attività di affitta camere e nell'intrattenimento, per soddisfare ogni esigenza, dai grandi ai più piccoli. Gli amanti degli animali domestici e della natura troveranno la loro piccola fattoria con pony, asini e capre. L'area circostante è tranquilla e si trova al confine tra i comuni di Fermo e Ponzano di Fermo, ricca di storia, tradizione e gastronomia. Ci sono inoltre innumerevoli opportunità per soddisfare ogni tipo di turista, tra cui le spiagge sabbiose del Mar Adriatico, la collina dolce e accogliente con i suoi siti archeologici e i monti Sibillini con i loro paesaggi suggestivi e leggende. Inoltre, durante il periodo estivo, molti centri medievali limitrofi ospitano sagre, rievocazioni storiche ed eventi internazionali, come la Cavalcata dell'Assunta a Fermo, il Veregra Street a Montegranaro, Teatri del mondo a Porto Sant'Elpidio. La struttura "CASANNONA" consentirà a te e alla tua famiglia di accogliere ospiti o amici indifferentemente , gratificandoti per ogni esperienza incredibile vissuta in questo luogo ideale per partire e tornare per visitare le Marche e il Nord dell'Abruzzo. Immagina di poter vivere e condividere tutto ciò , avendo la possibilità di esplorare le opportunità che questa magnifica location ti offre.
Riferimento: 92640
Classe energetica
G
253 kWh/ m².anno
Immobili simili




365.000 €
