Casa indipendente 0 locali di 230 m² in Tuoro sul Trasimeno (06069)
Su questa casa/villa di 0 locali a Tuoro sul Trasimeno (06069)
Vivere tra cielo, lago e natura – scopri questa villa panoramica indipendente a pochi passi dal lago Trasimeno!
Benvenuti in una residenza unica, immersa nel verde di Tuoro sul Trasimeno. Questa casa indipendente di 230 mq commerciali costruita in pietra serena tipica del luogo, incarna l'autenticità e il fascino dell'Umbria. Distribuita su tre livelli unisce funzionalità, spazio e unicità in una delle zone più affascinanti dell’Umbria. La proprietà offre inoltre una splendida terrazza panoramica, un ampio giardino privato con alberature secolari.
Caratteristiche principali:
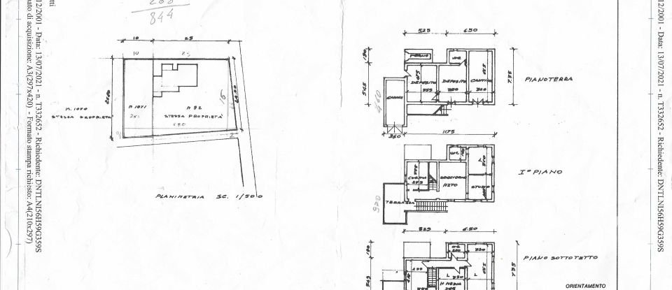
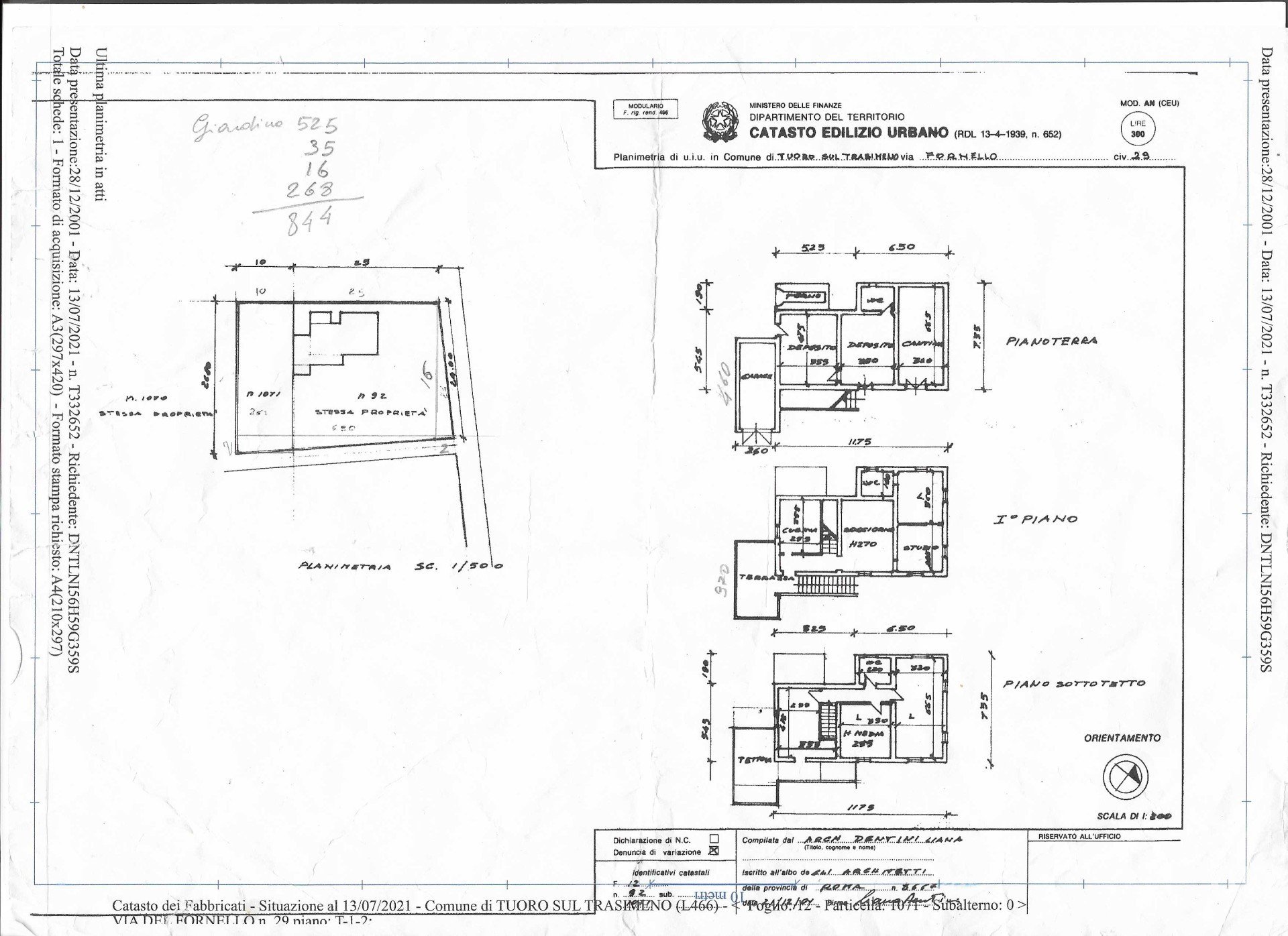
• Piano terra: ampia cantina con botti, 2 locali attualmente destinati a deposito, bagno. Garage e forno esterni – funzionalità e comfort al servizio della vita quotidiana
• Primo piano: cucina abitabile, soggiorno luminoso, studio, camera da letto matrimoniale, con bagno, arricchiti da una terrazza panoramica che regala viste mozzafiato sul paesaggio umbro.
• Secondo piano: tre spaziose camere da letto e bagno con box doccia, ideali per famiglie o ospiti
• Giardino privato di 844 mq con spazio adibito ad orto ed eventuale possibilità di installazione di una piscina: un piccolo paradiso verde con alberature secolari e angoli di tranquillità senza tempo
Ideale per chi sogna la quiete senza rinunciare alla bellezza; con i suoi ambienti luminosi e versatili è perfetta come dimora vacanze, B&B o rifugio ideale per la famiglia, l'ospitalità o la seconda casa dei tuoi sogni.
Non lasciarti sfuggire questa occasione!
Contattaci per maggiori dettagli e vieni a scoprire la natura, il comfort e la bellezza senza tempo; una rara opportunità a Tuoro sul Trasimeno!
L'immobile si trova in una posizione strategica, vicino al centro storico del paese, con buona accessibilità ai servizi essenziali: una scuola dell'infanzia a 751 metri, una scuola primaria a 481 metri, un posto di polizia a 421 metri. La stazione ferroviaria più vicina è a 1,93 km, l'ospedale a 6,4 km e l'aeroporto a 38,21 km.
La connessione internet è buona, con una velocità di download di 100 Mbit/sec e upload di 50 Mbit/sec, e le antenne 4G/5G sono posizionate a oltre 70 metri, un fattore positivo per chi è sensibile all'elettrosmog.
Tuoro sul Trasimeno è un comune situato sulla riva nord del Lago Trasimeno, in una posizione strategica tra Perugia ed importanti città d'arte toscane, tra le quali Cortona a 12 km, Città di Castello a 33 km, Arezzo a 33 Km, Sansepolcro a 60 Km. E' presente una spiaggia, il lido di Tuoro, con il molo d'imbarco per i traghetti diretti all'Isola Maggiore e all'Isola Polvese. La località gode di un significativo interesse turistico, essendo nota per il suo valore storico come luogo della famosa battaglia del Trasimeno del 217 a.C., dove Annibale sconfisse l'esercito romano.
Pertinenze
Altro
Questa casa/villa si trova a Tuoro sul Trasimeno (06069).













