

199.800 €
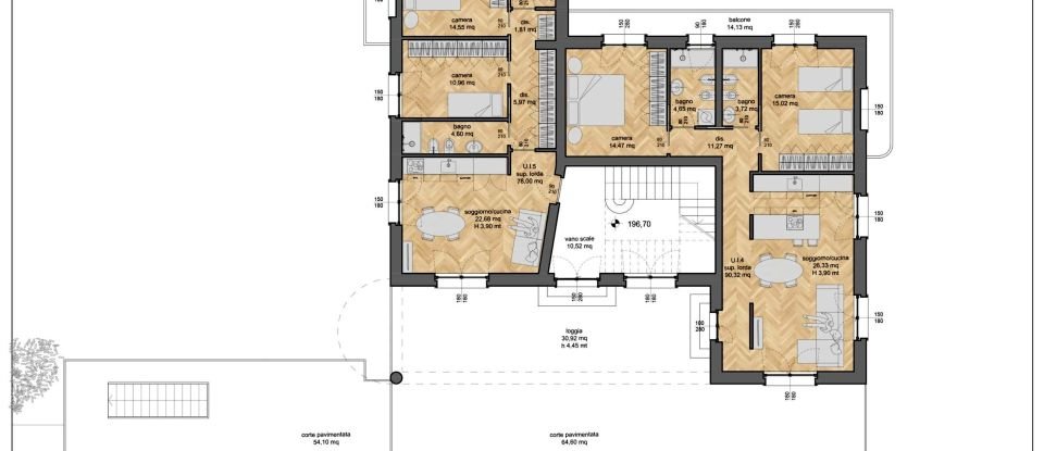
"LA DIMORA DELLA MUSICA" Centrale. Indipendente. Panoramica. Questo immobile storico di pregio da ristrutturare è situato in una posizione decisamente strategica e oggi è finalmente pronto per riprendere vita in tutto il suo splendore! A pochi passi dal centro di Osimo e dal maxi parcheggio, LA DIMORA DELLA MUSICA gode del suo progetto già realizzato che contempla sia la sua ristrutturazione che l'eventuale ricostruzione. Ogni livello abitativo (piano Terra e Piano Primo da via Ungheria) si sviluppa su oltre 168mq e il magazzino, situato al Piano Sottostrada, è stato ripensato interamente per ospitare i garage o posti auto, o per essere anch'esso trasformato in abitativo con apposito cambio di destinazione d'uso e dar vita alle cantine di ogni appartamento. Dall'importante cancello si accede alla corte decisamente generosa che circonda l'immobile, dalla quale si giunge direttamente ai garage o alle potenziali soluzioni abitative espresse nel progetto rappresentato. L'ingresso invece ai piani superiori lo si ha dal portone principale, da cui si accede da Via Ungheria, anche qui come viene espresso nel progetto. LA DIMORA DELLA MUSICA è un immobile unico, panoramico, in posizione centrale, dal grande potenziale... e rappresenta oggi una grandissima opportunità di acquisto e ristrutturazione in Osimo. Vieni a toccare con mano il potenzialità di questo immobile di pregio, chiamandoci subito per tutte le info e prenotando la tua visita esclusiva!
Riferimento: 111210
Classe energetica
G
198 kWh/ m².anno
Immobili simili



