Negozio / locale commerciale di 43 m² in Mariano Comense (22066)
A proposito di questo negozio/locale commerciale a Mariano Comense (22066)
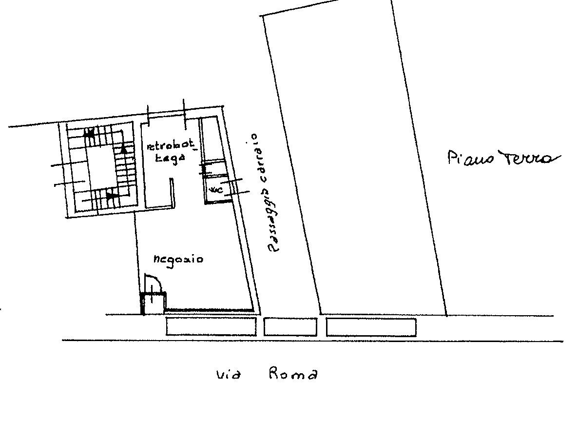
Locale commerciale in affitto – Piazza Roma (zona centralissima)
Affittasi locale commerciale in posizione strategica, situato nella centralissima e prestigiosa Piazza Roma, zona di forte passaggio pedonale e veicolare.
L’immobile è composto da:
• Locale vendita con ampia vetrina fronte strada
• Retro negozio ideale come magazzino o spazio operativo
• Bagno interno
• Molto luminoso, con ottima esposizione
• Spese condominiali contenute
Posizione invidiabile, circondata da:
• Negozi, banche, bar, panetterie
• Parcheggi pubblici nelle immediate vicinanze
• Comoda accessibilità
Adatto a:
• Negozi di vendita al dettaglio
• Servizi professionali
• Showroom o attività specialistiche
Per informazioni e appuntamenti
Ettore Tagliabue
Cell. +39 338 213 8497
mail : ettore.tagliabue@iad-italia.it
Pertinenze
Altro
Classificazione energetica
Efficienza Energetica:
Questo negozio/locale commerciale si trova a Mariano Comense (22066).
