Negozio / locale commerciale di 155 m² in Abano Terme (35031)
A proposito di questo negozio/locale commerciale a Abano Terme (35031)
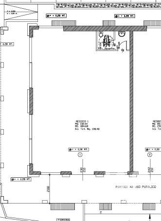
Locale commerciale di 140 m² nel centro di Abano Terme, in Classe Energetica A4
Nel cuore di Abano Terme, in una delle vie più ricercate e ad alto passaggio, proponiamo in vendita un prestigioso locale commerciale di 140 m², ideale per attività che desiderano massima visibilità e un forte impatto sul pubblico.
Caratteristiche principali:
Superficie commerciale: 140 m²
Vetrine fronte strada, perfette per esposizione e comunicazione visiva
Ampio open space modulabile in base alle esigenze dell'attività
Grandi altezze interne e luminosità naturale
Posizione centrale, a pochi passi dalle piazze, strutture ricettive, hotel e stabilimenti termali e parchi.
Facilità di parcheggio nelle immediate vicinanze
Contesto elegante e ricco di attività commerciali consolidate
Ideale per:
*Boutique e negozi specializzati
*Studio professionale o poliambulatorio
*Showroom
*Attività di servizi
*Investitori alla ricerca di un immobile di alta redditività in zona premium
Perché scegliere questo immobile:
La posizione è uno dei punti di forza: è una delle aree più frequentate da residenti, turisti e ospiti delle strutture alberghiere, garantendo flusso costante e ottima visibilità.
Un'opportunità rara per chi desidera aprire o espandere la propria attività nel centro di Abano Terme.
Per maggiori informazioni o per fissare una visita, contattaci 340 5517098
Pertinenze
Altro
Classificazione energetica
Efficienza Energetica:
Questo negozio/locale commerciale si trova a Abano Terme (35031).

