Negozio / locale commerciale di 118 m² in Agugliano (60020)
Caratteristiche
A proposito di questo negozio/locale commerciale a Agugliano (60020)
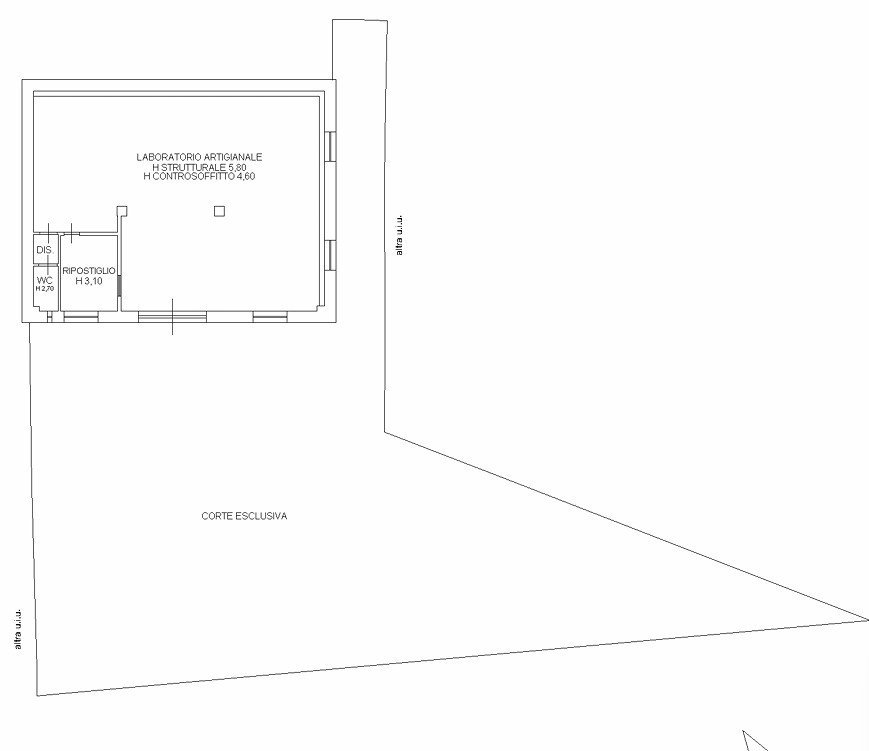
In posizione centralissima e comoda ai principali servizi, proponiamo in vendita un ampio laboratorio al piano terra, ideale per molteplici attività artigianali, produttive o logistiche.
La soluzione si sviluppa su un unico livello ed è caratterizzata da ambienti spaziosi, ben finestrati e luminosi. È presente un comodo locale ufficio separato e un bagno. Internamente l'immobile è stato completamente ristrutturato con interventi recenti e di qualità: una proposta chiavi in mano, pronta all’uso senza necessità di ulteriori lavori.
Le altezze interne di circa 5 metri offrono grande flessibilità di utilizzo, anche per eventuali soppalchi o installazioni specifiche. Completa la proprietà una corte esclusiva con rampa di accesso direttamente davanti all’ingresso, ideale per carico/scarico merci o accesso mezzi.
Il prezzo di vendita è estremamente competitivo, tanto da rappresentare un’opportunità concreta anche per chi inizialmente valutava una locazione. Un investimento intelligente per chi cerca uno spazio funzionale, moderno e ben posizionato nel cuore di Agugliano.
Pertinenze
Esterno
Altro
Classificazione energetica
Efficienza Energetica:
Questo negozio/locale commerciale si trova a Agugliano (60020).



