Nuovo In Esclusiva
Capannone di 650 m² in Belvedere Ostrense (60030)
130.000 €
200 €/m²
650 m²
Caratteristiche
Giardino
A proposito di questo negozio/locale commerciale a Belvedere Ostrense (60030)
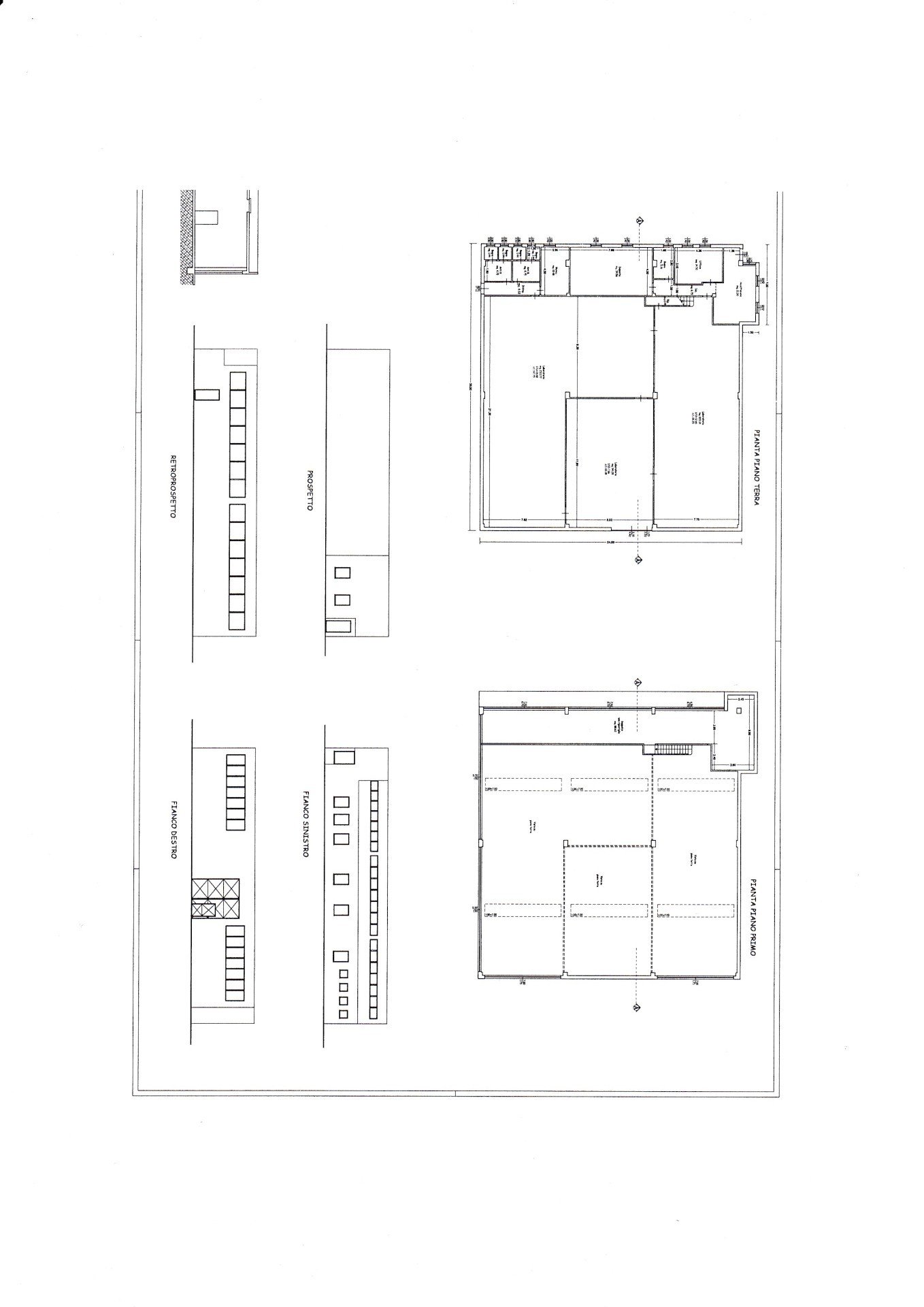
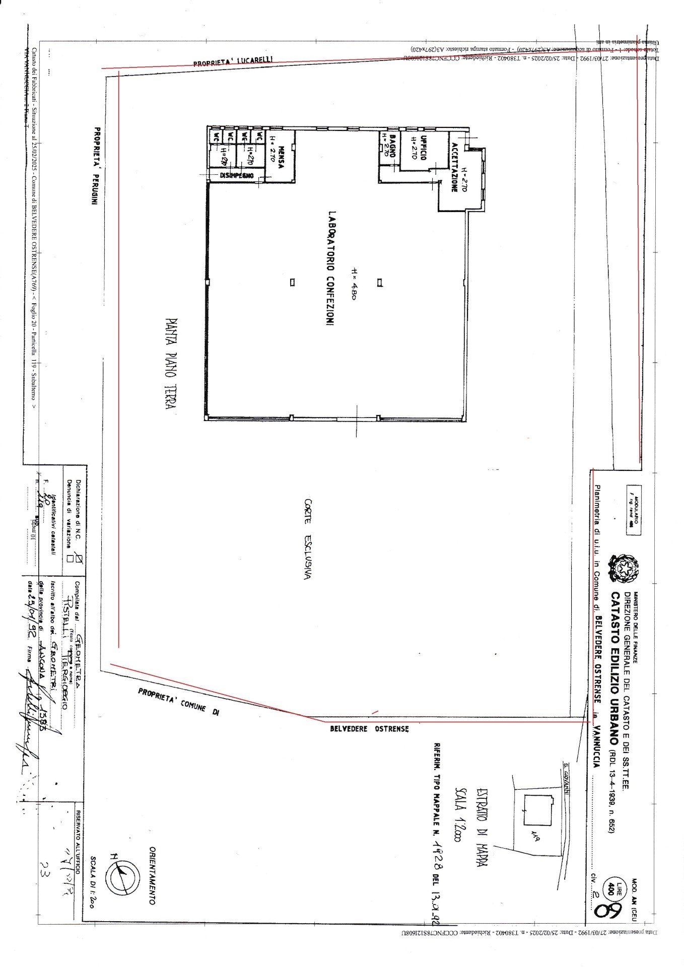
Belvedere Ostrense in località Madonna del Sole, proponiamo capannone costruito nel 1992, attualmente può essere acquistato locato con attività di confezioni abbigliamento, il locale può essere ceduto anche libero al rogito.
Gli spazzi interni sono stati divisi come da planimetria per le esigenze dell'attuale attività. Appena si entra spazioso ingresso con receptionist, uffici commerciali, spaziosi locali spogliatoio con bagni, mensa.
la corte esterna recintata molto spaziosa di circa mq 1700.
Per ricevere maggiori informazioni contattare Iad Italia Transazioni srl (Numero REA MI-2512981)
Riferimento: 142710
Pertinenze
Interno
Antenna TV
Esterno
Superficie del terreno: 2.377 m²
Garage
Altro
Anno di costruzione: 1992
Dove si trova l'immobile?
Questo negozio/locale commerciale si trova a Belvedere Ostrense (60030).
Immobili simili
Popover 1
Popover 2
Popover 3
Popover 4
















